Oportunitate ideală pentru investitori sau proprietari care caută un spațiu versatil și securizat în una dintre cele mai căutate zone ale Bucureștiului.
Se oferă spre vânzare un spațiu la subsolul unui imobil, cu destinație mixtă — servicii, depozitare și parcare (6 locuri) — cu acces facil din curtea blocului.
Specificații
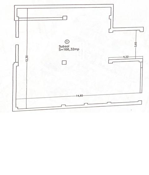
Suprafață utilă: 166,32 mp
Suprafață teren aferent (acces curte bloc): 52 mp
Locuri de parcare: 6
Nivel: subsol
Acces securizat
Destinație & Utilizare
✅ Spațiu de servicii
✅ Depozitare
✅ Parcare (6 locuri)
✅ Potrivit pentru utilizare proprie sau închiriere / investiție
Locație
📍 Zona 1 Mai, București
Comision 0% pentru cumpărător
🤝 Reprezentare exclusivă
📞 Contactați-mă pentru detalii suplimentare sau pentru a programa o vizionare.
Sediul central - Timișoara
Bulevardul Victor Babeș nr. 2, 300230, Timișoara, România
Tel: +40.374.40.44.98 / Fax: +40.256.401.179
Email: suport@imobiliare.ro
Luni - Vineri 08:00 - 20:00
Punct de lucru - București: Iride Business Park, Bld. Dimitrie
Pompeiu 9-9A, Clădirea B2B,
020335, Sector 2, București, România
CONTACT
Sediul central - Timișoara
Bulevardul Victor Babeș nr. 2, 300230, Timișoara, România
Tel: +40.374.40.44.98 / Fax: +40.256.401.179
Email: suport@imobiliare.ro
Luni - Vineri 08:00 - 20:00
Punct de lucru - București: Iride Business Park, Bld. Dimitrie
Pompeiu 9-9A, Clădirea B2B,
020335, Sector 2, București, România
Sună acum și cere detalii sau programează o vizionare.
Cere detalii prin email
*
*
*
*
Stații tramvai
Stații autobuz
Stații metrou
Stații tren
Stații troleibuz
Școli
Universități
Gradinițe
Supermarket
Parcări
Parcuri
Terenuri sport
Piețe publice
Farmacie
Spital
Restaurant
Bar
Cafenea
Pub
Bancă
Grivita
aprox.
80 m
Statie Grivita Tv42
aprox.
115 m
Grivita
aprox.
121 m
Clabucet
aprox.
209 m
Bd. Ion Mihalache
aprox.
244 m
Clabucet
aprox.
262 m
Bd. Expozitiei
aprox.
407 m
Carpati
aprox.
436 m
Universitatea Romano-Americana
aprox.
924 m
Bulevardul Bucurestii Noi
aprox.
934 m
Depoul Bucurestii Noi
aprox.
954 m
Universitatea Romano-Americana
aprox.
1014 m
Statia Camera de Comert, linia 42
aprox.
1030 m
Piata Domenii
aprox.
1083 m
Piata Domenii
aprox.
1160 m
Statie Bd. Expozitiei / Grivita 42, 105
aprox.
121 m
Statie Bd. Ion Mihalache/ Clabucet linii : 300, N118, 20, 24, 42, 45
aprox.
281 m
Statie Clabucet 300, 105, 780
aprox.
299 m
Maxi-Taxi Chibrit - Mogosoaia - Buftea
aprox.
344 m
1 Mai
aprox.
348 m
1 Mai (M4)
aprox.
360 m
Statie Clabucet 780, N117, 105, 65, 97, 86
aprox.
389 m
Statie R.A.R. N117, 105, 65, 97, 86
aprox.
481 m
Statie Traian Vasile 42, 105
aprox.
560 m
Statie Carpati N118, N117, 20, 24, 45, 65, 97, 86
aprox.
585 m
Sandu Aldea
aprox.
749 m
Statia Sandu Aldea, linia 300, N118
aprox.
794 m
Statie Bd. Bucurestii Noi / Depoul Bucurestii Noi / Soseaua Chitilei N118, N117, 20, 24, 45, 65, 97, 86
aprox.
934 m
Statia Spitalul CFR, linia 105,780
aprox.
937 m
Soseaua Chitilei
aprox.
946 m
Metrorex. Stația 1 Mai (M4)(2000)
aprox.
360 m
Metrorex Statia 1 Mai M4
aprox.
361 m
Metrorex. Stația Grivița (M4)(2000)
aprox.
1162 m
Metrorex. Stația Grivița (M4) (en)
aprox.
1204 m
Statie Grivita M4
aprox.
1246 m
Stație metrou "Jiului"
aprox.
1357 m
Metrorex. Stația Jiului (M4)(2011)
aprox.
1478 m
Halta CFR Bucuresti Basarab h
aprox.
1241 m
Statie Caraiman 65, 97, 86
aprox.
1418 m
Statie Cimitirul Sf. Vineri 65, 97, 86
aprox.
1677 m
Statie Pasaj Grant 65, 97, 86
aprox.
1876 m
Clubul Sportiv Scolar nr.1 Pajura
aprox.
228 m
Gradinita Iboo
aprox.
373 m
Liceul Greco-Catolic Timotei Cipariu
aprox.
420 m
Scoala Nr. 180
aprox.
424 m
Liceul Greco-Catolic "Timotei Cipariu"
aprox.
424 m
Scoala Nationala de Studii Politice si Administrative (SNSPA)
aprox.
438 m
SNSPA
aprox.
438 m
COLEGIUL TEHNIC MECANIC GRIVITA
aprox.
521 m
Colegiul Tehnic Mircea cel Batran
aprox.
676 m
Scoala Nr. 175 Sf. Nicolae
aprox.
677 m
Liceul teologic greco catolic
aprox.
720 m
Liceul Aurel Vlaicu
aprox.
733 m
Colegiu National Aurel Vlaicu
aprox.
750 m
Gradinita de copii nr.43
aprox.
767 m
Universitatea Romano-Americana
aprox.
883 m
Facultatea de Biotehnologii
aprox.
718 m
Facultatea de Viticultura
aprox.
750 m
Universitatea Romano-Americana
aprox.
891 m
Universitatea de Stiinte Agronomice si Medicina veterinara
aprox.
912 m
Campus Universitatea de Stiinte Agronomice si Medicina Veterinara Bucuresti
aprox.
917 m
ICPA Bucuresti
aprox.
1231 m
Universitatea De Stiinte Agronomice Si Medical Veterinare
aprox.
1293 m
Gradinita nr. 43
aprox.
767 m
Gradinita Karin's Kids Academy
aprox.
821 m
Gradinita de copii nr.281 Steaua
aprox.
823 m
Gradinita nr. 281
aprox.
849 m
Gradinita Nr. 43
aprox.
958 m
Gradinita Ciupercuta
aprox.
1037 m
Gradinita Casuta Piticilor
aprox.
1239 m
Gradinita cu program prelungit Winnie
aprox.
1248 m
Gradinita Winnie
aprox.
1248 m
Gradinita nr. 222
aprox.
1397 m
Gradinita 97
aprox.
1539 m
Gradinita 97
aprox.
1575 m
Gradinita Happy Tweety
aprox.
1709 m
Gradinita nr 40
aprox.
1719 m
Mega Image
aprox.
343 m
Mega Image
aprox.
428 m
Magazin Alimentar
aprox.
445 m
Carrefour market
aprox.
916 m
Annabella
aprox.
1079 m
Mega Image
aprox.
1104 m
Rom Sep
aprox.
1129 m
Profi City Pajura
aprox.
1155 m
Branza Sibiu
aprox.
1185 m
Pronto Expres
aprox.
1209 m
Mega Image Domenii Non-Stop
aprox.
1256 m
Profi
aprox.
1258 m
Express
aprox.
1281 m
Profi
aprox.
1282 m
Kaufland
aprox.
1346 m
Parcare
aprox.
226 m
Parcare
aprox.
321 m
Parcare
aprox.
395 m
Parcare
aprox.
400 m
Parcare
aprox.
409 m
Parcare
aprox.
428 m
Parcare
aprox.
727 m
Parcare
aprox.
743 m
Parcare privata
aprox.
772 m
Parcare privata
aprox.
774 m
Parcare privata
aprox.
777 m
Parcare privata
aprox.
803 m
Parcare
aprox.
816 m
Parcare
aprox.
902 m
Parcare
aprox.
902 m
Parc
aprox.
140 m
Parc
aprox.
143 m
Parc
aprox.
149 m
parculet de joaca pentru copii
aprox.
152 m
Parc
aprox.
241 m
Parc leagane (en)
aprox.
241 m
Parc
aprox.
264 m
Parc
aprox.
343 m
Teren de Fotbal
aprox.
523 m
Codrii Romexpoului (en)
aprox.
573 m
Serele de FLORI - catedra de Floricultura - Facultatea Horticultura
aprox.
655 m
Parc
aprox.
818 m
Rozariu
aprox.
867 m
Clubul Copiilor nr. 1, Ciresarii
aprox.
871 m
Rozariu
aprox.
916 m
Teren sportiv
aprox.
424 m
Teren sportiv
aprox.
433 m
Teren sportiv
aprox.
447 m
Teren sportiv
aprox.
684 m
Teren sportiv
aprox.
702 m
Teren sportiv
aprox.
707 m
Teren sportiv
aprox.
721 m
Teren sportiv
aprox.
778 m
Teren sportiv
aprox.
1003 m
Teren fotbal acoperit
aprox.
1148 m
Teren sportiv
aprox.
1229 m
Teren sportiv
aprox.
1308 m
Teren sportiv
aprox.
1334 m
Teren sportiv
aprox.
1453 m
Teren sportiv
aprox.
1461 m
Piata Montreal
aprox.
1326 m
M. C. Serv Tour
aprox.
190 m
Belladonna
aprox.
339 m
Catena
aprox.
353 m
HelpNet
aprox.
991 m
Help Net Farma
aprox.
1225 m
Farmacia 99
aprox.
1235 m
Dona
aprox.
1252 m
Farmacia World Trade Pharma
aprox.
1253 m
Catena
aprox.
1258 m
April Farmexim
aprox.
1281 m
Catena Farmacie
aprox.
1283 m
Dridu Farm
aprox.
1335 m
Homeofarm
aprox.
1386 m
Farmacia Belladonna 39
aprox.
1412 m
Belladonna 18
aprox.
1417 m
Clinica
aprox.
290 m
Bucharest: MedLife and Memorial Hospital (en)
aprox.
772 m
Medlife Grivita
aprox.
817 m
Policlinica CFR (en)
aprox.
895 m
Spitalul de Chirurgie Plastica, Reparatorie si Arsi
aprox.
906 m
Spitalul Clinic de Urgenta Chirurgie Plastica
aprox.
906 m
Anemona Med
aprox.
1044 m
Spitalul Cfr 2
aprox.
1242 m
Policlinica Pajura
aprox.
1243 m
Spitalul 2 CFR
aprox.
1250 m
Ava Clinique
aprox.
1263 m
Spitalul de Copii Caraiman
aprox.
1288 m
Genesys Fertility Center
aprox.
1337 m
Centrul de Dializa dr.Carol Davila
aprox.
1397 m
Centrul de Dializa Fresenius Bucuresti
aprox.
1408 m
Terasa La Turcu
aprox.
41 m
Food Mania
aprox.
122 m
Restaurant Gerrard
aprox.
214 m
Gerard
aprox.
238 m
La Hussein
aprox.
334 m
Forneti
aprox.
592 m
Vechea Napoli
aprox.
644 m
cantina agronomie
aprox.
659 m
Cantina Agronomie
aprox.
666 m
Terasa TASTE
aprox.
1037 m
Coin Vert (en)
aprox.
1168 m
Mica Elvetie (en)
aprox.
1181 m
La Galette (en)
aprox.
1251 m
Paris Bucarest Brasserie (en)
aprox.
1251 m
Barbizon Steak House (en)
aprox.
1251 m
Zodiac
aprox.
732 m
Bar de cartier
aprox.
1601 m
Bar
aprox.
1645 m
Bar Adesim
aprox.
1952 m
French Bakery
aprox.
1175 m
The King
aprox.
1422 m
Bordo Caffe1
aprox.
1477 m
Casa Mara
aprox.
1462 m
OTP Bank
aprox.
311 m
Raiffaisen Bank
aprox.
345 m
Banca Transilvania - Ag. Piata Chibrit
aprox.
388 m
Garanti Bank
aprox.
390 m
Piraeus Bank
aprox.
390 m
ING Chibrit
aprox.
391 m
Alpha Bank
aprox.
404 m
Bancpost - Piata Chibrit
aprox.
412 m
UniCredit Bank
aprox.
1091 m
UniCredit Bank - Ag. Piata Presei Libere
aprox.
1101 m
BRD
aprox.
1211 m
BRD
aprox.
1237 m
BRD Pajura (en)
aprox.
1239 m
Raiffeisen Bank
aprox.
1256 m
BRD
aprox.
1268 m
Zona 1 Mai dispune nu doar de o poziție privilegiată față de centrul Capitalei, dar este și conectată cu alte cartiere ale orașului prin diverse mijloace de transport în comun. Poți să iei metroul de la stațiile aflate de-a lungul Căii Grivița, mai exact 1 Mai, Grivița și Basarab. Toate acestea se află pe Magistrala M4 care leagă Gara de Nord de zona Străulești. Astfel, vei ajunge de la stația Basarab la Piața Victoriei chiar și în 5 minute. Iar în zona Eroilor în circa 10 minute. Alte mijloace de transport în comun la care ai putea să apelezi dacă te muți în zona 1 Mai sunt tramvaiul 42, care leagă Piața Presei de Gara de Nord și tramvaiul 41, care ajunge în Drumul Taberei și în Ghencea. Consultă harta pentru a vedea care sunt cele mai apropiate stații de locuința de care ești interesat.
Una dintre principalele unități de învățământ din zona 1 Mai este Colegiul Național "Ion Neculce". Acesta este amplasat în apropierea Cimitirului evreiesc Filantropia. Colegiul poate fi potrivit dacă îți dorești ca încă din clasa a V-a copilul tău să învețe intensiv o limbă străină, având în vedere că acesta dispune de clase cu program intensiv în limba germană și italiană. Găsești pe hartă și alte unități de învățământ aflate în zona 1 Mai și în vecinătatea acesteia.
Ești interesat de o locuință în zona 1 Mai și te gândești unde ai putea să-ți faci cumpărăturile odată ce te muți acolo? Vei avea în zonă Piața Ion Mihalache și în apropiere Piața Domenii. Poți să ajungi destul de ușor la magazinele Kaufland sau Penny de pe Bulevardul Bucureștii Noi, iar cu mașina ajungi în câteva minute la complexul comercial Colosseum Retail Park de pe Șoseaua Chitilei. Cele mai apropiate mall-uri vor fi AFI Cotroceni, Băneasa Shopping City sau Promenada. Distanța pe care va trebui să o parcurgi pentru a ajunge la acestea va fi destul de mare, motiv pentru care vei merge la ele doar cu mașina. Află unde îți vei putea face cumpărăturile dacă te muți în zona 1 Mai consultând harta.
Dacă ai mașină sau te gândești să îți iei carnetul în curând și să nu mai circuli cu mijloacele de transport în comun, atunci trebuie să știi că traficul rutier în zona 1 Mai este concentrat pe marile artere de circulație, precum bulevardele Ion Mihalache și Banu Manta, Calea Grivița și Șoseaua Nicolae Titulescu. La marginea acestei zone se află, totodată, Pasajul Basarab care unește Sectorul 1 de Sectorul 6 și face parte din inelul interior de circulație al Bucureștiului, dar și Podul Grant care leagă Bulevardul Ion Mihalache de cartierul Crângași. La orele de vârf, traficul este de multe ori îngreunat. Îți recomandăm, totodată, să verifici dacă poți închiria un loc de parcare pentru mașina ta în apropierea locuinței de care ești interesat. Pentru a face acest lucru trebuie să te adresezi Serviciului Parcaje din cadrul ADP Sector 1. Consultă harta și află unde sunt localizate principalele parcări din zonă.
Dacă alegi să te muți în zona 1 Mai vei avea relativ aproape Parcul Regele Mihai I al României (fostul Herăstrău). Aici te vei putea plimba alături de familie în weekend-uri sau vei putea petrece câteva ore la terasă cu prietenii. Un alt parc aflat în vecinătatea acestei zone este Kiseleff, iar lângă el găsești trei muzee importante din Capitală - Antipa, Muzeul Țăranului Român și Muzeul de Geologie. Poți face aici o vizită educativă alături de copilul tău. Și Parcul Bazilescu se află în apropiere. Poți să ajungi rapid la el cu troleibuzul 97. Nici Centrul Expozițional Romexpo, unde sunt organizate periodic diferite concerte, expoziții și târguri, nu se va afla departe de noua ta locuință. O plimbare cu bicicleta în zona Parcului Regele Mihai I al României poate fi o altă variantă bună de relaxare în timpul liber. Ajungi destul de repede și pe Calea Victoriei. Și aici ai o pistă specială pentru bicicliști, dar poți să faci un popas și la una dintre cafenelele din zonă. Dacă preferi să-ți petreci ziua la cumpărături, atunci vei ajunge cu mașina în câteva minute la mall-ul Băneasa Shopping City. Consultă harta și află ce alte opțiuni de petrecere a timpului liber vei avea la dispoziție, dacă te muți în zona 1 Mai.
În zona 1 Mai și în apropierea acesteia ai la dispoziție mai multe unități sanitare la care poți apela. Amintim în acest sens Spitalul Clinic Sfânta Maria, de pe Bulevardul Ion Mihalache, spitalele Elias și CF 2 din zona Domenii și MedLife Life Memorial Hospital de pe Calea Griviței. Găsești pe hartă și alte clinici private la care ai acces în împrejurimi.
Găsești câteva restaurante pe Bulevardul Ion Mihalache și în apropierea Parcului Regele Mihai I, în special în Piața Charles de Gaulle. Ajungi destul de repede și în Piața Victoriei unde ai la dispoziție câteva restaurante de tip fast food - McDonald"™s, Subway, Springtime - și două cafenele Starbucks. Dacă pornești apoi pe Calea Victoriei ai la dispoziție numeroase localuri, inclusiv terase. Cu mașina poți să ajungi rapid și la mall-ul Băneasa Shopping CIty unde ai la dispoziție numeroase restaurante, fast food-uri, cafenele și cofetării. Aruncă o privire pe hartă și vezi unde poți lua masa în oraș, dacă te muți în zona 1 Mai.
În zona intersecției dintre Bulevardul Ion Mihalache și Calea Griviței găsești mai multe bancomate - OTP Ban, BRD, BCR. Alte sucursale bancare și ATM-uri sunt disponibile pe Bulevardul Ion Mihalache și în zona Piața Victoriei. Consultă harta. Află ce alte opțiuni ai în apropierea casei.
Înainte să pleci...
Ești sigur că ai văzut și aceste proprietăți?
95.000 €
București, Aviației
117 mp utili
Bloc de apartamente
6E
105.000 €
București, Tineretului
20 mp utili
Spațiu stradal
10E
92.000 €
București, Grivița
49 mp utili
Casă/Vilă
2E
Creează alertă
Salvează căutarea ca să primești pe email ultimele anunțuri publicate
Spații comerciale de vânzare în zona 1 Mai, Sector 1
Cere detalii prin email
*
*
*
*
Detaliile tale de contact vor fi partajate cu Alexandru Staicu - Consultant Imobiliar