Spațiu comercial De închiriat, Bulevardul Revoluție, Ultracentral Arad

1.000 € / lună
8.06 € / mp / lună

Ultracentral, Arad

Sup. utilă / mp. utili:
124 mp
Tip prop.:
Centru comercial
An constr.:
1892 (Există)
  • • Exclusivitate
  • • Locație exactă
  • • Vizionare prin apel video

Descriere spațiu comercial

- Pentru activitatea ta (Fast Food, Îmbrăcăminte, Încălțăminte, bijuterie, parfumerie) și/sau birou îți dorești o locație unde dispune de trafic intens pietonal, auto, transport public și văd excelent ? Îți propunem acest spațiul de închiriat situat pe bulevardul revoluției în vecinătate primărie Arad Km0 unde poți fii vizibil și orientare ideală. Format spațiul de expunere, 1 magazie, 1 birou, 2 grup sanitar F/B, dispune de acces secundar aprovizionare marfa. - For your activity (Fast Food, Clothing, Footwear, Jewelry, Perfumery) and/or office do you want a location where it has intense pedestrian, car, public transport traffic and excellent visibility? We offer you this space for rent located on Revolution Boulevard near Arad City Hall Km0 where you can be visible and have ideal orientation. Display space format, 1 warehouse, 1 office, 2 bathrooms F/B, has secondary access to supply goods. - Per la tua attività (Fast Food, Abbigliamento, Calzature, Gioielleria, Profumeria) e/o il tuo ufficio, cerchi una posizione con un intenso traffico pedonale, automobilistico e di trasporto pubblico e un'eccellente visibilità? Ti offriamo questo spazio in affitto situato su Revolution Boulevard, vicino al Municipio di Arad Km0, dove potrai essere visibile e avere un orientamento ideale. Lo spazio espositivo è composto da 1 magazzino, 1 ufficio, 2 bagni F/B e dispone di un accesso secondario per la fornitura di merci.
Citește mai mult Citește mai puțin

Detalii spațiu comercial

ID anunț: XEMA0400Q Copiat! 275264762 Copiat!
Actualizat în: 12 Martie 2026
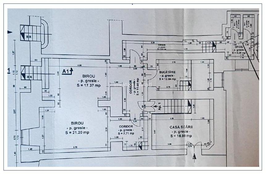
Suprafață utilă: 124 mp
Regim înălțime: D+P
Stadiu construcție: Există

Utilități

Utilități
Curent Apă Canalizare Gaze
Comision
standard

Vecinătăți:

- Primarie
- Magazine
- Statie de tramvai
- farmacie
- Scolii
- Birouri profesionale

Disponibilitate proprietate:

Imediat

Puncte de interes

Mijloace transport
tram-station
Piata Podgoria
Stații tramvai aprox. 201 m
tram-station
Piata Podgoria
Stații tramvai aprox. 270 m
bus-station
Autogara CTP
Stații autobuz aprox. 625 m
bus-station
Arad
Stații autobuz aprox. 928 m
Școală
school
Liceul Baptist Alexa Popovici
Școli aprox. 344 m
school
Liceul de Arta Sabin Dragoi
Școli aprox. 376 m
university
Vasile Goldis: Facultatea de Stiinte Juridice
Universități aprox. 1047 m
kindergarten
Gradinita cu program saptamanal Nr. 2
Gradinițe aprox. 1436 m
Recreere
park
Parc
Parcuri aprox. 22 m
cafe
Hazard
Cafenea aprox. 45 m
supermarket
Billa
Supermarket aprox. 163 m
sports-ground
Teren sportiv
Terenuri sport aprox. 364 m

Proprietăți similare

Spațiu comercial, de 80 mp, în Ultracentral
1.092 € / lună
Arad, Ultracentral
80 mp utili
Casă/Vilă
2E
Spațiu comercial, de 72 mp, în Micălaca
1.050 € / lună
Arad, Micălaca
72 mp utili
Centru comercial
1980
Spațiu industrial, 320 mp în UTA
960 € / lună
Arad, UTA
320 mp utili
Logistică
1996

Detalii de contact

Imocasa Arad

Petrone Pasquale Manager

Imocasa Arad

Abonează-te la newsletter să fii primul care primește cele mai noi recomandări de proprietăți și sfaturi de la experți.

CONTACT

Creează alertă

Salvează căutarea ca să primești pe email ultimele anunțuri publicate

Spații comerciale cu 3 camere de închiriat în zona Ultracentral, Arad