Afacerea ta merită centrul orașului!

1.250 € / lună
10 € / mp / lună

Ultracentral, Arad

Sup. utilă / mp. utili:
125 mp
Tip prop.:
Casă/Vilă
Niv.:
1
An constr.:
1930 (Există)
  • • Exclusivitate
  • • Locație exactă

Descriere spațiu comercial

Afacerea ta merită centrul orașului! Ați căutat mereu acel spațiu unic pentru a vă deschide propria afacere în domeniul ospitalității? Ei bine, ați ajuns în locul potrivit! Vă prezentăm o oportunitate de închiriere irezistibilă în inima orașului, în Piața Avram Iancu - unul dintre cele mai vibrante și căutate locuri din oraș. Pub-ul nostru este disponibil pentru închiriere și vă oferă toate ingredientele pentru a vă transforma visul în realitate. Cu o suprafață generoasă de 130 mp utili, acest spațiu încântător include un bar bine echipat, o bucătărie funcțională, mese cu scaune confortabile, sisteme audio și două băi complet renovate. Cu o istorie de peste 15 ani de funcționare și o reputație solidă în comunitatea locală, acest spațiu reprezintă o platformă excelentă pentru a vă dezvolta propria afacere și a atrage o clientelă diversă și fidelă. Nu pierdeți ocazia de a fi parte din acest loc emblematic! Contactați-ne astăzi pentru a afla mai multe detalii și pentru a programa o vizionare personală. Oportunitățile de acest gen nu apar des, deci acționați acum pentru a vă asigura locul în inima orașului! Suntem aici să vă ajutăm să vă îndepliniți visul. Așteptăm cu nerăbdare să colaborăm cu dvs. și să facem din acest spațiu un loc de succes! Cu sinceritate, Diana Ponoran Cod proprietate 1958233
Citește mai mult Citește mai puțin

Detalii spațiu comercial

ID anunț: X5I1140D5 Copiat! 200354723 Copiat!
Actualizat în: 16 Ianuarie 2026
Tip tranzacție: De închiriat prin agent
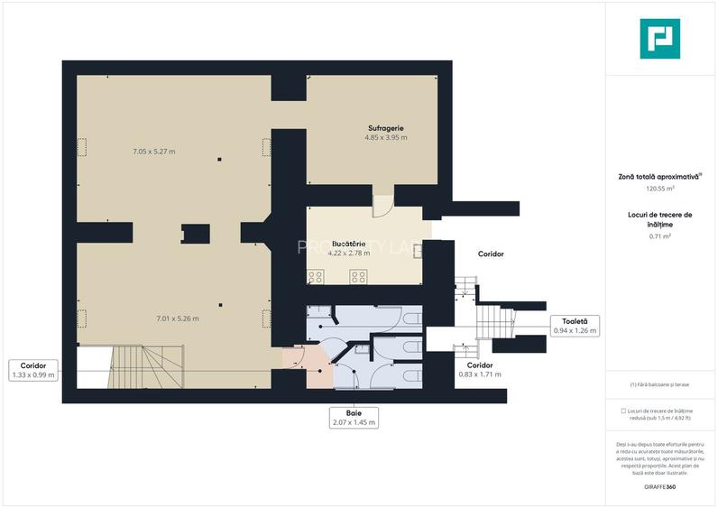
Suprafață utilă: 125 mp
Regim înălțime: D+P+1E
Stadiu construcție: Există
Vitrină: Da

Utilități

Destinație
Rezidențial
Utilități
Curent Apă Canalizare Gaze
Comision
standard

Disponibilitate proprietate:

Imediat

Subspații disponibile

Chirie / u.m. / lună:
10.00 EUR/mp (total: 1250 EUR/lună), Comision: standard
Suprafață disponibilă:
125
Disponibilitate spațiu:
închiriat
Etaj:
Demisol / 1
Vitrină:
Da

Puncte de interes

Mijloace transport
bus-station
Piata Romana
Stații autobuz aprox. 467 m
tram-station
Piata Podgoria
Stații tramvai aprox. 1520 m
tram-station
Piata Podgoria
Stații tramvai aprox. 1614 m
bus-station
Autogara CTP
Stații autobuz aprox. 1715 m
Școală
school
Scoala populara de arte
Școli aprox. 288 m
university
Facultatea de Stiinte ale Naturii
Universități aprox. 303 m
school
Grup Scolar Industrial Aurel Vlaicu
Școli aprox. 304 m
university
Vasile Goldis: Facultatea de Stiinte Juridice
Universități aprox. 336 m
Recreere
park
Piata Avram Iancu
Parcuri aprox. 17 m
restaurant
Transilvania
Restaurant aprox. 42 m
sports-ground
Teren sportiv
Terenuri sport aprox. 333 m
supermarket
Alimentara
Supermarket aprox. 358 m

Proprietăți similare

Spațiu comercial, de 146 mp, în Ultracentral
1.201 € / lună
Arad, Ultracentral
146 mp utili
Casă/Vilă
1910
Spațiu comercial, de 200 mp, în Miorița
1.360 € / lună
Arad, Miorița
200 mp utili
Bloc de apartamente
6E
Spațiu comercial, de 70 mp, în Ultracentral
1.199 € / lună
Arad, Ultracentral
70 mp utili
1E
1990

Detalii de contact

PROPERTY LAB

Diana Ponoran Deputy Branch Manager Bucuresti

PROPERTY LAB

Abonează-te la newsletter să fii primul care primește cele mai noi recomandări de proprietăți și sfaturi de la experți.

CONTACT

Creează alertă

Salvează căutarea ca să primești pe email ultimele anunțuri publicate

Spații comerciale cu 3 camere de închiriat în zona Ultracentral, Arad