Spatii comerciale de inchiriat pe Bulevardul Revolutiei 84

Preț necomunicat

Ultracentral, Arad

Sup. utilă / mp. utili:
434 mp
Tip prop.:
Bloc de apartamente
  • • Comision 0%
  • • Locație exactă

Descriere spațiu comercial

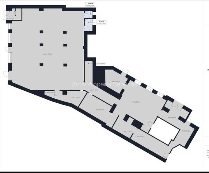
Spatiile comerciale propuse spre inchiriere sunt situate ultracentral, in Arad, intr-o cladire rezidentiala din zona emblematica a orasului, pe Bulevardul Revolutiei 84. Spatiile au suprafete variate precum 366 m2 si 68 m2, putand fi inchiriate separat sau pot fi unificate, suprafata totala fiind de 434 m2. Vecinatatile imobilului au functiuni mixte si includ fast food-ul Mc Donald’s, cafenele, banci, restaurante, centre de printare si copiere, institutii publice si de invatamant si numeroase hoteluri. Transportul cu autoturismul se realizeaza pe Bulevardul Revolutiei, artera principala a orasului ce leaga centrul de nordul Aradului. Parcarea se realizeaza in fata imobilului sau in zonele special dedicate din apropiere. Spatiile sunt disponibile imediat si se pot viziona la cerere. Varianta 1 prezentata in Galerie Foto face parte din cladirea alaturata unde sunt disponibile alte 3 spatii comerciale cu suprafete de 200 m2, 32 m2, respectiv 46 m2. (vezi primul anunt postat in orasul Arad).
Citește mai mult Citește mai puțin

Detalii spațiu comercial

ID anunț: X5F8041EB Copiat! 222022179 Copiat!
Actualizat în: 03 Iunie 2024
Nume proprietate: Bulevardul Revolutiei 84
Regim înălțime: P
Stadiu construcție: Există

Alte detalii:

Spatiile comerciale propuse spre inchiriere sunt situate ultracentral, in Arad, intr-o cladire rezidentiala din zona emblematica a orasului, pe Bulevardul Revolutiei 84.

Spatiile au suprafete variate precum 366 m2 si 68 m2, putand fi inchiriate separat sau pot fi unificate, suprafata totala fiind de 434 m2.

Vecinatatile imobilului au functiuni mixte si includ fast food-ul Mc Donald’s, cafenele, banci, restaurante, centre de printare si copiere, institutii publice si de invatamant si numeroase hoteluri.

Transportul cu autoturismul se realizeaza pe Bulevardul Revolutiei, artera principala a orasului ce leaga centrul de nordul Aradului.

Parcarea se realizeaza in fata imobilului sau in zonele special dedicate din apropiere.

Spatiile sunt disponibile imediat si se pot viziona la cerere.

Varianta 1 prezentata in Galerie Foto face parte din cladirea alaturata unde sunt disponibile alte 3 spatii comerciale cu suprafete de 200 m2, 32 m2, respectiv 46 m2. (vezi primul anunt postat in orasul Arad).

Subspații disponibile

Minim de inchiriat

Mai multe detalii despre aceasta oferta pe platforma SPATII-COMERCIALE-ROMANIA.RO, alaturi de alte peste 150 de spatii comerciale reprezentative prezentate intr-un mod transparent, cu localizare exacta.

Chirie / u.m. / lună:
Preț necomunicat
Suprafață disponibilă:
68
Disponibilitate spațiu:
imediat
Etaj:
Parter
Posibilitate parcare:
Da

Maxim de inchiriat

Mai multe detalii despre aceasta oferta pe platforma SPATII-COMERCIALE-ROMANIA.RO, alaturi de alte peste 150 de spatii comerciale reprezentative prezentate intr-un mod transparent, cu localizare exacta.

Chirie / u.m. / lună:
Preț necomunicat
Suprafață disponibilă:
434
Disponibilitate spațiu:
imediat
Etaj:
Parter
Posibilitate parcare:
Da

Puncte de interes

Mijloace transport
bus-station
Piata Romana
Stații autobuz aprox. 894 m
tram-station
Piata Podgoria
Stații tramvai aprox. 1017 m
tram-station
Piata Podgoria
Stații tramvai aprox. 1100 m
bus-station
Autogara CTP
Stații autobuz aprox. 1187 m
Școală
school
Universitatea Aurel Vlaicu
Școli aprox. 119 m
school
Colegiul Economic
Școli aprox. 173 m
university
Vasile Goldis: Facultatea de Stiinte Juridice
Universități aprox. 217 m
kindergarten
Gradinita cu program saptamanal Nr. 2
Gradinițe aprox. 1949 m
Recreere
pub
Jad Cafe
Pub aprox. 67 m
park
Parcul Mihai Eminescu
Parcuri aprox. 297 m
sports-ground
Teren sportiv
Terenuri sport aprox. 497 m
supermarket
Ziridava Shopping Center
Supermarket aprox. 652 m

Proprietăți recomandate

Detalii de contact

Activ Property Services

Felicia Vasiu Agent imobiliar

Activ Property Services
PRO

Abonează-te la newsletter să fii primul care primește cele mai noi recomandări de proprietăți și sfaturi de la experți.

CONTACT

Creează alertă

Salvează căutarea ca să primești pe email ultimele anunțuri publicate

Spații comerciale de închiriat în zona Ultracentral, Arad