Închiriere spațiu ideal pentru cabinet medical în zona Harmanului

1.100 € / lună
10 € / mp / lună

Hărmanului, Brașov

Sup. utilă / mp. utili:
110 mp
Tip prop.:
Bloc de apartamente
An constr.:
1980 (Există)
  • • Locație aproximativă

Descriere spațiu comercial

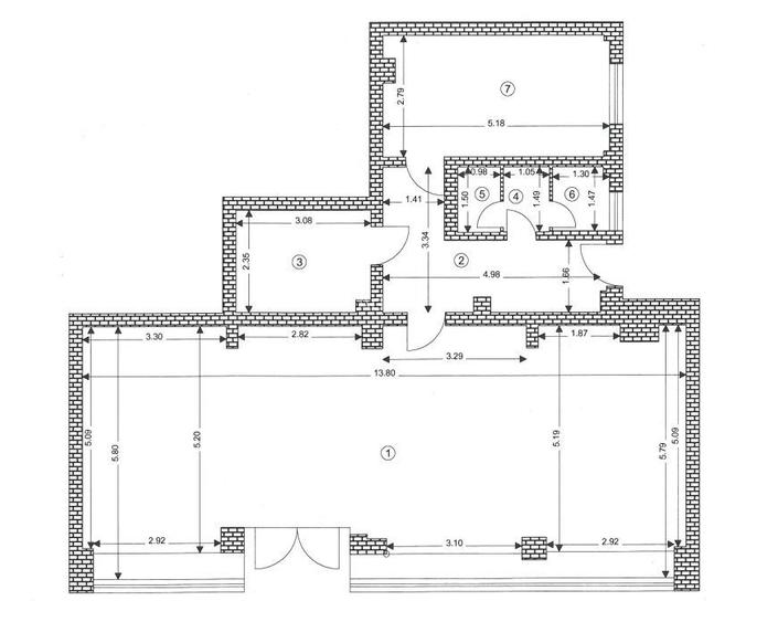
iAdvise Real Estate vă propune spre închiriere un spațiu cu o suprafață de 110 mp, situat la parterul unei clădiri într-o zonă liniștită din Brașov, aproape de zona Harmanului. Acest spațiu este potrivit pentru a fi folosit ca birou medical, laborator sau clinică de specialitate. Beneficiați de o locație ideală și de un spațiu generos, care include un birou, o zonă de depozitare, o baie și o încăpere open-space. Cu toate acestea, este nevoie de unele renovări, pentru a crea un spațiu confortabil și adaptat nevoilor dumneavoastră și ale pacienților dumneavoastră. Suntem dispuși să discutăm cu dumneavoastră și să vă ajutăm în realizarea amenajărilor și dotărilor necesare pentru a transforma acest spațiu într-un cabinet medical de succes. Nu ratați oportunitatea de a vă extinde afacerea într-o zonă cu potențial și de a oferi servicii medicale de înaltă calitate! Contactați-ne astăzi pentru a programa o vizionare și pentru a afla mai multe detalii! Alexandru Tudorache - Commercial Real Estate Specialist
Citește mai mult Citește mai puțin

Detalii spațiu comercial

ID anunț: X6T7140JE Copiat! 33258964 Copiat!
Actualizat în: 11 Februarie 2026
Suprafață utilă: 110 mp
Regim înălțime: P
Stadiu construcție: Există
Vitrină: Da

Utilități

Utilități
Curent Apă Canalizare

Disponibilitate proprietate:

data_properties.property_availability.Imediat

Puncte de interes

Mijloace transport
bus-station
Statia "Ceferistilor", linia 37
Stații autobuz aprox. 98 m
bus-station
Ceferistilor
Stații autobuz aprox. 98 m
train-station
Gara Brasov Călători CFR
Stații tren aprox. 1143 m
train-station
Statia CFR Brasov
Stații tren aprox. 1151 m
Școală
kindergarten
Gradinita cu program normal nr. 17 SG (fosta nr. 14)
Gradinițe aprox. 228 m
school
Scoala numarul 17
Școli aprox. 320 m
kindergarten
Gradinita 28
Gradinițe aprox. 432 m
university
Facultatea de Constructii - Universitatea Transilvania - Corpul J
Universități aprox. 702 m
Recreere
park
Zonă verde
Parcuri aprox. 187 m
supermarket
Lidl
Supermarket aprox. 375 m
sports-ground
Teren sportiv
Terenuri sport aprox. 668 m
public-square
Square & Monument (en)
Piețe publice aprox. 1164 m

Proprietăți recomandate

Detalii de contact

iAdvise

Alexandru Tudorache Associate Broker

5.00(12 review-uri)

iAdvise
PRO

Abonează-te la newsletter să fii primul care primește cele mai noi recomandări de proprietăți și sfaturi de la experți.

CONTACT

Creează alertă

Salvează căutarea ca să primești pe email ultimele anunțuri publicate

Spații comerciale cu 3 camere de închiriat în zona Hărmanului, Brașov