Vad Comercial Ridicat, Vizibilitate maxima

651 € / lună
11.84 € / mp / lună

Județean, Brașov

Sup. utilă / mp. utili:
55 mp
Tip prop.:
Bloc de apartamente
An constr.:
1980 (Există)
  • • Locație aproximativă

Descriere spațiu comercial

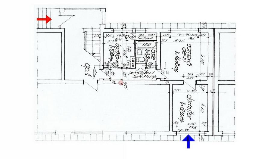
LOCALIZARE: Acest spatiu este situat in Brasov, in imediata apropiere a Spital Judetean. LAYOUT: Acesta este dispus pe 3 incaperi, avand urmatoarea compartimentare: - 2 incaperi; - bucatarie; - grup sanitar; - hol; SUPRAFATA COMERCIALA VITRATA: - 3 ml; DOTARI: - centrala termica; - 2 cai de acces; - grup sanitar; FACILITATI SI SERVICII: - Transport public, la 100m; AVANTAJE: - Zona cu vad comercial; - Suprafata vitrata; - Spatiu comercial in Cartea Funciara DESTINAȚIE COMERCIALA: - magazin alimentar; - show room; - sediu firmă; - cabinet stomatologic; - centru infrumusetare; - etc; FLEXIBILITATE SI SCALABILITATE: - NU exista posibilitatea extinderii spatiului. IMPREJURIMI: Spatiul este situat intr-o zona comerciala cu vad | cu acces pietonal. FORMA ACHIZITIONARE: - se accepta plata prin accesare credit. NOTA: Informatiile prezentate reflecta situatia reala a proprietatii, fara a constitui o oferta contractuala. Aceste date au fost obtinute verbal, de la titularul de drept al imobilului. Structura acestei prezentari nu poate fi reprodusa, fara acordul scris al The Seller and Partners.
Citește mai mult Citește mai puțin

Detalii spațiu comercial

ID anunț: X3I014J3A Copiat! 258690273 Copiat!
Actualizat în: 16 Aprilie 2026
Suprafață utilă: 55 mp
Regim înălțime: P
Stadiu construcție: Există
Vitrină: Da

Utilități

Utilități
Curent Apă Canalizare Gaze
Comision
standard

Disponibilitate proprietate:

Imediat

Puncte de interes

Mijloace transport
bus-station
Spitalul Judetean
Stații autobuz aprox. 252 m
bus-station
Liceul Informatica
Stații autobuz aprox. 272 m
train-station
Gara Brasov Călători CFR
Stații tren aprox. 1760 m
train-station
Statia CFR Brasov
Stații tren aprox. 1793 m
Școală
school
Colegiul de Stiinte Grigore Antipa
Școli aprox. 172 m
school
Cladirea Liceului
Școli aprox. 177 m
university
Universitatea "George Baritiu"
Universități aprox. 239 m
kindergarten
Gradinita particulara Tweety
Gradinițe aprox. 369 m
Recreere
park
Grigore Moisil High-School yard - Green Area (en)
Parcuri aprox. 280 m
supermarket
Carrefour Market
Supermarket aprox. 309 m
sports-ground
Teren sportiv
Terenuri sport aprox. 550 m
public-square
Square & Monument (en)
Piețe publice aprox. 1679 m

Proprietăți similare

Spațiu comercial, de 55 mp, în Județean
651 € / lună
Brașov, Județean
55 mp utili
1950
Spațiu comercial, de 101 mp, în Noua
590 € / lună
Brașov, Noua
101 mp utili
Bloc de apartamente
4E
Spațiu comercial, de 32 mp, în Tractorul
631 € / lună
Brașov, Tractorul
32 mp utili
Bloc de apartamente
2E

Detalii de contact

The Seller & Partners

Daniel Aioanei Senior Advisor

The Seller & Partners
PRO

Abonează-te la newsletter să fii primul care primește cele mai noi recomandări de proprietăți și sfaturi de la experți.

CONTACT

Creează alertă

Salvează căutarea ca să primești pe email ultimele anunțuri publicate

Spații comerciale cu 3 camere de închiriat în zona Județean, Brașov