Spatii de Inchiriat - Proprietate cu functiuni mixte - Str. Caplenilor Carei

250 € / lună
0.22 € / mp / lună

Carei, Județul Satu Mare

Sup. utilă / mp. utili:
1.120 mp
Tip prop.:
Casă/Vilă
Niv.:
1
  • • Comision 0%
  • • Exclusivitate
  • • Locație exactă

Descriere spațiu comercial

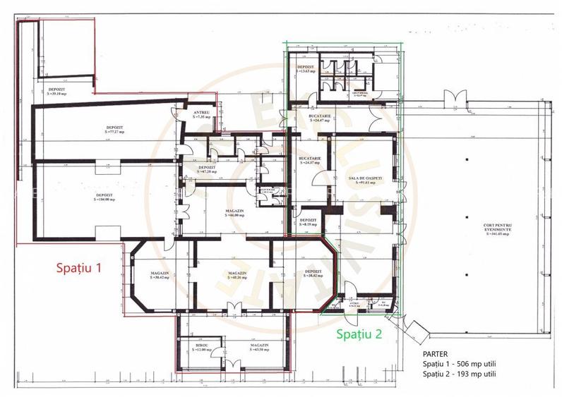
Cladire multifunctionala, ideala pentru afacerea ta! Va ofer spre inchiriere o proprietate cu 3 spatii delimitate situate in aceasi cladire, 2 spatii situate la parterul cladirii si unul la etajul 1 al cladirii, o proprietate cu potential exceptional, situata la iesirea din oras spre localitatea Capleni, intr-o zona intens circulata pe str. Caplenilor Nr. 103 . Cladirea construita in anul 1997 a fost consolidata si partial renovata in 2019 fiind realizata din caramida si BCA, fundatia din beton, acoperis cu tigla ceramica, usi si geamuri din PVC cu termopan, este racordata la curent electric trifazat, apa, canalizare. Cladirea dispune si de locuri de parcare in curte sau in fata imobilului avand un front stradal disponibil de 30 ml. Cladirea se compune din urmatoarele spatii compartimentate astfel, Spatiu 1 la parter cu suprafta de 506 mp compus din: - 9 incaperi semidecomandate - 1 grup sanitar - 1 antreu - 1 birou Spatiul dispune de curent electric trifazic cu contorizare individuala, apa, canalizare. Pret inchiriere 600 Euro/luna+garantie 2 luni de chirie la semnarea contractului Spatiu 2 la parter cu suprafata de 193 mp fosta Sala mica de evenimente compus din: - 4 incaperi semidecomandate - 3 grupuri sanitare - 2 holuri Spatiul dispune de curent electric trifazic cu contorizare individuala, apa, canalizare. Pret inchiriere 250 Euro/luna+garantie 2 luni de chirie la semnarea contractului Spatiu 3 la etaj cu suprafta de 413 mp fosta Sala mare de evenimente compus din: - 4 incaperi semidecomandate - 2 grupuri sanitare - 1 hol - 2 terase Spatiul dispune de curent electric trifazic cu contorizare individuala, apa, canalizare, aparate de aer conditionat. Pret inchiriere 400 Euro/luna+garantie 2 luni de chirie la semnarea contractului Proprietatea se poate inchiria si integral la pretul de 1250 Euro/luna+garantie 2 luni de chirie la semnarea contractului. Aceste spatii permit personalizarea completa a interiorului, adaptandu-se in functie de necesitatile afacerii viitorului chirias, fiind ideale pentru diverse afaceri precum spatii de birou, sediu firma, salon de infrumusetare, studio/sala de fitness, loc de joaca pentru copii etc. Toate acestea cu 0% comision pentru chirias! Și cum cea mai buna descriere este cea la fata locului, va invit cu drag la vizionare, astept sa ma contactati pentru mai multe informatii la telefon
07400**** Vezi tot numărul
. Structura rezistenta: caramida Nr terase: Nr grupuri sanitare: 6 Suprafata construita: 1456 mp Nr garaje: 0 Nr incaperi: 17 Utilitati - Climatizare (Aer conditionat); Utilitati generale (Curent,Apa,Canalizare) Finisaje - Podele (Gresie,Parchet); Stare interior (Buna); Iluminat (Lampi,Spoturi,Aplice,Lumina naturala); Ferestre cu geam termopan (PVC) Dotari - Contorizare (Apometre); Dotari imobil (Acoperis,Curte,Gradina) pretinchiriere: 250 monedainchiriere: EUR Disponibilitate proprietate: imediat
Citește mai mult Citește mai puțin

Detalii spațiu comercial

ID anunț: XCOR1402R Copiat! 267677384 Copiat!
Actualizat în: 08 Octombrie 2025
Regim înălțime: P+1E

Subspații disponibile

Chirie / u.m. / lună:
0.22 EUR/mp (total: 250 EUR/lună), Comision 0% cumpărător
Suprafață disponibilă:
1120
Disponibilitate spațiu:
imediat

Puncte de interes

Recreere
sports-ground
Sala de sport Iuliu Maniu
Terenuri sport aprox. 940 m
sports-ground
Teren sportiv
Terenuri sport aprox. 1143 m
park
Parc
Parcuri aprox. 1328 m
park
Parc
Parcuri aprox. 1372 m

Proprietăți recomandate

Detalii de contact

MR. EXCLUSIVITATE PREMIER SATU MARE

Florin Dubovici Consultant imobiliare

MR. EXCLUSIVITATE PREMIER SATU MARE

Abonează-te la newsletter să fii primul care primește cele mai noi recomandări de proprietăți și sfaturi de la experți.

CONTACT

Creează alertă

Salvează căutarea ca să primești pe email ultimele anunțuri publicate

Spații comerciale de închiriat în Carei, Județul Satu Mare