Închiriez spațiu comercial – alimentație publică – zona Gară, Cluj-Napoca

2.000 € / lună
18.52 € / mp / lună

Gară, Cluj-Napoca

Sup. utilă / mp. utili:
108,81 mp
Tip prop.:
Bloc de apartamente
An constr.:
1955 (Există)
  • • Locație aproximativă

Descriere spațiu comercial

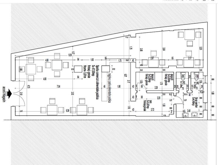
Ofer spre închiriere spațiu comercial situat în proximitatea Garii, zonă cu trafic pietonal intens și acces facil la mijloace de transport. 🔹 Suprafață: 109 mp suprafata desfasurata, 85 mp suprafata utila 🔹 Destinație: alimentație publică (fast-food, cafenea etc.) 🔹 Compartimentare: doua sali de servire, depozit, doua grupuri sanitare - F/B 🔹 Utilități: toate utilitățile disponibile (apă, gaz, curent) 🔹 Vad comercial: foarte bun, vizibilitate stradală 🔹 Acces: facil pentru clienți Spațiul este ideal pentru dezvoltarea unei afaceri în domeniul HoReCa, într-o zonă dinamică, cu flux constant de clienți. Pentru a programa o vizonare va rugam sa ne contactati
Citește mai mult Citește mai puțin

Detalii spațiu comercial

ID anunț: XFRB1400C Copiat! 275306856 Copiat!
Actualizat în: 23 Aprilie 2026
Tip tranzacție: De închiriat prin agent
Suprafață utilă: 108.81 mp
Regim înălțime: P
Stadiu construcție: Există
Vitrină: Da

Utilități

Utilități
Curent Apă Canalizare Gaze
Comision
standard

Disponibilitate proprietate:

Imediat

Puncte de interes

Mijloace transport
bus-station
Memorandumului Sud
Stații autobuz aprox. 148 m
bus-station
Statia Memorandumului I -dus, Linia 1
Stații autobuz aprox. 155 m
tram-station
Statia G. Baritiu 2 TRV, Linia 102
Stații tramvai aprox. 488 m
train-station
Gara Cluj-Napoca
Stații tren aprox. 1822 m
Școală
school
Școala "Ioan Bob"
Școli aprox. 70 m
school
Bathory Istvan High School (en)
Școli aprox. 191 m
university
Universitatea Tehnica
Universități aprox. 194 m
kindergarten
Gradinita UBB
Gradinițe aprox. 273 m
Recreere
supermarket
Magazin Mixt
Supermarket aprox. 47 m
public-square
Piața "Lucian Blaga" (fosta Păcii)
Piețe publice aprox. 166 m
sports-ground
Palatul Copiilor - Tennis court
Terenuri sport aprox. 377 m
park
Parcul I. L. Caragiale
Parcuri aprox. 482 m

Proprietăți similare

Spațiu comercial, de 250 mp, în Grigorescu
2.065 € / lună
Cluj-Napoca, Grigorescu
250 mp utili
Centru comercial
7E
Spațiu comercial, 94 mp în Mănăștur
1.815 € / lună
Cluj-Napoca, Mănăștur
94 mp utili
Bloc de apartamente
4E
Spațiu comercial, de 108.05 mp, în Între Lacuri
1.960 € / lună
Cluj-Napoca, Între Lacuri
108,05 mp utili
Bloc de apartamente

Detalii de contact

MLK OFFICE

Miko Laszlo Manager

5.00(3 review-uri)

MLK OFFICE

Abonează-te la newsletter să fii primul care primește cele mai noi recomandări de proprietăți și sfaturi de la experți.

CONTACT

Creează alertă

Salvează căutarea ca să primești pe email ultimele anunțuri publicate

Spații comerciale cu 3 camere de închiriat în zona Gară, Cluj-Napoca