Impakt Imobiliare va propune spre inchiriere un spatiu comercial cu potential excelent, situat intr-o zona intens circulata – Piata Cipariu, una dintre cele mai cunoscute si apreciate zone din Cluj-Napoca.
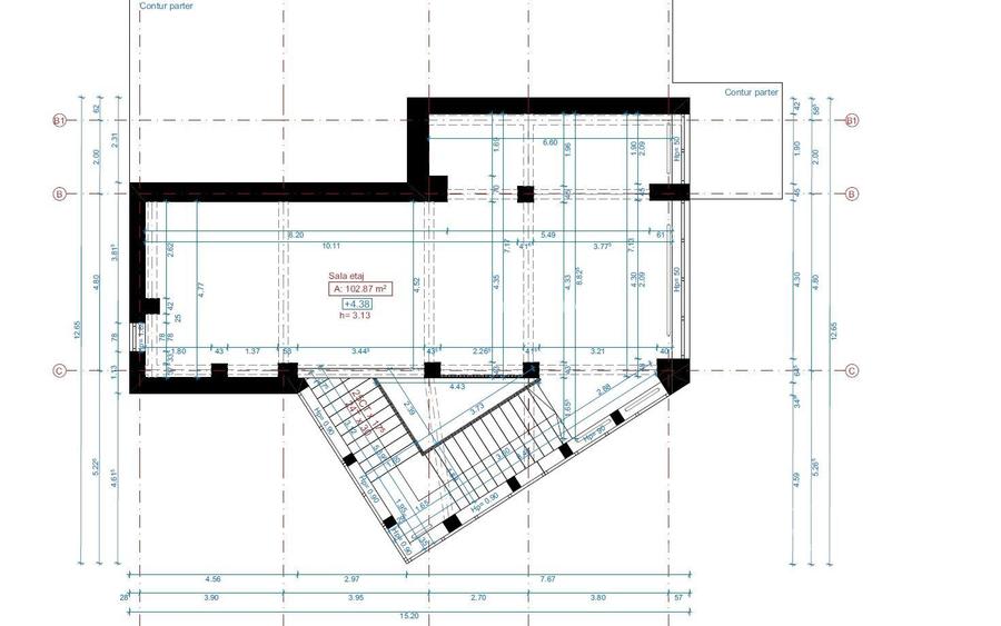
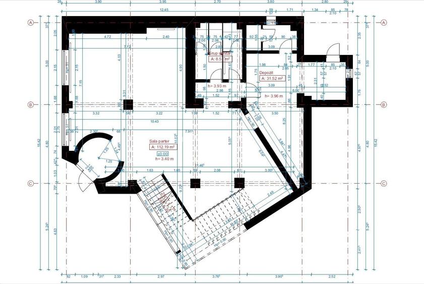
Spatiul are o suprafata utila de 264 mp si este dispus pe doua niveluri, fiind compartimentat functional pentru desfasurarea activitatilor de alimentatie publica:
Parterul gazduieste sala de vanzari/servire, bucataria, un spatiu de depozitare si un grup sanitar.
Etajul este open-space, oferind flexibilitate pentru organizarea unei sali suplimentare pentru servirea clientilor, evenimente sau birouri administrative.
In prezent, spatiul functioneaza ca restaurant, ceea ce il face ideal pentru preluare si continuare a activitatii in domeniul HoReCa, beneficiind de toate amenajarile necesare. Un mare avantaj este terasa situata in fata spatiului, care ofera vizibilitate excelenta si posibilitatea extinderii zonei de servire in aer liber – un real atu in sezonul cald.
Zona este cunoscuta pentru mixul echilibrat de trafic pietonal, rezidential si birouri, oferind un vad comercial foarte bun si o expunere excelenta.
Pentru mai multe detalii sau pentru a programa o vizionare, echipa Impakt Imobiliare va sta cu drag la dispozitie.
Sediul central - Timișoara
Bulevardul Victor Babeș nr. 2, 300230, Timișoara, România
Tel: +40.374.40.44.98 / Fax: +40.256.401.179
Email: suport@imobiliare.ro
Luni - Vineri 08:00 - 20:00
Punct de lucru - București: Iride Business Park, Bld. Dimitrie
Pompeiu 9-9A, Clădirea B2B,
020335, Sector 2, București, România
CONTACT
Sediul central - Timișoara
Bulevardul Victor Babeș nr. 2, 300230, Timișoara, România
Tel: +40.374.40.44.98 / Fax: +40.256.401.179
Email: suport@imobiliare.ro
Luni - Vineri 08:00 - 20:00
Punct de lucru - București: Iride Business Park, Bld. Dimitrie
Pompeiu 9-9A, Clădirea B2B,
020335, Sector 2, București, România
Liceul de Coregrafie si Arta Dramatica Octavian Stroia
aprox.
730 m
Colegiul National George Cosbuc
aprox.
779 m
Centrul Școlar pentru Educație Incluzivă ( fosta Școala Specială nr. 1)
aprox.
781 m
Liceul de Arte Plastice Romulus Ladea
aprox.
803 m
Liceul special pentru Deficienti de Vedere
aprox.
837 m
Gradinița Bethania
aprox.
839 m
Liceul de Coregrafie și Artă Dramatică Octavian St roia
aprox.
847 m
Liceul Teoretic Gheorghe Sincai
aprox.
852 m
Scoala Simion Barnutiu / Liceul pentru Deficienți de Auz
aprox.
865 m
Scoala Simion Barnutiu
aprox.
865 m
Scoala Generala Constantin Brancusi Cluj-Napoca
aprox.
865 m
Liceul pentru Deficienți de Vedere
aprox.
874 m
Liceul Teoretic "Gheorghe Sincai"
aprox.
875 m
Sapientia
aprox.
717 m
Facultatea de Stiinte Politice si Administrative (UBB)
aprox.
719 m
UBB Facultatea de Stiinte Politice
aprox.
719 m
Sapientia Erdelyi Magyar Tudomanyegyetem
aprox.
741 m
Centrul de Cooperare Internationala
aprox.
855 m
Universitatea Tehnica din Cluj
aprox.
955 m
Universitatea Spiru Haret
aprox.
1088 m
Facultatea de Sociologie (UBB)
aprox.
1104 m
Facultatea de Psihologie si Stiinte ale Educatiei
aprox.
1105 m
Facultatea de Sociologie si Asistenta Sociala
aprox.
1115 m
Institutul Culturii Clujene in Europa
aprox.
1127 m
UT Facultatea de Instalatii
aprox.
1132 m
Academia de Muzică "Gheorghe Dima"
aprox.
1137 m
UBB Teatru si Televiziune
aprox.
1142 m
Faculty of Theatre & Television, Babes-Bolyai University (en)
aprox.
1149 m
Profi
aprox.
417 m
Carrefour Express
aprox.
422 m
Complex Comercial Hermes
aprox.
605 m
Profi
aprox.
809 m
Carrefour
aprox.
877 m
Carrefour
aprox.
1201 m
Minimarket
aprox.
1266 m
Carrefour
aprox.
1292 m
Lidl
aprox.
1326 m
Carrefour Market
aprox.
1330 m
Lidl
aprox.
1334 m
Sigma Shopping Center
aprox.
1350 m
puiul de gaesti
aprox.
1354 m
Carrefour Market
aprox.
1373 m
Profi
aprox.
1395 m
Parcare privata
aprox.
305 m
Parcare
aprox.
377 m
Parcare
aprox.
383 m
Parcare
aprox.
385 m
Parcare
aprox.
398 m
Parcare
aprox.
424 m
Parcare
aprox.
434 m
Parcare privata
aprox.
519 m
Parcare
aprox.
527 m
Parcare
aprox.
531 m
Parcare privata
aprox.
552 m
Parcare
aprox.
610 m
Parcare
aprox.
659 m
Parcare
aprox.
716 m
parcare
aprox.
806 m
Parc
aprox.
246 m
Parc
aprox.
351 m
Parc
aprox.
382 m
p-ta Ion Agarbiceanu
aprox.
407 m
Piata Ion Agarbiceanu
aprox.
418 m
Parc
aprox.
463 m
Parc
aprox.
479 m
Parc
aprox.
546 m
Parc
aprox.
564 m
Iorga colt cu amos f. (en)
aprox.
566 m
Parcul Iorga
aprox.
567 m
Parcul Iorga
aprox.
567 m
Parc
aprox.
683 m
Parc
aprox.
738 m
Parc
aprox.
755 m
Teren sportiv
aprox.
770 m
Teren sportiv
aprox.
858 m
Teren sportiv
aprox.
874 m
Teren sportiv
aprox.
878 m
Teren sportiv
aprox.
899 m
Teren sportiv
aprox.
900 m
Teren sportiv
aprox.
908 m
Teren sportiv
aprox.
938 m
Teren sportiv
aprox.
1086 m
Teren sportiv
aprox.
1132 m
Teren sportiv
aprox.
1151 m
Teren sportiv
aprox.
1181 m
Teren sportiv
aprox.
1252 m
Teren sportiv
aprox.
1281 m
Teren sportiv
aprox.
1308 m
Piața "Lucian Blaga" (fosta Păcii)
aprox.
1603 m
Piata Mihai Viteazul
aprox.
1639 m
Farmacia Kamill
aprox.
383 m
Coral
aprox.
483 m
Eco Farmacia
aprox.
534 m
Farmacia Richter
aprox.
569 m
Catena
aprox.
589 m
Asmedica
aprox.
590 m
Farmacia Remedium
aprox.
598 m
Ducfarm
aprox.
600 m
Dona
aprox.
665 m
Farmacia Viva
aprox.
780 m
Farmadex
aprox.
815 m
Omnia
aprox.
822 m
Clinica Interservisan
aprox.
979 m
Nutricare
aprox.
1001 m
Farmacia
aprox.
1009 m
QClinic
aprox.
474 m
Centrul medical gastroenterologie si hepatologie
aprox.
571 m
Centrul Medical de Gastroenterologie, Hepatologie și Endoscopie Digestivă (en)
aprox.
576 m
Policlinica de Ginecologie Gynia
aprox.
610 m
Spitalul Clinic de Ortopedie
aprox.
646 m
Spitalul de Ortopedie
aprox.
659 m
Policlinica pentru Sportivi
aprox.
830 m
STOMA HD - Cabinet Stomatologic - Dr. Doru Hadarean (en)
aprox.
883 m
Clinica Interservisan (en)
aprox.
951 m
Novia Cosmetic Harmony Clinic
aprox.
967 m
Spitalul Ginecologic Stanca
aprox.
1147 m
Spitalul de Hematologie
aprox.
1226 m
Medicover Cluj
aprox.
1271 m
Dispensar Gheorghieni
aprox.
1314 m
Institutul Regional de gastroenterologie si hepatologie
aprox.
1319 m
Brancusi 85 Record Bistro
aprox.
130 m
Hanul Dacilor
aprox.
264 m
Restaurant Amurg
aprox.
330 m
Fork & Cork
aprox.
333 m
Pizza Venezia
aprox.
359 m
Trattoria Pineta
aprox.
382 m
Restaurant Hora
aprox.
394 m
Hora
aprox.
405 m
Gente
aprox.
408 m
Polo
aprox.
408 m
Engels Bistro
aprox.
416 m
Bolero
aprox.
424 m
Bolero
aprox.
437 m
Adi's Steakhouse
aprox.
503 m
Pizza Party
aprox.
560 m
Il Caffe dell' angolo
aprox.
221 m
Lady Cat
aprox.
308 m
Il caffe
aprox.
374 m
Chelsea Cigar Lounge
aprox.
504 m
CHOCODOR
aprox.
603 m
La Perne
aprox.
643 m
La Colt
aprox.
763 m
Phil's
aprox.
839 m
Crazy Cafe
aprox.
879 m
Snack & Coffe
aprox.
898 m
Sanko Cafe
aprox.
917 m
Opera Food & Cafe
aprox.
946 m
Zetta Caffe
aprox.
978 m
Graffiti
aprox.
1005 m
Bistro 23
aprox.
1038 m
Toni's Pub
aprox.
371 m
Ares
aprox.
448 m
Milenium Bar
aprox.
580 m
Ancuta Comimpex
aprox.
670 m
Blue Galaxy
aprox.
983 m
Pisti Bar
aprox.
997 m
Joben Bistro
aprox.
1012 m
La Movida
aprox.
1229 m
The Office Wine Bar
aprox.
1231 m
Club Litoral
aprox.
1253 m
Infinity Games
aprox.
1365 m
Caminul Zero
aprox.
1377 m
Cafe La Roca
aprox.
1410 m
Bar
aprox.
1440 m
Bulgakov Cathouse
aprox.
1452 m
Bistro
aprox.
683 m
Ancuta
aprox.
785 m
O'Beer Irish Pub
aprox.
790 m
Crama Borissza
aprox.
1116 m
Submarine
aprox.
1277 m
Hard Club
aprox.
1365 m
Phi 18
aprox.
1380 m
Che Guevara
aprox.
1394 m
The Jack
aprox.
1401 m
La Tevi
aprox.
1417 m
Spatiu
aprox.
1417 m
Makeba
aprox.
1496 m
Old Schepherd
aprox.
1527 m
Bermuda's Pub
aprox.
1545 m
Buricu' Targului
aprox.
1591 m
UniCredit
aprox.
407 m
BCR
aprox.
417 m
ProCredit Bank
aprox.
434 m
ING
aprox.
532 m
Procredit Bank
aprox.
542 m
Banca Comerciala Carpatica
aprox.
555 m
BRD
aprox.
575 m
Banca Transilvania
aprox.
579 m
Intesa Sanpaolo Bank
aprox.
594 m
CEC Bank - Sucursala Albac
aprox.
604 m
OTP Bank
aprox.
611 m
BRD
aprox.
628 m
Piraeus Bank
aprox.
658 m
Toyota; Raiffeisen bank
aprox.
752 m
Raiffeisen Bank
aprox.
752 m
Dată fiind apropierea de centru, cartierul este deservit de mai multe linii de transport în comun, în special autobuze, printre se numără: liniile 3 și 33 care circulă pe Bulevardul Nicolae Titulescu, autobuzele 34 și 48 care merg pe Strada Unirii și ajung la Iulius Mall (alături de liniile 24 și 24B), dar și liniile 20, 32, 32B și M13 care circulă pe Strada Constantin Brâncuși, la limita cu Andrei Mureșanu.
Dacă vei decide să te muți în Gheorgheni, probabil că nu vei avea de ce să-ți faci griji în ceea ce privește oportunitățile de educație. Aici vei găsi atât grădinițe ("Lumea Copiilor", "Paradisul Prichindeilor"), cât și școli (Școala Primară și Grădinița "Kinderland", Școala Gimnazială "Constantin Brâncuși") și licee (Liceul Teoretic "Lucian Blaga", Colegiul Național Pedagogic "Gheorghe Lazăr"). Aici se află și o importantă de învățământ superior, anume Facultatea de Științe Economice și Gestiunea Afacerilor (amplasată în apropiere de Iulius Mall). Aproape de granița cu Mărăștiul, se află și una dintre cele două clădiri ale Facultății de Științe Politice, Administrative și ale Comunicării, parte a Universității "Babeș-Bolyai".
Și în materie de shoppping locuitorii acestui cartier sunt avantajați, aceștia având acces la unul dintre cel mai bine reputate malluri din capitala Transilvaniei "“ este vorba despre Iulius Mall Cluj-Napoca, amplasat în imediata apropiere a lacului Gheorgheni. Având o vechime de peste zece ani, complexul comercial a devenit, în acest răstimp, una dintre destinațiile predilecte de cumpărături pentru clujenii din cartier (și nu numai). Pe lângă magazinele de îmbrăcăminte, încălțăminte, electrocasnice etc., în Iulius Mall se găsește și un hipermarket Auchan, ce completează oferta magazinelor de mai mici dimensiuni din cartier. Deloc de neglijat sunt, desigur, și facilitățile de petrecere a timpului liber oferite de centrul comercial, prin componenta de restaurante și cafenele, dar și prin cinema și locurile de joacă pentru copii (inclusiv în parcul exterior).
În ceea ce privește locurile de parcare, locuitorii Gheorgheniului beneficiază de un avantaj important, anume parcarea supraetajată, cu o capacitate pentru circa 350 de mașini, deschisă de către autorități pe Aleea Băișoara. Cei interesați de închirierea unui astfel de spațiu (aici, dar nu numai) se pot adresa funcționarilor de la Primăria de cartier.
La capitolul recreere, acest cartier al capitalei Transilvaniei beneficiază de multiple oportunități. Una dintre acestea este dată, bineînțeles, de accesul la Lacul Gheorgheni, unde clujenii pot ieși la plimbare, iar pasionații pot pescui. Potrivit pentru un timp de relaxare în aer liber este și parcul Mercur "“ amplasat la sud, în continuarea zonei de blocuri din centru, acesta este unul dintre cele mai liniștite și bine întreținute parcuri din Cluj-Napoca. Gheorgheniul oferă beneficii și pasionaților de sport: pe lângă sălile de fitness ce pot fi găsite în cartier, aceștia au acces și la două baze sportive. Cea dintâi este Baza Sportivă Napoca , dotată cu terenuri de fotbal cu teren sintetic și nocturnă, dar și teren multifuncțional. Cea de-a doua este Baza Sportivă Gheorgheni, ce se întinde pe o suprafață de peste nouă hectare și dispune, printre altele, de terenuri de minifotbal, badminton, tenis, beach-volei și baschet.
La capitolul sănătate, locuitorii acestui cartier al Clujului beneficiază de accesul rapid către centru, unde se găsesc cele mai multe instituții medicale de stat (precum Spitalul Clinic Județean de Urgență Cluj-Napoca, Spitalul Universitar CF Cluj, Institutul Oncologic "Prof. Dr. Ion Chiricuță" etc.). De asemenea, la marginea vestică a Gheorgheniului, aproape de granița cu Centrul, se găsește Spitalul Militar de Urgență "Doctor Constantin Papilian". Paleta de servicii medicale de stat din zonă este completată, desigur, de o serie de cabinete medicale particulare cu diverse specializări. De menționat la acest capitol ar fi Clinica Gynia, de pe Strada General Traian Moșoiu, nr. 60, ce oferă servicii în domeniul obstetrică și ginecologie.
Dacă ești un pasionat al ieșirilor în oraș, te vei bucura să afli că zona Gheorgheni oferă destule oportunități locuitorilor săi. La acest capitol, de menționat ar fi restaurantele "International Ballroom", "Rebreanu 3", dar și "Uzina de Mici". Alte variante interesante pentru o ieșire în oraș cu prietenii sunt disponibile, desigur, în zona Centrală a orașului de pe Someș, populară atât printre localnici, cât și printre turiști.
Dacă ai nevoie să efectuezi o operațiune bancară, în zona Gheorgheni poate fi găsit un sediu Banca Transilvania, dar și două sucursale BCR "“ una pe Strada Nicolae Titulescu, nr. 163, iar cealaltă, pe Bulevardul Nicolae Titulescu, nr. 4 (aproape de granița cu zona Andrei Mureșanu). Consultă harta și află unde sunt localizate și alte bănci sau ATM-uri în zona Gheorgheni:
Înainte să pleci...
Ești sigur că ai văzut și aceste proprietăți?
7.498 € / lună
Cluj-Napoca, Central
318 mp utili
Bloc de apartamente
8E
7.950 € / lună
Cluj-Napoca, Central
318 mp utili
Centru comercial
1E
4.500 € / lună
Cluj-Napoca, Andrei Mureșanu
255 mp utili
Bloc de apartamente
5E
5.210 € / lună
Cluj-Napoca, Mărăști
94,21 mp utili
Bloc de apartamente
10E
25.000 € / lună
Cluj-Napoca, Semicentral
1.307 mp utili
Bloc de apartamente
5E
3.333 € / lună
Cluj-Napoca, Gheorgheni
174,4 mp utili
Spațiu stradal
Creează alertă
Salvează căutarea ca să primești pe email ultimele anunțuri publicate
Spații comerciale cu 3 camere de închiriat în zona Gheorgheni, Cluj-Napoca
Cere detalii prin email
*
*
*
*
Detaliile tale de contact vor fi partajate cu Impakt Imobiliare