Transylvania Imobiliare vă propune spre închiriere un spațiu de birouri generos, situat în cartierul Grigorescu, zona Donath, într-o locație accesibilă și bine conectată.
Spațiul dispune de o suprafață utilă de aproximativ 250 mp și este poziționat la etajul 1 al unui imobil cu destinație mixtă.
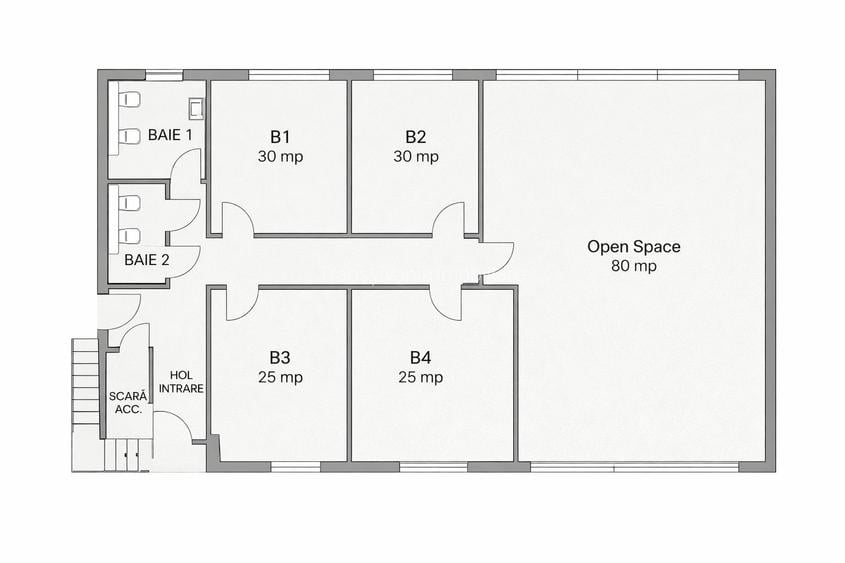
Compartimentare eficientă:
* 4 birouri individuale (30 mp / 30 mp / 25 mp / 25 mp)
* open space generos (~80 mp)
* 2 grupuri sanitare
* hol de acces + zonă de distribuție
* acces direct din casa scării
Caracteristici:
* compartimentare flexibilă (ideală pentru multiple tipuri de activitate)
* lumină naturală bună (geamuri pe lungimea spațiului)
* posibilitate recompartimentare
* curent trifazic
* spațiu versatil (birouri, sală cursuri, IT, call center etc.)
Flexibilitate în închiriere:
* se poate închiria întreg spațiul
* sau individual, pe birouri, în funcție de necesități
Avantaje:
* zonă liniștită, dar accesibilă
* potrivit atât pentru o singură companie, cât și pentru mai mulți chiriași
* suprafață mare, ușor de adaptat nevoilor
Ideal pentru firme IT, back-office, training, sală de dans sau alte activități comerciale.
Pentru detalii suplimentare sau programarea unei vizionări, nu ezitați să ne contactați!
Donath 132
Id anunt. CP2900823
Sediul central - Timișoara
Bulevardul Victor Babeș nr. 2, 300230, Timișoara, România
Tel: +40.374.40.44.98 / Fax: +40.256.401.179
Email: suport@imobiliare.ro
Luni - Vineri 08:00 - 20:00
Punct de lucru - București: Iride Business Park, Bld. Dimitrie
Pompeiu 9-9A, Clădirea B2B,
020335, Sector 2, București, România
CONTACT
Sediul central - Timișoara
Bulevardul Victor Babeș nr. 2, 300230, Timișoara, România
Tel: +40.374.40.44.98 / Fax: +40.256.401.179
Email: suport@imobiliare.ro
Luni - Vineri 08:00 - 20:00
Punct de lucru - București: Iride Business Park, Bld. Dimitrie
Pompeiu 9-9A, Clădirea B2B,
020335, Sector 2, București, România
Universitatea de Stiinte Agricole si Medicina Veterinara
aprox.
1666 m
Universitatea "Sapientia"
aprox.
1759 m
Universitatea de Stiinte Agricole si Medicina Veterinara
aprox.
1770 m
USAMV Cluj-Napoca
aprox.
1843 m
Facultatea de Farmacie
aprox.
1907 m
Pictura (Academia de arte vizuale "Ion Andreescu" Cluj-Napoca)
aprox.
1973 m
Universitatea de Arta si Design
aprox.
1973 m
Scoala Generala nr.15
aprox.
307 m
Liceul Teoretic Onisifor Ghibu
aprox.
307 m
Liceul Teoretic Onisifor Ghibu
aprox.
831 m
Scoala Generala Eugen Pora
aprox.
1491 m
Școala Iuliu Hațieganu
aprox.
1496 m
Scoala Iuliu Hatieganu
aprox.
1507 m
Liceul Teoretic Eugen Pora
aprox.
1507 m
Școala Generală "Ioan Lupaș"
aprox.
1517 m
Scoala Internationala Spectrum
aprox.
1524 m
Scoala Generala Nr.17, Ion Creangă
aprox.
1617 m
Scoala Ion Creanga
aprox.
1617 m
Liceul Teologic Adventist Maranatha
aprox.
1650 m
Scoala Octavian Goga
aprox.
1759 m
Școala Generală Nr. 29 / "Octavian Goga"
aprox.
1773 m
Scoala Speciala pentru Deficienti de Auz Nr. 2
aprox.
1787 m
FasTracKids Cluj-Napoca
aprox.
314 m
Grăd.Mica Sirenă
aprox.
319 m
Gradinita Mica Sirena
aprox.
342 m
Grăd.Mica Sirenă2
aprox.
346 m
Grăd.Mica Sirenă1
aprox.
509 m
Gradinita Licurici str. 1
aprox.
819 m
Gradinita Licurici
aprox.
847 m
Gradinita Steluta Fermecata
aprox.
1176 m
Gradinita Licuricistr. 2
aprox.
1193 m
Grăd.Albinuța
aprox.
1302 m
Grăd.Căsuța poveștilor
aprox.
1427 m
Grăd.Căsuța poveștilor2 / Grigore Alexandrescu 21
aprox.
1603 m
Grădinița "Albinuța"
aprox.
1642 m
Gradinita Albinuta
aprox.
1642 m
Grăd.Neghinițăstr. 2
aprox.
1657 m
OUTLET
aprox.
274 m
Magazin Profi Grigorescu
aprox.
548 m
Profi
aprox.
548 m
Penny Market
aprox.
1170 m
Carrefour Market
aprox.
1186 m
Profi
aprox.
1395 m
Complex Comercial Flora
aprox.
1409 m
Kaufland
aprox.
1523 m
Lidl
aprox.
1557 m
Mega Image
aprox.
1567 m
Profi
aprox.
1591 m
Cora
aprox.
1644 m
Carrefour Market
aprox.
1803 m
Profi City
aprox.
1831 m
Winmarkt
aprox.
1832 m
Parcare
aprox.
90 m
Parcare privata
aprox.
139 m
Parcare
aprox.
176 m
Parcare
aprox.
182 m
Parcare
aprox.
191 m
Parcare
aprox.
242 m
Parcare privata
aprox.
245 m
Parcare
aprox.
300 m
Parcare privata
aprox.
340 m
Parcare
aprox.
343 m
Parcare privata
aprox.
437 m
Parcare
aprox.
443 m
Parcare
aprox.
447 m
Parcare
aprox.
454 m
Parcare
aprox.
463 m
Parc
aprox.
109 m
Părculeț
aprox.
112 m
Parc
aprox.
115 m
Parc
aprox.
264 m
Spațiu joacă copii
aprox.
352 m
Parc
aprox.
359 m
Parc
aprox.
473 m
Parc
aprox.
487 m
Parc
aprox.
497 m
Parc
aprox.
497 m
Parc
aprox.
524 m
Parc
aprox.
525 m
Parc
aprox.
527 m
Parc agrement
aprox.
545 m
Parc
aprox.
548 m
Teren sportiv
aprox.
297 m
Teren sportiv
aprox.
624 m
Teren sportiv
aprox.
624 m
Teren sportiv
aprox.
650 m
Teren sportiv
aprox.
653 m
Teren sportiv
aprox.
655 m
Teren sportiv
aprox.
661 m
Teren sportiv
aprox.
664 m
Teren sportiv
aprox.
677 m
Teren sportiv
aprox.
682 m
Teren sportiv
aprox.
684 m
Teren sportiv
aprox.
686 m
Teren sportiv
aprox.
689 m
Teren sportiv
aprox.
693 m
Teren sportiv
aprox.
695 m
Policlinica Grigorescu
aprox.
185 m
Spitalul Clinic de Urgenta pentru copii Cluj-Napoca Neonatologie-prematuri
aprox.
597 m
Cabinet medical universitar
aprox.
867 m
Centrul Medical Halmasan
aprox.
1870 m
Pediatrie II + Urgente
aprox.
1970 m
Farmacia Herba
aprox.
280 m
Farmacia Grigorescu
aprox.
327 m
Viva
aprox.
455 m
Ropharma
aprox.
457 m
Farmacia Panaceea
aprox.
467 m
Viscum
aprox.
504 m
Cariatida Drogherie
aprox.
957 m
Cynara
aprox.
1368 m
Farmacia Salvie
aprox.
1388 m
Donna
aprox.
1411 m
Catena
aprox.
1554 m
Help Net
aprox.
1715 m
Galenus 2
aprox.
1726 m
Farmacia Europa
aprox.
1776 m
Farmacia Viva
aprox.
1854 m
Infinity Games
aprox.
83 m
Infinity Games
aprox.
446 m
Seven
aprox.
496 m
Uni Sports Bar
aprox.
1015 m
Cleo
aprox.
1899 m
Student Pop
aprox.
1922 m
Admiral
aprox.
88 m
Infinity Games
aprox.
414 m
Geo & Andi
aprox.
696 m
Marul de Aur
aprox.
987 m
Las Vegas Caffe
aprox.
1065 m
Cotton Club
aprox.
1107 m
Cheaters
aprox.
1929 m
Terasa Niko
aprox.
1963 m
Living Pub
aprox.
1992 m
Royal cafe
aprox.
107 m
PLAN Cafe
aprox.
390 m
bike44
aprox.
1128 m
Bookla
aprox.
1442 m
Meron Platinia
aprox.
1611 m
Bistro
aprox.
1830 m
Origine
aprox.
1853 m
Louie
aprox.
1956 m
Big Apple
aprox.
1960 m
Solas
aprox.
1967 m
Gap
aprox.
1985 m
Pizzeria Mamma Mia (en)
aprox.
112 m
La Luca
aprox.
169 m
Casa Vikingilor
aprox.
406 m
Restaurant "Sinaia"
aprox.
674 m
Restaurant Sinaia
aprox.
692 m
Cantina Hoia
aprox.
786 m
Terasa "Hoia"
aprox.
790 m
Nobori Plopilor
aprox.
946 m
Suete Restaurant-Pizzerie
aprox.
974 m
Platou Sala Sporturilor parcare (ocazional loc de Concerte)
aprox.
997 m
Boema
aprox.
1025 m
Restaurant Boema
aprox.
1036 m
Fair - Play
aprox.
1068 m
Restaurant Disco SUN
aprox.
1069 m
Restaurant/disco "Sun"
aprox.
1078 m
BCR
aprox.
453 m
Banca Transilvania
aprox.
460 m
Millenium Bank
aprox.
460 m
Banca Transilvania
aprox.
473 m
ING
aprox.
481 m
BRS, Banca Transilvania, BCR, UPC
aprox.
490 m
BRD
aprox.
503 m
CEC Bank
aprox.
510 m
ING
aprox.
1328 m
Banca Transilvania
aprox.
1340 m
Casa de ajutor reciproc
aprox.
1368 m
BCR
aprox.
1403 m
Bancpost
aprox.
1404 m
BRD
aprox.
1455 m
Banca Centrala Cooperatista Creditcoop
aprox.
1459 m
Strada Donath este una dintre principalele artere din Grigorescu, străbătându-l, de la sud-vest la est, până la limita cu Gruia "“ după care se continuă cu Strada General Eremia Grigorescu. Alte artere importante sunt și Bulevardul 1 Decembrie 1918, dar și Strada Octavian Goga (în partea de est). Ca și locuitorii din alte zone ale Clujului, cei din Grigorescu au la dispoziție o varietate de mijloace de transport în comun, menite să facă legătura atât între diferite puncte din interiorul cartierului, cât și cu alte zone ale orașului.
Nu vei avea prea mari dificultăți în găsirea unei grădinițe pentru micuțul tău (sau micuții tăi), fie că înclini spre instituțiile de stat sau particulare "“ din cea din urmă categorie de menționat sunt Grădinița "Țăndărică", dar și Grădinița "Patricia". În zonă ai destule opțiuni și în materie de școli și licee, cum ar fi Liceul Teoretic "Onisifor Ghibu". La capitolul instituții de învățământ superior, în Grigorescu se găsește Facultatea de Știința și Ingineria Mediului, parte din Universitatea "Babeș-Bolyai" din Cluj-Napoca. Ca oportunitate de cercetare în domeniul fizicii, în apropiere se află și Institutul Național de Cercetare-Dezvoltare pentru Tehnologii Izotopice și Moleculare (INCDTIM) Cluj-Napoca România.
La fel ca în majoritatea cartierelor clujene, în Grigorescu nu se găsește un mall propriu-zis; pasionații de shopping pot ajunge, însă, cu ușurință, în Plopilor "“ unde, aproape de granița cu Mănășturul și de cea cu Centrul, se află centrul comercial Platinia Shopping Center. În afară de numeroasele supermarketuri din cartier, atât locale, cât și afiliate unor rețele internaționale, în zonă se află și un hipermarket Cora. Amplasat pe Bulevardul 1 Decembrie 1918, aproape de granița cu Plopilor, acesta reprezintă o bună destinație de cumpărături pe segmentul produselor alimentare, băuturi, cosmetice etc.
Pentru cei care au mașină proprie, parcarea "liberă" nu reprezintă neapărat o problemă în cartierul Grigorescu. Cei care vor, totuși, să aibă un loc de parcare închiriat, cu toate actele în regulă, se pot interesa în această privință la sediul Primăriei de cartier, de pe Strada Alexandru Vlahuță, nr. 46-47.
Spre deosebire de alte zone ale Clujului, Grigorescu nu oferă foarte multe opțiuni în materie de parcuri amenajate. Câteva opțiuni ar fi Parcul "14 iulie", din zona de est a cartierului, dar și Parcul "La Butuci" și Parcul "Grigorescu". Tot lângă Canalul Someșului Mic se află și Plaja Grigorescu, special amenajată pentru locuitorii cartierului (și nu numai), ce poate fi o destinație perfectă de weekend pe timp de vară. Pentru cei pasionați de sport, în apropiere se află și un teren sintetic de fotbal, în cadrul Cotton Club. Nu în ultimul rând, o variantă de recreere la sfârșit de săptămână este și Muzeul Etnografic "Romulus Vuia" - chiar dacă acesta este amplasat dincolo de Strada Nicolae Pătrașcu.
În ceea ce privește serviciile medicale de stat din Grigorescu, pe strada Donath nr. 170 se găsește Spitalul Clinic de Copii Cluj-Napoca, Secția Prematuri. Datorită localizării sale favorabile, cartierul oferă un acces rapid și către multitudinea de spitale de stat existente în zona centrală a orașului, cum ar fi Spitalul Clinic Județean de Urgență Cluj-Napoca sau Spitalul Universitar C.F. Cluj-Napoca. În cartier există, desigur, și instituții medicale particulare "“ printre acestea se numără Policlinica Grigorescu, de pe Strada Ștefan Mora, nr. 1. Aceasta include un laborator de analize medicale și dispune de specializări în cardiologie, dermato-venerologie, endocrinologie, obstetrică-ginecologie, ORL, pediatrie, diabet zaharat, nutriție și boli metabolice.
În afară de câteva fast food-uri de cartier, locuitorii cartierului Grigorescu au la dispoziție, în cadrul acestuia, și alte câteva oportunități interesante la capitolul gastronomie. Printre acestea se numără restaurantul "Casa Vikingilor", amplasat pe Strada Alexandru Vhlahuță, nr. 41A, ce oferă și servicii de livrare la domiciliu, dar și restaurantul "Sinaia", de pe Bulevardul 1 Decembrie 1918. Pentru a beneficia de o gamă mai largă de opțiuni pentru ieșirile în oraș cu prietenii, poți vizita, desigur, și cartierele învecinate.
Dacă ai nevoie să efectuezi o operațiune bancară, te vei bucura să afli că acest cartier al Clujului este destul de bine deservit la acest capitol. Astfel, pe Strada Fântânele (nr. 7) vei găsi un sediu CEC Bank; în imediata apropiere a acestuia vei găsi alte două sucursale bancare, una din rețeaua Banca Transilvania, iar cealaltă, din rețeaua BCR. Consultă harta și află unde sunt localizate și alte bănci sau ATM-uri în cartierul Grigorescu:
Înainte să pleci...
Ești sigur că ai văzut și aceste proprietăți?
1.300 €
/ lună
Cluj-Napoca, Grigorescu
66 mp utili
Casă/Vilă
1.200 €
/ lună
Cluj-Napoca, Semicentral
100 mp utili
Bloc de apartamente
7E
697 - 12.191 €
/ lună
Cluj-Napoca, Aeroport
288 mp utili
Spațiu stradal
Creează alertă
Salvează căutarea ca să primești pe email ultimele anunțuri publicate
Spații comerciale cu o cameră de închiriat în zona Grigorescu, Cluj-Napoca
Cere detalii prin email
*
*
*
*
Detaliile tale de contact vor fi partajate cu Transylvania Imobiliare