Spațiu medical,370mp utili, 4 niveluri, parcari, Grigorescu

4.999 € + TVA / lună
13.51 € + TVA / mp / lună

Grigorescu, Cluj-Napoca

Sup. utilă / mp. utili:
370 mp
Tip prop.:
Spațiu stradal
Niv.:
1
An constr.:
2026
  • • Comision 0%
  • • Exclusivitate
  • • Locație exactă

Descriere spațiu comercial

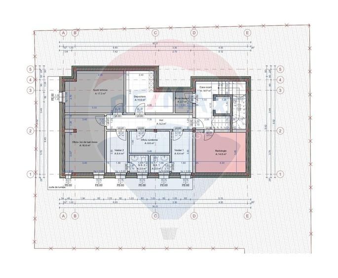
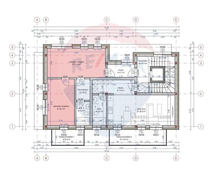
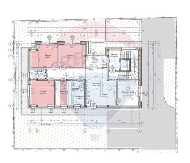
Va propunem spre inchiriere, in reprezentare exclusiva si fara comision din partea chiriasilor, o cladire mixta, edificata pe 4 niveluri (S+P+1+Er) in Grigorescu, strada Iacob Bologa nr.6 din Cluj-Napoca. Constructia va beeficia de 370mp utili, pe un teren de 465mp si va fi impartita in : -sala asteptare -6 cabinete cu posibilitate extindere pana la 8-9 cabinete(sali constultatie) -sala sterilizare -birouri administrative -4 grupuri sanitare -laboratoare Proiectata pentru a functiona ca si clinica stomatologica cu posibilitate de modificare. Inaltimea tavenelor la 3.6m, cu tot cu tavanul casetat, designul modern, cat si materialele de calitate, fac din aceasta cladire una perfecta pentru a desfasura orice fel de activitati medicale. Cladirea se preda la stadiul de finisat in 12 luni de la semnarea unui contract.. La cererea chiriasului se mai pot aduce modificari interioare. Se doreste chirias serios, de preferat cu isotric, pentru o colaborare pe termen lung. Pentru mai multe informatii, va rog sa ma contactati.
Citește mai mult Citește mai puțin
6 Parcări

Detalii spațiu comercial

ID anunț: XDV21402J Copiat! 274812842 Copiat!
Actualizat în: 31 Martie 2026
Suprafață utilă: 370 mp
Regim înălțime: P+1E
Suprafață teren: 465 mp

Utilități

Comision
0%

Puncte de interes

Mijloace transport
bus-station
Statia Buzau, Linia 26, 27, 28, 30, 41, CORA
Stații autobuz aprox. 163 m
bus-station
Buzau
Stații autobuz aprox. 181 m
tram-station
Statia Plopilor 2 TRV, Linia 102
Stații tramvai aprox. 876 m
tram-station
Plopilor Nord
Stații tramvai aprox. 876 m
Școală
university
Institutul de cercetari in chimie Raluca Ripan
Universități aprox. 147 m
kindergarten
FasTracKids Cluj-Napoca
Gradinițe aprox. 275 m
school
Scoala Generala nr.15
Școli aprox. 376 m
university
UBB Educatie Fizica si Sport
Universități aprox. 827 m
Recreere
park
Parc
Parcuri aprox. 133 m
restaurant
La Luca
Restaurant aprox. 201 m
supermarket
OUTLET
Supermarket aprox. 259 m
sports-ground
Teren sportiv
Terenuri sport aprox. 386 m

Proprietăți similare

Spațiu industrial, 650 mp în Grigorescu
5.400 € / lună
Cluj-Napoca, Grigorescu
650 mp utili
Depozitare
Spațiu industrial, 599 mp în Dâmbul Rotund
4.792 € / lună
Cluj-Napoca, Dâmbul Rotund
599 mp utili
Logistică
Spațiu comercial, 248.58 mp în Mănăștur
5.344 € / lună
Cluj-Napoca, Mănăștur
248,58 mp utili
Spațiu stradal

Detalii de contact

RE/MAX ENERGY

Andrei Szentmiklosy Team Leader

RE/MAX ENERGY
PRO

Abonează-te la newsletter să fii primul care primește cele mai noi recomandări de proprietăți și sfaturi de la experți.

CONTACT

Creează alertă

Salvează căutarea ca să primești pe email ultimele anunțuri publicate

Spații comerciale cu 4+ camere de închiriat în zona Grigorescu, Cluj-Napoca