Spatiu Comercial/Depozit Calea Manastur nr. 107-109-109A parter Pret negociabil

1.900 € + TVA / lună
14.50 € + TVA / mp / lună

Mănăștur, Cluj-Napoca

Sup. utilă / mp. utili:
131,1 mp
Tip prop.:
Bloc de apartamente
  • • Comision 0%
  • • Locație exactă

Descriere spațiu comercial

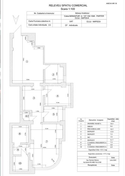
Spatiu Comercial/Depozitare/Activitati sportive/ Sala dansuri/ Medical etc., compartimentat. De inchiriat total sau partial. Suprafata construita: 171,2 mp Suprafata utila: 131,1 mp Nu are utilitati. Direct de la proprietar. COMISION 0% Contactează-ne pentru mai multe informații și pentru a programa o vizionare.
Citește mai mult Citește mai puțin
Nemodernizat

Detalii spațiu comercial

ID anunț: XFHU04003 Copiat! 246818377 Copiat!
Actualizat în: 29 Septembrie 2025
Nume proprietate: Spatiu Comercial/Depozit Calea Manastur nr. 107-109-109A parter Pret negociabil
Regim înălțime: P
Stadiu construcție: Există

Utilități

Utilități
Apă Canalizare Curent
Comision
0%

Subspații disponibile

Spatiu Comercial/Depozit Calea Manastur nr. 107-109-109A parter Pret negociabil

Spatiu Comercial/Depozitare/Activitati sportive/ Sala dansuri/ Medical etc., compartimentat. De inchiriat total sau partial. Suprafata construita: 171,2 mp Suprafata utila: 131,1 mp Nu are utilitati. Direct de la proprietar. COMISION 0% Contactează-ne pentru mai multe informații și pentru a programa o vizionare. 0735555888

Chirie / u.m. / lună:
14.5 EUR/mp (total: 1900.95 EUR/lună) + TVA + alte cheltuieli, Comision 0% cumpărător
Suprafață disponibilă:
131.1
Disponibilitate spațiu:
imediat
Etaj:
Parter

Puncte de interes

Mijloace transport
tram-station
Grigore Alexandrescu
Stații tramvai aprox. 72 m
tram-station
Statia Gr Alexandrescu1TRV, 102
Stații tramvai aprox. 94 m
bus-station
Statia Gr. Alexandrescu -intors Linia 1, 102, 25,7
Stații autobuz aprox. 249 m
bus-station
Ion Mester
Stații autobuz aprox. 253 m
Școală
kindergarten
Grăd.Albinuța
Gradinițe aprox. 129 m
school
Scoala Generala Eugen Pora
Școli aprox. 235 m
kindergarten
Grăd.Rază de soare str. 2
Gradinițe aprox. 505 m
university
Facultatea de Educatie Fizica si Sport
Universități aprox. 757 m
Recreere
restaurant
Pizza X
Restaurant aprox. 33 m
park
Parc
Parcuri aprox. 67 m
sports-ground
Teren sportiv
Terenuri sport aprox. 267 m
supermarket
Profi
Supermarket aprox. 307 m

Proprietăți recomandate

Detalii de contact

Societate pe actiuni

Alexandra Director Inchirieri

Societate pe actiuni

Abonează-te la newsletter să fii primul care primește cele mai noi recomandări de proprietăți și sfaturi de la experți.

CONTACT

Creează alertă

Salvează căutarea ca să primești pe email ultimele anunțuri publicate

Spații comerciale de închiriat în zona Mănăștur, Cluj-Napoca