BLING Imobiliare vă propune spre închiriere un spațiu comercial situat în zona Calea Florești, una dintre cele mai circulate și vizibile artere ale orașului, cu vad comercial excelent.
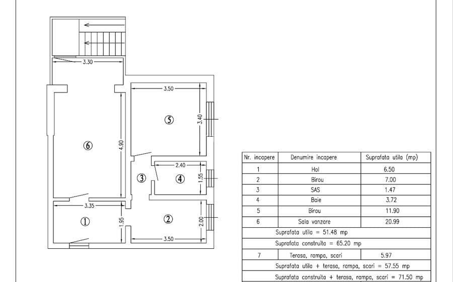
Spațiul are o suprafață utilă de 51 mp și este compartimentat eficient în 3 încăperi, hol, baie și vestiar, oferind flexibilitate pentru diverse tipuri de activități. Spațiul dispune de acces auto facil, precum și de locuri de parcare în proximitate, un avantaj important atât pentru clienți, cât și pentru angajați.
Destinația în Cartea Funciară este de spațiu comercial, ceea ce permite desfășurarea unei game variate de activități. Viitorii chiriași pot obține, în funcție de specificul activității, adeverințe de la urbanism pentru servicii cu acces public (de exemplu, salon de înfrumusețare), birouri, alimentație publică sau alte funcțiuni mixte, în conformitate cu reglementările zonei.
Spațiul beneficiază de intrare proprie și cale de acces dedicată, incalzirea se face cu ajutorul centralei termice proprii si calorifere. Costurile aferente abonamentului pentru calea de acces, precum și toate utilitățile, vor fi suportate de chiriaș.
O oportunitate ideală pentru dezvoltarea unei afaceri într-o zonă cu potențial ridicat!
Vă așteptăm la vizionare!
ID: P13775
Sediul central - Timișoara
Bulevardul Victor Babeș nr. 2, 300230, Timișoara, România
Tel: +40.374.40.44.98 / Fax: +40.256.401.179
Email: suport@imobiliare.ro
Luni - Vineri 08:00 - 20:00
Punct de lucru - București: Iride Business Park, Bld. Dimitrie
Pompeiu 9-9A, Clădirea B2B,
020335, Sector 2, București, România
CONTACT
Sediul central - Timișoara
Bulevardul Victor Babeș nr. 2, 300230, Timișoara, România
Tel: +40.374.40.44.98 / Fax: +40.256.401.179
Email: suport@imobiliare.ro
Luni - Vineri 08:00 - 20:00
Punct de lucru - București: Iride Business Park, Bld. Dimitrie
Pompeiu 9-9A, Clădirea B2B,
020335, Sector 2, București, România
Sună acum și cere detalii sau programează o vizionare.
Cere detalii prin email
*
*
*
*
Stații autobuz
Stații tramvai
Școli
Gradinițe
Universități
Supermarket
Mall
Parcări
Parcuri
Terenuri sport
Farmacie
Spital
Restaurant
Cafenea
Pub
Bar
Bancă
Piata Flora
aprox.
178 m
Taberei
aprox.
183 m
Statia PECO, liniile: 9,24,29,29B,52
aprox.
200 m
Statia PECO, Liniile:9,24,29,29B,52
aprox.
206 m
Statia Gr. Alexandrescu -intors Linia 1, 102, 25,7
aprox.
269 m
Ion Mester
aprox.
281 m
Stația "Pritax"
aprox.
311 m
Peana
aprox.
485 m
Statia Minerva II -intors Linia 1, 102, 6
aprox.
489 m
Statia Minerva, Liniile: 43,43b, 1,6,25, 101,102
aprox.
495 m
Minerva
aprox.
498 m
Statia MInerva I -dus Linia 1, 102
aprox.
509 m
Ciobanului
aprox.
509 m
Statia Minerva, Liniile: 43,43b,1,6,25,101,102
aprox.
512 m
Statia Izlazului I -dus Linia 1
aprox.
603 m
Calvaria
aprox.
308 m
Statia Gr Alexandrescu1TRV, 102
aprox.
314 m
Grigore Alexandrescu
aprox.
333 m
Statia Gr. Alexandrescu, Linia 6
aprox.
373 m
Minerva
aprox.
498 m
Parang
aprox.
502 m
Ravasului
aprox.
575 m
Statia Plopilor 2 TRV, Linia 102
aprox.
685 m
Plopilor Nord
aprox.
685 m
Plopilor Sud
aprox.
697 m
Clabucet
aprox.
943 m
Clabucet
aprox.
1059 m
Statia Sala Sporturilor 2TRV, Linia 102
aprox.
1414 m
Sala Sporturilor
aprox.
1478 m
Uzinei Electrice
aprox.
1484 m
Școala Iuliu Hațieganu
aprox.
238 m
Scoala Iuliu Hatieganu
aprox.
247 m
Scoala Generala Nr.17, Ion Creangă
aprox.
318 m
Scoala Ion Creanga
aprox.
320 m
Scoala Octavian Goga
aprox.
498 m
Școala Generală Nr. 29 / "Octavian Goga"
aprox.
519 m
Scoala Generala Eugen Pora
aprox.
596 m
Liceul Teoretic Eugen Pora
aprox.
612 m
Liceul Teologic Adventist Maranatha
aprox.
728 m
Scoala Constantin Brancoveanu
aprox.
844 m
Scoala Generala Nr. 3
aprox.
854 m
Școala Liviu Rebreanu / Liceul Liviu Rebreanu
aprox.
875 m
Scoala Liviu Rebreanu
aprox.
875 m
Colegiul Tehnic Edmond Nicolau
aprox.
924 m
Liceul Teologic Adventist
aprox.
1226 m
Grăd.Albinuța
aprox.
277 m
Grăd.Căsuța poveștilor2 / Grigore Alexandrescu 21
aprox.
306 m
Grădinița "Albinuța"
aprox.
371 m
Gradinita Albinuta
aprox.
371 m
Gradinita Licurici
aprox.
463 m
Grăd.Dumbrava minunată
aprox.
484 m
Grăd.Academia piticilor
aprox.
659 m
Gradinita Dumbrava Minunata
aprox.
740 m
Grăd.Rază de soare str. 2
aprox.
749 m
Gradinita cu orar prelungit nr. 72
aprox.
783 m
Gradinita Licurici str. 1
aprox.
864 m
Grăd.Buburuza
aprox.
912 m
Gradinita Buburuza
aprox.
918 m
Gradinita Speciala
aprox.
949 m
Grăd.Universul copiilor
aprox.
1007 m
UBB Educatie Fizica si Sport
aprox.
1049 m
Facultatea de Educatie Fizica si Sport
aprox.
1051 m
Institutul de cercetari in chimie Raluca Ripan
aprox.
1069 m
Platforma De Biotehnologie Bazata Pe Cunoastere
aprox.
1289 m
USAMV Cluj-Napoca
aprox.
1358 m
Universitatea de Stiinte Agricole si Medicina Veterinara
aprox.
1385 m
Universitatea de Stiinte Agricole si Medicina Veterinara
aprox.
1388 m
Facultatea de Zootehnie si Biotehnologii
aprox.
1402 m
Universitatea "Sapientia"
aprox.
1825 m
Profi
aprox.
167 m
Complex Comercial Flora
aprox.
199 m
Penny Market
aprox.
249 m
Carrefour Market
aprox.
268 m
Profi
aprox.
456 m
Profi City
aprox.
550 m
Carrefour Market
aprox.
675 m
Winmarkt
aprox.
690 m
Kaufland
aprox.
839 m
NONstop
aprox.
865 m
Magazin Profi Grigorescu
aprox.
879 m
Profi
aprox.
879 m
Profi
aprox.
962 m
Cora
aprox.
1029 m
Complex Nora
aprox.
1036 m
Complex comercial Polus
aprox.
1813 m
Parcare bloc B2
aprox.
117 m
Parcare Billa
aprox.
186 m
Parcare
aprox.
197 m
Parcare
aprox.
267 m
Parcare
aprox.
344 m
Parcare privata cu plata
aprox.
374 m
Parcare
aprox.
467 m
Parcare
aprox.
519 m
Parcare
aprox.
568 m
Parcare
aprox.
620 m
Parcare
aprox.
643 m
Parcare
aprox.
658 m
Parcare
aprox.
680 m
Parcare
aprox.
688 m
Parcare
aprox.
734 m
Parc
aprox.
72 m
Parc
aprox.
333 m
Parcul Primaverii, Manastur
aprox.
342 m
Parc
aprox.
345 m
Parc
aprox.
353 m
Parcul Primaverii
aprox.
362 m
Parc
aprox.
445 m
Parc
aprox.
489 m
Parc
aprox.
497 m
Parc
aprox.
519 m
Parc Mogosoaia
aprox.
543 m
Parc
aprox.
551 m
Parc
aprox.
575 m
Parcul Rozelor
aprox.
587 m
Parc
aprox.
594 m
Teren sportiv
aprox.
206 m
Teren sportiv
aprox.
221 m
Teren sportiv
aprox.
312 m
Teren sportiv
aprox.
403 m
Teren sportiv
aprox.
448 m
Teren sportiv
aprox.
474 m
Teren sportiv
aprox.
572 m
Teren sportiv
aprox.
582 m
Teren sportiv
aprox.
588 m
Teren sportiv
aprox.
589 m
Teren sportiv
aprox.
591 m
Teren sportiv
aprox.
591 m
Tennis Court
aprox.
594 m
Teren sportiv
aprox.
595 m
Teren sportiv
aprox.
596 m
Cynara
aprox.
204 m
Donna
aprox.
213 m
Catena
aprox.
316 m
Help Net
aprox.
495 m
Galenus 2
aprox.
503 m
Farmacia Europa
aprox.
507 m
Farmacia Viva
aprox.
557 m
Farmacia Richter
aprox.
577 m
Cariatida Drogherie
aprox.
582 m
Farmacia Salvie
aprox.
796 m
Viscum
aprox.
867 m
Ropharma
aprox.
923 m
Viva
aprox.
1015 m
Farmacia Herba
aprox.
1031 m
Farmacia Grigorescu
aprox.
1276 m
Cabinet medical universitar
aprox.
617 m
Farmacie
aprox.
1044 m
Clădirea Spitalului de Urgență nefinalizata
aprox.
1045 m
Spitalul Clinic de Urgenta pentru copii Cluj-Napoca Neonatologie-prematuri
aprox.
1077 m
Policlinica Grigorescu
aprox.
1238 m
Smile Dental Clinic
aprox.
1783 m
Medical Cor
aprox.
1795 m
Cabinetul Medical Zormed
aprox.
1820 m
Restaurant Ianis
aprox.
106 m
Restaurant Boema
aprox.
276 m
Boema
aprox.
286 m
Gradina de Vara Pedas
aprox.
296 m
Restaurant Sophia
aprox.
313 m
Restaurant Boierul
aprox.
331 m
EX Cafe
aprox.
398 m
Pizza X
aprox.
437 m
Restaurant & Pizza Daniel Berar
aprox.
455 m
Nobori Plopilor
aprox.
486 m
McDonald's
aprox.
543 m
Restaurant Casa Piratilor
aprox.
570 m
Casa Piratilor (en)
aprox.
583 m
Fast-Food "Big Lunch" (en)
aprox.
656 m
La Ses
aprox.
687 m
Bistro
aprox.
545 m
bike44
aprox.
1206 m
PLAN Cafe
aprox.
1213 m
Royal cafe
aprox.
1368 m
Meron Platinia
aprox.
1532 m
Origine
aprox.
1837 m
Ela & Cata
aprox.
1875 m
Big Apple
aprox.
1876 m
Louie
aprox.
1879 m
Solas
aprox.
1883 m
Gap
aprox.
1894 m
Black Sheep
aprox.
1917 m
Giuf Cafe
aprox.
1989 m
Seven
aprox.
862 m
Infinity Games
aprox.
1054 m
Old Pub
aprox.
1135 m
Uni Sports Bar
aprox.
1166 m
Infinity Games
aprox.
1386 m
Student Pop
aprox.
1868 m
Cleo
aprox.
1876 m
London Pub
aprox.
1904 m
Old Friends Pub
aprox.
1925 m
Ring Club
aprox.
1944 m
Cafe Bar
aprox.
991 m
Marul de Aur
aprox.
1100 m
Infinity Games
aprox.
1277 m
Admiral
aprox.
1366 m
Cotton Club
aprox.
1479 m
Geo & Andi
aprox.
1529 m
Las Vegas Caffe
aprox.
1877 m
Terasa Niko
aprox.
1887 m
Cheaters
aprox.
1890 m
Studio 26
aprox.
1900 m
Living Pub
aprox.
1902 m
Molecular Beams
aprox.
1908 m
Booha Bar
aprox.
1913 m
Rehab College Bar
aprox.
1922 m
Tube - Social Chemistry
aprox.
1974 m
ING
aprox.
131 m
Banca Transilvania
aprox.
148 m
Banca Centrala Cooperatista Creditcoop
aprox.
274 m
BCR
aprox.
291 m
Banca Transilvania
aprox.
292 m
Bancpost
aprox.
299 m
BRD
aprox.
388 m
CEC Bank
aprox.
480 m
BRD
aprox.
490 m
OTP Bank
aprox.
500 m
Millenium Bank
aprox.
507 m
Piraeus Bank
aprox.
507 m
Volksbank
aprox.
507 m
OTP Bank
aprox.
511 m
Intesa Sanpaolo Bank
aprox.
511 m
Una dintre principalele artere care străbate Mănășturul, pe direcția vest "“ nord-est, este Strada Primăverii; acesteia i se adaugă și Strada Câmpului și Strada Frunzișului, ambele pe direcția nord "“ sud-est. Cartierul este deservit de numeroase linii de transport în comun (atât autobuze, cât și troleibuze și tramvaie), menite să facă legătura cu celelalte zone ale orașului "“ și în mod special cu centrul.
Cartierul Mănăștur reprezintă o bună alegere pe termen lung din punctul de vedere al oportunităților de educație. În primă fază, în această zonă a orașului vei găsi numeroase grădinițe, atât de stat, cât și particulare. Ulterior, aici vei putea alege între numeroase școli (primare și gimnaziale), dar și licee. Pentru cei interesați, cartierul oferă și opțiuni în materie de învățământ superior. Este vorba, în primul rând, de Universitatea de Științe Agricole și Medicină Veterinară din Cluj-Napoca, amplasată în extrema de nord-est a cartierului, aproape de granița cu Plopilor. De menționat este și Universitatea "Bogdan Vodă", al cărei sediu se găsește pe strada Grigore Alexandrescu .
În ciuda faptului că poate fi considerat cel mai mare cartier al Clujului, în Mănăștur nu se găsește niciun mall propriu-zis. Cu toate acestea, de aici se poate ajunge cu ușurință atât la mallul Vivo!, din Florești, cât și la Platinia Shopping Center (amplasat în Plopilor, însă foarte aproape de granița cu Mănășturul și Centrul). În interiorul cartierului, o destinație mai apropiată de cumpărături poate fi centrul comercial Winmarkt Cluj (fostul "Big" Mănăștur), atât pe partea de fashion și cosmetice, cât și în materie de mobilă și electrocasnice. Tot aici se află și un Carrefour Market, o farmacie Sensiblu, precum și o sală de fitness. Alte opțiuni ar fi centrele comerciale Sirena (din apropierea stației Clabucet) și Flora (din vecinătatea pieței cu același nume). În Mănăștur se găsește și un hipermarket Kaufland (în zona Câmpului), alături de numeroase supermarketuri "“ dintre care unele afiliate unor rețele internaționale, precum Lidl, Profi sau Billa. Locuitorii acestei zone beneficiază și de câteva piețe amenajate, precum Flora sau Ion Meșter.
Pentru cei care au mașină, găsirea unui loc de parcare stabil în cartier poate fi o problemă "“ asta mai ales în zonele mai intens circulate și unde se află blocuri cu multe etaje. Dacă vrei să eviți situațiile neplăcute odată mutat aici, poți închiria un loc de parcare de la autoritățile locale (cererile pot fi depuse la Primăria de cartier, de pe Strada Ion Meșter, nr. 10).
Dacă ești pasionat de sport, te vei bucura să afli că în Mănăștur se află cea mai mare bază sportivă din Cluj-Napoca, anume Baza Sportivă "Unirea". Amplasat la marginea vestică a cartierului, un alt important spațiu de agrement este cunoscut sub denumirea "La terenuri". În ciuda amenajării sale deficitare, această zonă continuă să fie frecventată, îndeosebi în weekend, de către cei pasionați de activități în aer liber. Tot în Mănăștur găsești și parcurile "Colina" sau "Primăverii", cel din urmă fiind folosit și pentru organizarea unor evenimente culturale. Cartierul oferă și avantajul unui acces rapid către pădurea Făget "“ care poate fi destinația perfectă pentru o ieșire de weekend.
Dacă te gândești să te muți în Mănăștur, e bine să știi că strict în interiorul acestuia nu vei găsi, din păcate, niciun spital de stat "“ ceea ce nu înseamnă, însă, că vei duce lipsă de opțiuni în materie de servicii medicale. Asta pentru că locuitorii cartierului pot ajunge cu ușurință în zona centrală, unde vor avea acces la o serie de asemenea unități medicale. Un astfel de exemplu este Spitalul Clinic Județean de Urgență Cluj-Napoca, care este deschis 24 de ore din 24 "“ la fel ca și Spitalul Clinic Municipal Cluj-Napoca. De menționat sunt și Spitalul Universitar C.F. Cluj-Napoca, Spitalul de Pediatrie, Spitalul Clinic de Boli Infecțioase Cluj-Napoca, Spitalul de Pneumologie "Leon Daniello", dar și Spitalul Clinic de Recuperare Cluj-Napoca. În cartierul Mănăștur "“ sau în imediata sa apropiere "“ vei găsi, de asemenea, și o serie de clinici private, cum ar fi Medstar, Synevo, Union Medical, Centrul Medical Medexpert sau Centrul Medical "Jamgossian".
La capitolul gastronomie, locuitorii cartierului Mănăștur au la dispoziție, în proximitatea casei, și alte câteva variante demne de luat în seamă. Printre acestea se numără restaurantul "Casa Piraților", amplasat pe Strada Răvașului, nr. 16 (acesta dispune de terasă și oferă și servicii de livrare la domiciliu), dar și restaurantul "Valahia", de pe Strada Govora, nr. 27. În afară de restaurante, în această zonă a Clujului se mai găsesc, desigur, și o serie de fast food-uri, inclusiv o unitate McDonald's (pe Strada Primăverii, nr. 74). Alte opțiuni interesante pentru a lua masa în oraș oferă, desigur, și zona centrală.
La capitolul bănci și ATM-uri, este de așteptat ca această zonă a orașului să fie destul de bine deservită, date fiind dimensiunile sale. Spre exemplu, într-un areal destul de restrâns, anume în apropiere de intersecția dintre Strada Primăverii și Strada Izlazului, vei putea găsi patru sedii de bănci, anume un BRD și un BCR, alături de o sucursală Banca Românească și una a Băncii Transilvania. Consultă harta și află unde sunt localizate și alte bănci sau ATM-uri în cartierul Mănăștur:
Înainte să pleci...
Ești sigur că ai văzut și aceste proprietăți?
900 € / lună
Cluj-Napoca, Dâmbul Rotund
84 mp utili
Bloc de apartamente
1.000 € / lună
Cluj-Napoca, Zorilor
Rezidențial
900 € / lună
Cluj-Napoca, Borhanci
59 mp utili
Bloc de apartamente
2021
Creează alertă
Salvează căutarea ca să primești pe email ultimele anunțuri publicate
Spații comerciale cu 3 camere de închiriat în zona Mănăștur, Cluj-Napoca
Cere detalii prin email
*
*
*
*
Detaliile tale de contact vor fi partajate cu Bling Imobiliare