Spatiu pentru restaurant/delivery, 74 mp, terasa, zona Piata 1 Mai

1.000 € / lună
13.51 € / mp / lună

Mărăști, Cluj-Napoca

Sup. utilă / mp. utili:
74 mp
Tip prop.:
Bloc de apartamente
  • • Locație aproximativă

Descriere spațiu comercial

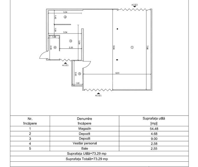
BLING Imobiliare va ofera spre inchiriere un spatiu autorizat pentru alimentatie publica, ideal pentru restaurant, bistro, cafenea, pub sau activitati de catering & delivery. Situat in zona Pietei 1 Mai, cartierul Marasti, spatiul beneficiaza de o pozitie excelenta, cu acces facil atat catre centrul orasului, cat si catre cartierele invecinate. Suprafata utila: 74 mp Terasa: aproximativ 80 mp Dotari: - curent trifazic - posibilitatea achizitionarii echipamentelor existente Spatiul se inchiriaza gol, oferind libertatea de a fi amenajat conform conceptului viitorului chirias. Atasat regasiti schita spatiului. O oportunitate excelenta pentru dezvoltarea unei afaceri de succes intr-o zona cu vad. ID: P11174 Nr grupuri sanitare: 2 Utilitati - Utilitati generale (Curent,Curent trifazic,Apa,Canalizare,Gaz) pret inchiriere: 1000 moneda inchiriere: EUR Disponibilitate proprietate: imediat
Citește mai mult Citește mai puțin

Detalii spațiu comercial

ID anunț: XE7D140ET Copiat! 270160079 Copiat!
Actualizat în: 11 Martie 2026
Suprafață utilă: 74 mp
Regim înălțime: P

Utilități

Utilități
Curent Apă Canalizare Gaze Curent trifazic
Mobilat
Nemobilat
Comision
60%+TVA

Subspații disponibile

Chirie / u.m. / lună:
13.51 EUR/mp (total: 1000 EUR/lună), Comision 60% cumpărător
Suprafață disponibilă:
74
Disponibilitate spațiu:
închiriat

Puncte de interes

Mijloace transport
bus-station
Statia Ploiesti, Liniile 23,52, 1
Stații autobuz aprox. 140 m
bus-station
Statia Ploiesti -dus Linia 1, 23, 52
Stații autobuz aprox. 214 m
tram-station
Horea
Stații tramvai aprox. 881 m
train-station
Gara Noua / "Gara de scurt parcurs"
Stații tren aprox. 1031 m
Școală
school
Școala Specială Centrul de Resurse și Documentare Privind Educația Incluzivă/Integrată
Școli aprox. 171 m
school
Liceul de Muzica Sigismund Toduta
Școli aprox. 183 m
kindergarten
Grăd.Bambi
Gradinițe aprox. 249 m
university
Matematicum (green building) (en)
Universități aprox. 376 m
Recreere
park
Parc
Parcuri aprox. 62 m
sports-ground
Teren sportiv
Terenuri sport aprox. 149 m
supermarket
Carrefour Market
Supermarket aprox. 620 m
public-square
Piata 1848
Piețe publice aprox. 683 m

Proprietăți recomandate

Detalii de contact

Bling Imobiliare

Silvia-Daniela Sas Broker

5.00(3 review-uri)

Bling Imobiliare

Abonează-te la newsletter să fii primul care primește cele mai noi recomandări de proprietăți și sfaturi de la experți.

CONTACT

Creează alertă

Salvează căutarea ca să primești pe email ultimele anunțuri publicate

Spații comerciale de închiriat în zona Mărăști, Cluj-Napoca