1

Spatiu Comercial 86mp in zona Sopor, Gheorgheni

2.000 € + TVA / lună
23.26 € + TVA / mp / lună

Sopor, Cluj-Napoca

Sup. utilă / mp. utili:
86 mp
Tip prop.:
Bloc de apartamente
  • • Locație aproximativă

Descriere spațiu comercial

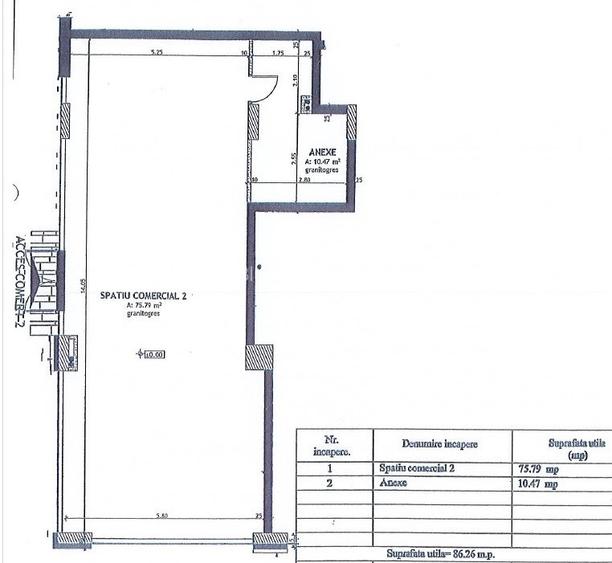
Va oferim spre inchiriere un spatiu comercial situat intr-un ansamblu exclusivist, in cartierul Gheorgheni, pe Strada Soporului. Detalii proprietate: Suprafata utila: 86 mp Doua fatade vitrate, care asigura o vizibilitate excelenta Design open-space pentru zona de vanzare, completata de anexe Toate utilitatile necesare, incluzand centrala termica individuala si incalzire in pardoseala Contorizare separata pentru fiecare utilitate Spatiul este disponibil imediat si este ideal pentru diverse tipuri de activitati comerciale. Chirie lunara: 2.000 EUR + TVA Pentru mai multe informatii si vizionari, contactati-ne! ID extern: P8563 Nr grupuri sanitare: 1 Nr incaperi: 2 Utilitati - Sistem incalzire (Centrala proprie,Incalzire pardoseala); Utilitati generale (Curent,Apa,Canalizare,Gaz,CATV,Telefon) Finisaje - Podele (Gresie,Parchet) Dotari - Contorizare (Apometre,Contor gaz); Dotari imobil (Curte comuna) pret inchiriere: 2000 moneda inchiriere: EUR Disponibilitate proprietate: imediat
Citește mai mult Citește mai puțin

Detalii spațiu comercial

ID anunț: XE7D14099 Copiat! 252240116 Copiat!
Actualizat în: 09 Martie 2026
Suprafață utilă: 86 mp
Regim înălțime: P

Utilități

Contorizare
Apometre Contor gaz
Mobilat
Nemobilat
Facilități imobil
Curte comună
Utilități
Curent Apă Canalizare Gaze CATV Telefon
Sistem încălzire
Centrală proprie Încălzire pardoseală
Podele
Parchet Gresie
Comision
60%+TVA

Subspații disponibile

Chirie / u.m. / lună:
23.26 EUR/mp (total: 2000 EUR/lună) + TVA, Comision 60% cumpărător
Suprafață disponibilă:
86
Disponibilitate spațiu:
închiriat

Puncte de interes

Mijloace transport
bus-station
Borhanciului
Stații autobuz aprox. 767 m
bus-station
Antim Ivireanul
Stații autobuz aprox. 785 m
bus-station
Theodor Pallady
Stații autobuz aprox. 820 m
bus-station
Violetelor
Stații autobuz aprox. 843 m
Școală
kindergarten
Grăd.Dumbrăvioara
Gradinițe aprox. 886 m
school
Happy Kids Internaional school
Școli aprox. 906 m
kindergarten
Cresa Lizuca
Gradinițe aprox. 1339 m
university
Casa Agronomului (en)
Universități aprox. 1398 m
Recreere
sports-ground
Teren sportiv
Terenuri sport aprox. 567 m
park
Parcul Detunata
Parcuri aprox. 732 m
supermarket
Profi
Supermarket aprox. 1039 m
restaurant
Alimentatie publica
Restaurant aprox. 1048 m

Proprietăți recomandate

Detalii de contact

Bling Imobiliare

Alexandros Stancu Broker

Bling Imobiliare

Abonează-te la newsletter să fii primul care primește cele mai noi recomandări de proprietăți și sfaturi de la experți.

CONTACT

Creează alertă

Salvează căutarea ca să primești pe email ultimele anunțuri publicate

Spații comerciale de închiriat în zona Sopor, Cluj-Napoca