1

Inchiriere spatiu comercial alimentatie publica in Piata Muzeului

2.499 € / lună
24.50 € / mp / lună

Ultracentral, Cluj-Napoca

Sup. utilă / mp. utili:
102 mp
Tip prop.:
Casă/Vilă
Niv.:
2
An constr.:
1900 (Există)
  • • Locație exactă

Descriere spațiu comercial

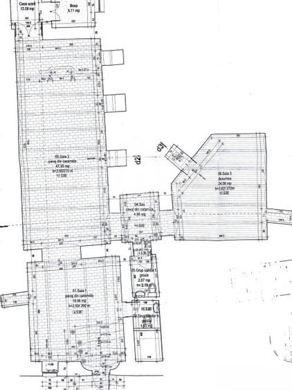
RBC Imobiliare inchirieaza un spatiu comercial cu destinatie de alimentatie publica situat intr-o zona strategica de restaurante/baruri/alimentatie publica, situat in Piata Muzeului, la demisolul unei cladiri de 2 etaje, cu intrare directa din strada. Spatiul oferit spre inchiriere are 102 mp si este compus din 3 sali, 1 grup sanitar pentru femei, 1 grup sanitar pentru barbati, 1 sas. Exista posibilitate de a inchiria terenul din fata spatiului de la Consiliul Local pentru servire in exterior. In cazul in care doriti sa vizionati acest spatiu, va rog sa ma sunati. Detine certificat de performanta energetica clasa B.
Citește mai mult Citește mai puțin
Nemodernizat

Detalii spațiu comercial

ID anunț: X54N040T3 Copiat! 271149849 Copiat!
Actualizat în: 21 Ianuarie 2026
Tip tranzacție: De închiriat prin agent
Nume proprietate: spatiu comercial
Regim înălțime: 1S+D+P+2E
Stadiu construcție: Există

Utilități

Utilități
Apă Canalizare Curent

Certificat energetic:

Clasa energetică: B

Subspații disponibile

comercial

RBC Imobiliare inchirieaza un spatiu comercial cu destinatie de alimentatie publica situat intr-o zona strategica de restaurante/baruri/alimentatie publica, situat in Piata Muzeului, la demisolul unei cladiri de 2 etaje, cu intrare directa din strada. Spatiul oferit spre inchiriere are 102 mp si este compus din 3 sali, 1 grup sanitar pentru femei, 1 grup sanitar pentru barbati, 1 sas. Exista posibilitate de a inchiria terenul din fata spatiului de la Consiliul Local pentru servire in exterior. In cazul in care doriti sa vizionati acest spatiu, va rog sa ma sunati. Detine certificat de performanta energetica clasa B.

Chirie / u.m. / lună:
24.50 EUR/mp (total: 2499 EUR/lună)
Suprafață disponibilă:
102
Disponibilitate spațiu:
imediat
Etaj:
Demisol / 2

Puncte de interes

Mijloace transport
bus-station
Central
Stații autobuz aprox. 194 m
tram-station
Gheorghe Baritiu
Stații tramvai aprox. 196 m
bus-station
Emil Isac
Stații autobuz aprox. 207 m
train-station
Gara Cluj-Napoca
Stații tren aprox. 1431 m
Școală
university
Universitatea de arta si design Cluj-Napoca
Universități aprox. 37 m
school
Scoala Gimnaziala Reformata Talentum
Școli aprox. 82 m
university
Universitatea Tehnică
Universități aprox. 94 m
kindergarten
Grăd.Universității Babeș< Bolyai
Gradinițe aprox. 357 m
Recreere
park
Parcul I. L. Caragiale
Parcuri aprox. 87 m
supermarket
Koncert
Supermarket aprox. 110 m
public-square
Piata Mihai Viteazul
Piețe publice aprox. 448 m
sports-ground
Teren sportiv
Terenuri sport aprox. 712 m

Proprietăți similare

Spațiu comercial, de 180.00 mp, în Central
2.500 € / lună
Cluj-Napoca, Central
180 mp utili
Casă/Vilă
1E
Spațiu comercial, de 85 mp, în Mărăști
2.500 € / lună
Cluj-Napoca, Mărăști
85 mp utili
Bloc de apartamente
10E
Spațiu comercial, de 112 mp, în Grigorescu
2.451 € / lună
Cluj-Napoca, Grigorescu
112 mp utili
Bloc de apartamente
3E

Detalii de contact

RBC Imobiliare

Ildiko Consilier Imobiliar

RBC Imobiliare
PRO

Abonează-te la newsletter să fii primul care primește cele mai noi recomandări de proprietăți și sfaturi de la experți.

CONTACT

Creează alertă

Salvează căutarea ca să primești pe email ultimele anunțuri publicate

Spații comerciale de închiriat în zona Ultracentral, Cluj-Napoca