Spatiu comercial de inchiriat P+1 – 464 mp, open space, Zona Casa de Cultura

5.000 € + TVA / lună
10.78 € + TVA / mp / lună

Casa de Cultură, Constanța

Sup. utilă / mp. utili:
464 mp
Tip prop.:
Centru comercial
Niv.:
1
  • • Exclusivitate
  • • Locație aproximativă

Descriere spațiu comercial

Spatiu comercial generos, situat in zona Casa de Cultura, una dintre cele mai active si bine conectate zone ale orasului, cu trafic pietonal si auto intens. Pozitionarea ofera vizibilitate buna si acces facil catre principalele artere, fiind potrivit pentru activitati comerciale, showroom, clinica, sala de fitness, birouri sau centru de servicii. Imobilul este dispus pe parter si etaj, avand o suprafata totala de 464 mp, configurata open space, ceea ce permite amenajarea si compartimentarea spatiului in functie de necesitatile viitorului chirias. Suprafata generoasa si compartimentarea flexibila ofera multiple posibilitati de organizare, fiind ideala pentru afaceri care necesita spatiu amplu pentru activitate, prezentare sau interactiune cu clientii. Proprietatea beneficiaza de 5 locuri de parcare, un avantaj important pentru angajati si clienti. Datorita dimensiunii, configuratiei si pozitionarii intr-o zona cu acces facil la transport si puncte de interes, spatiul reprezinta o optiune potrivita pentru dezvoltarea unei afaceri intr-o zona bine cotata a orasului. Nr grupuri sanitare: 4 Suprafata construita: 500 mp Nr incaperi: 2 Utilitati - Sistem incalzire (Centrala proprie); Climatizare (Aer conditionat); Utilitati generale (Curent,Apa,Canalizare,Gaz) Finisaje - Izolatii termice (Exterior); Ferestre cu geam termopan (PVC) Dotari - Contorizare (Apometre,Contor gaz) pret inchiriere: 5000 moneda inchiriere: EUR Disponibilitate proprietate: imediat
Citește mai mult Citește mai puțin
8 Parcări

Detalii spațiu comercial

ID anunț: X44M140F9 Copiat! 275224886 Copiat!
Actualizat în: 09 Martie 2026
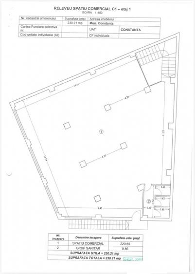
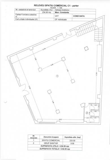
Suprafață utilă: 464 mp
Regim înălțime: P+1E
Structură rezistență: BCA

Utilități

Contorizare
Apometre Contor gaz
Mobilat
Nemobilat
Utilități
Curent Apă Canalizare Gaze
Sistem încălzire
Centrală proprie
Climatizare
Aer condiționat
Izolații termice
Exterior
Ferestre cu geam termopan
PVC
Comision
50%+TVA

Subspații disponibile

Chirie / u.m. / lună:
10.78 EUR/mp (total: 5000 EUR/lună) + TVA, Comision 50% cumpărător
Suprafață disponibilă:
464
Disponibilitate spațiu:
închiriat

Puncte de interes

Mijloace transport
bus-station
Statia Policlinica CFR; Linia 48
Stații autobuz aprox. 132 m
bus-station
autogara Constanta Sud
Stații autobuz aprox. 266 m
train-station
Gara Constanța(1960)
Stații tren aprox. 302 m
train-station
Gara CFR Constanta(1960)
Stații tren aprox. 343 m
Școală
kindergarten
Gradinita nr. 44 Constanta
Gradinițe aprox. 148 m
kindergarten
Grădinița cu orar prelungit nr. 44
Gradinițe aprox. 225 m
school
COLEGIUL TEHNIC VASILE PÂRVAN
Școli aprox. 477 m
university
Anatomy Department, Faculty of General Medicine (en)
Universități aprox. 725 m
Recreere
public-square
Victory Square (en)
Piețe publice aprox. 475 m
supermarket
Kaufland
Supermarket aprox. 500 m
park
Parcul Gării
Parcuri aprox. 546 m
sports-ground
Teren sportiv
Terenuri sport aprox. 877 m

Proprietăți similare

Spațiu comercial, de 664.00 mp, în Casa de Cultură
5.000 € / lună
Constanța, Casa de Cultură
664 mp utili
data_properties.building_type.shopping-center
1E
Spațiu industrial, 800 mp în Zona Industrială
4.800 € / lună
Constanța, Zona Industrială
800 mp utili
Logistică
1E
Spațiu comercial, 400 mp în Dacia
5.000 € / lună
Constanța, Dacia
400 mp utili
Centru comercial
2E

Detalii de contact

S.C. BLUE SKY IMPEX S.R.L

Cristi Stroe Manager vanzari

5.00(5 review-uri)

S.C. BLUE SKY IMPEX S.R.L
PRO

Abonează-te la newsletter să fii primul care primește cele mai noi recomandări de proprietăți și sfaturi de la experți.

CONTACT

Creează alertă

Salvează căutarea ca să primești pe email ultimele anunțuri publicate

Spații comerciale de închiriat în zona Casa de Cultură, Constanța