Dacia - bd. Tomis, SPATIU COMERCIAL, 80 mp.

900 € / lună
11.25 € / mp / lună

Dacia, Constanța

Sup. utilă / mp. utili:
80 mp
Tip prop.:
Centru comercial
  • • Locație aproximativă

Descriere spațiu comercial

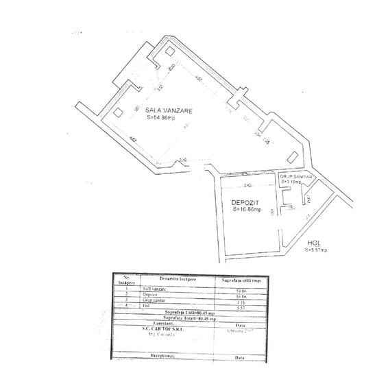
Agenția imobiliară Zig-Zag vă propune spre închiriere un spațiu comercial amplasat excelent în zona Dacia, pe Bulevardul Tomis – una dintre cele mai dinamice și circulate zone ale orașului, cu vad comercial format și flux constant de pietoni, recunoscută pentru densitatea rezidențială ridicată și activitatea comercială susținută, ceea ce face din acest spațiu o alegere excelentă pentru dezvoltarea unei afaceri stabile și vizibile. Spațiul dispune de o suprafață utilă totală de 80 mp și beneficiază de o compartimentare practică, adaptabilă mai multor tipuri de activități: - open space generos de aproximativ 54 mp, ideal pentru zonă de vânzare, recepție sau showroom ; - birou separat, potrivit pentru activități administrative ; - grup sanitar propriu. Caracteristici și avantaje: - poziționare stradală, cu vizibilitate excelentă ; - vitrină generoasă (fațadă vitrată), ideală pentru promovare și expunere; - acces direct din bulevard ; - spațiu luminos, cu potențial ridicat de personalizare ; - toate utilitățile contorizate separat, centrală termică proprie pe gaze. Destinații recomandate: activități comerciale (retail), showroom, sediu firmă / birouri, servicii profesionale, salon de înfrumusețare sau alte activități similare etc. Proprietar persoană juridică (chirie nepurtătoare de TVA) Pentru mai multe informații sau programarea unei vizionări, vă invităm să contactați agenția Zig-Zag !
Citește mai mult Citește mai puțin

Detalii spațiu comercial

ID anunț: XECR140G9 Copiat! 275368067 Copiat!
Actualizat în: 31 Martie 2026
Suprafață utilă: 80 mp
Structură rezistență: Beton
Stadiu construcție: Finalizată

Utilități

Utilități
Curent Apă Canalizare
Comision
50%

Puncte de interes

Mijloace transport
bus-station
Statia Liceul 4; Linia 42
Stații autobuz aprox. 60 m
bus-station
Liceul 4 [42]
Stații autobuz aprox. 65 m
bus-station
Liceul 4 [2-43
Stații autobuz aprox. 99 m
bus-station
StatieTaxi - Victorya
Stații autobuz aprox. 150 m
Școală
school
Gradinita 26 Constanta
Școli aprox. 124 m
school
The Tomis Technical College (en)
Școli aprox. 210 m
kindergarten
Grădinița cu orar prelungit nr. 6
Gradinițe aprox. 465 m
university
Ovidius University, the Medicine Faculty (en)
Universități aprox. 626 m
Recreere
supermarket
Perla
Supermarket aprox. 58 m
park
"Tomis 2" Fountain (en)
Parcuri aprox. 330 m
sports-ground
Stadionul Farul
Terenuri sport aprox. 519 m
public-square
Piața Chiliei
Piețe publice aprox. 616 m

Proprietăți similare

Spațiu industrial, 125 mp în Zona Industrială
875 € / lună
Constanța, Zona Industrială
130 mp utili
Depozitare
2024
Spațiu comercial, 85 mp în Central
4.760 RON / lună
Constanța, Central
85 mp utili
Casă/Vilă
1E
Teren construcție, în Zona Industrială
900 € / lună
Constanța, Zona Industrială

Detalii de contact

ZIG ZAG INTERMED

Oana Barbieru

4.80(5 review-uri)

ZIG ZAG INTERMED
PRO

Abonează-te la newsletter să fii primul care primește cele mai noi recomandări de proprietăți și sfaturi de la experți.

CONTACT

Creează alertă

Salvează căutarea ca să primești pe email ultimele anunțuri publicate

Spații comerciale cu 2 camere de închiriat în zona Dacia, Constanța