Spațiu Comercial Premium de 190 mp | Open Space | Corbeanca – Petrești

3.500 € / lună
18.42 € / mp / lună

Corbeanca, Județul Ilfov

Sup. utilă / mp. utili:
190 mp
Tip prop.:
Spațiu stradal
  • • Locație aproximativă

Descriere spațiu comercial

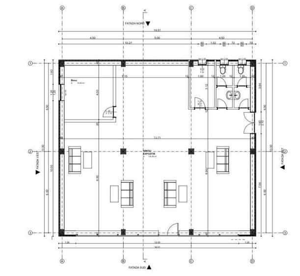
North Bucharest oferă spre închiriere un spațiu comercial generos de 190 mp, situat într-o zonă strategică din Corbeanca – Petrești, cu acces facil și vizibilitate foarte bună. Spațiul este open space și permite compartimentare flexibilă în funcție de necesitățile chiriașului. Ideal pentru activități comerciale diverse: supermarket, showroom, restaurant, cafenea, birouri, farmacie, bancă, magazin de prezentare, magazin alimentar etc. A. Detalii spațiu: Suprafață totală: 190 mp Configurație: open space (posibilitate de împărțire în două unități separate) Zonă expozițională centrală: 138.46 mp Birou: 14.40 mp Grupuri sanitare: 2 (bărbați/femei), fiecare cu 2 lavoare și toaletă Cameră tehnică / depozitare: 12.60 mp B. Configurație compartimentare: Acces principal din fațada sud (intrare pietonală) 2 accese secundare: unul în lateral (est) și unul în spate (nord) Spațiul este luminat natural din toate părțile – ferestre mari pe fiecare fațadă Posibilitate de recepție / zonă de așteptare Se pot amenaja cu ușurință birouri, spații de vânzare, zonă de servire, depozitare etc. C. Prețuri și opțiuni de închiriere: Varianta integrală (190 mp): 3.500 EUR / lună, include 5 locuri de parcare Varianta compartimentată (85 mp): 1.650 EUR / lună, include 5 locuri de parcare D. Avantaje: Spațiu nou, modern Vizibilitate și acces facil din drumul principal Flexibilitate în compartimentare Ideal pentru activități comerciale variate Posibilitate semnalistică vizibilă Locuri de parcare disponibile 📍 Locație excelentă: Corbeanca – Petrești, zonă în dezvoltare, potrivită pentru afaceri cu trafic de clienți, aproape de zona rezidențială și artere principale. 📞 Pentru mai multe informații și programări pentru vizionare, nu ezitați să ne contactați.
Citește mai mult Citește mai puțin
5 Parcări

Detalii spațiu comercial

ID anunț: XET31403J Copiat! 270833909 Copiat!
Actualizat în: 11 Februarie 2026
Suprafață utilă: 190 mp
Regim înălțime: P
Stadiu construcție: Există

Utilități

Destinație
Birouri Comercial Rezidențial
Utilități
Curent Apă Canalizare Gaze

Disponibilitate proprietate:

Imediat

Puncte de interes

Mijloace transport
bus-station
Statie Maxi Taxi
Stații autobuz aprox. 1428 m
bus-station
Statie Maxi Taxi
Stații autobuz aprox. 1535 m
Școală
school
Scoala nr. 1 - Balotesti
Școli aprox. 1590 m
kindergarten
Gradinisa cu program prelungit nr.1 - Balotesti
Gradinițe aprox. 1621 m
school
Scoala Nr. 1 Corbeanca
Școli aprox. 1970 m
Recreere
supermarket
Mega Image
Supermarket aprox. 671 m
restaurant
McDonald's
Restaurant aprox. 728 m
park
Padurea Petresti
Parcuri aprox. 968 m
sports-ground
Teren sportiv
Terenuri sport aprox. 1720 m

Proprietăți recomandate

Detalii de contact

North Bucharest Rent

Melisa Yedek Agent

North Bucharest Rent

Abonează-te la newsletter să fii primul care primește cele mai noi recomandări de proprietăți și sfaturi de la experți.

CONTACT

Creează alertă

Salvează căutarea ca să primești pe email ultimele anunțuri publicate

Spații comerciale de închiriat în Corbeanca, Județul Ilfov