Spatii comerciale birouri de inchiriat in Happy Residence 3 – Craiova
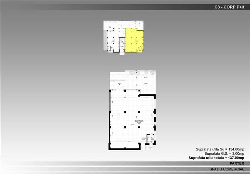
Va oferim spre inchiriere doua spatii comerciale moderne, situate intr-un complex nou – Happy Residence 3, in zona centrala a Craiovei. Suprafata totala este de 245 mp, impartita in doua unitati open-space de 108 mp si 137 mp, care pot fi inchiriate separat sau impreuna (spatiile sunt alaturate si pot fi unite).
Fiecare spatiu dispune de doua cai de acces – una stradala, cu vitrina generoasa, si una dinspre parcarea din spate.
Datorita amplasarii excelente si configuratiei flexibile, spatiile sunt ideale pentru diverse activitati comerciale, sau chiar pentru birouri.
Caracteristici principale:
Suprafata totala: 245 mp (108 mp + 137 mp)
Dispunere: open-space
Acces: stradal, pietonal si auto
Utilitati complete: apa, gaz, curent, canalizare
Cladire noua, structura din beton
Stadiu: la gri, astfel incat fiecare sa isdi poata face amenajarile conform activitatii desfasurate.
Contactati-ne pentru mai multe detalii sau pentru o vizionare!
Sediul central - Timișoara
Bulevardul Victor Babeș nr. 2, 300230, Timișoara, România
Tel: +40.374.40.44.98 / Fax: +40.256.401.179
Email: suport@imobiliare.ro
Luni - Vineri 08:00 - 20:00
Punct de lucru - București: Iride Business Park, Bld. Dimitrie
Pompeiu 9-9A, Clădirea B2B,
020335, Sector 2, București, România
CONTACT
Sediul central - Timișoara
Bulevardul Victor Babeș nr. 2, 300230, Timișoara, România
Tel: +40.374.40.44.98 / Fax: +40.256.401.179
Email: suport@imobiliare.ro
Luni - Vineri 08:00 - 20:00
Punct de lucru - București: Iride Business Park, Bld. Dimitrie
Pompeiu 9-9A, Clădirea B2B,
020335, Sector 2, București, România
Sună acum și cere detalii sau programează o vizionare.
Cere detalii prin email
*
*
*
*
Stații autobuz
Stații tramvai
Universități
Școli
Gradinițe
Supermarket
Parcări
Terenuri sport
Parcuri
Spital
Farmacie
Cafenea
Restaurant
Bar
Pub
Bancă
Scoala Obedeanu
aprox.
575 m
Craiovita Veche
aprox.
581 m
Craiovita Veche
aprox.
581 m
Scoala Obedeanu
aprox.
585 m
Aprozar
aprox.
614 m
Compania de Apa
aprox.
633 m
Compania de Apa
aprox.
644 m
Facultatea de Agronomie
aprox.
715 m
Facultatea de Agronomie
aprox.
722 m
Facultatea de Agronomie
aprox.
737 m
Facultatea de Agronomie
aprox.
742 m
Compania de Apa
aprox.
765 m
Compania de Apa
aprox.
767 m
Drumul Fabricii
aprox.
820 m
Madona Dudu
aprox.
905 m
Casa Tineretului
aprox.
1198 m
Casa Tineretului
aprox.
1198 m
Scoala Decebal
aprox.
1206 m
Scoala Decebal
aprox.
1209 m
Scoala Decebal
aprox.
1209 m
Scoala Decebal
aprox.
1210 m
Casa Tineretului
aprox.
1231 m
Casa Tineretului
aprox.
1231 m
Spitalul nr. 2
aprox.
1262 m
Spitalul nr. 2
aprox.
1262 m
Spitalul nr. 2
aprox.
1262 m
Spitalul nr. 2
aprox.
1268 m
SIF Oltenia
aprox.
1530 m
SIF Oltenia
aprox.
1539 m
SIF Oltenia
aprox.
1602 m
Campus Agronomie
aprox.
600 m
Facultatea de Agronomie
aprox.
662 m
UMF Craiova - Medicina Veche
aprox.
1721 m
Universitatea de Medicina si Farmacie
aprox.
1741 m
Universitatea din Craiova
aprox.
1750 m
UMF Craiova - Medicina Noua
aprox.
1764 m
Facultatea de Medicina
aprox.
1815 m
Campus Medicina
aprox.
1815 m
Liceul Charles Laugier
aprox.
602 m
Scoala Gimnaziala 1 Obedeanu
aprox.
649 m
Liceul Tehnologic Special Beethoven
aprox.
865 m
Colegiul National Economic Gh. Chitu
aprox.
949 m
Colegiul National Carol I
aprox.
995 m
Colegiul Tehnic de Industrie Alimentara
aprox.
1051 m
Gradinita Micul Print
aprox.
1101 m
Facultatea de Educatie Fizica si Sport
aprox.
1134 m
Colegiul National Elena Cuza
aprox.
1150 m
Scoala Gimnaziala Decebal
aprox.
1263 m
Colegiul National Fratii Buzesti
aprox.
1302 m
Scoala Speciala Sfantul Mina
aprox.
1325 m
Liceul Teologic Adventist
aprox.
1377 m
Scoala Gimnaziala Traian
aprox.
1423 m
Colegiul Tehnic Costin D. Nenitescu
aprox.
1486 m
Gradinita Tedy Bear
aprox.
1008 m
Gradinita Paradisul Copiilor
aprox.
1009 m
Gradinita Micul Print
aprox.
1111 m
Gradinita Otilia Cazimir
aprox.
1426 m
Gradinita Phoenix
aprox.
1898 m
Supeco
aprox.
1132 m
Mercur Center
aprox.
1185 m
Auchan
aprox.
1259 m
Cocosul Vesel
aprox.
1534 m
Careefour
aprox.
1599 m
Lidl
aprox.
1732 m
Parcare
aprox.
654 m
Parcare
aprox.
678 m
Parcare
aprox.
751 m
Parcare
aprox.
1078 m
Parcare
aprox.
1113 m
Parcare
aprox.
1195 m
Parcare
aprox.
1245 m
Parcare
aprox.
1248 m
Parcare
aprox.
1290 m
Parcare
aprox.
1319 m
Parcare
aprox.
1320 m
Parcare
aprox.
1328 m
Parcare
aprox.
1339 m
Parcare pentru clienti
aprox.
1353 m
Parcare
aprox.
1357 m
Teren sportiv
aprox.
308 m
Teren sportiv
aprox.
332 m
Teren sportiv
aprox.
342 m
Stadionul Ion Oblemenco
aprox.
499 m
Teren sportiv
aprox.
503 m
Teren sportiv
aprox.
967 m
Teren sportiv
aprox.
980 m
Teren sportiv
aprox.
980 m
Teren sportiv
aprox.
990 m
Teren sportiv
aprox.
1010 m
Teren sportiv
aprox.
1055 m
Teren sportiv
aprox.
1235 m
Teren sportiv
aprox.
1251 m
Teren sportiv
aprox.
1277 m
Teren sportiv
aprox.
1279 m
Parc
aprox.
479 m
Parc
aprox.
608 m
Parc
aprox.
695 m
Parc
aprox.
725 m
Gradina Mihai Bravu
aprox.
793 m
Parc
aprox.
802 m
Parc
aprox.
864 m
Parc
aprox.
929 m
Parcul Sfantul Dumitru
aprox.
1061 m
Elena Cuza
aprox.
1138 m
Parcul Prefecturii
aprox.
1155 m
Parc
aprox.
1166 m
Parc
aprox.
1216 m
Parc
aprox.
1322 m
English Park
aprox.
1397 m
Terrapsi
aprox.
881 m
ENDOlife
aprox.
1000 m
Priority Medical
aprox.
1092 m
Spitalul clinic nr.2 Filantropia
aprox.
1178 m
SPAD
aprox.
1197 m
Spitalul CFR
aprox.
1224 m
Clinica Dr. Camelia Patru
aprox.
1245 m
Centrul Medical Camen
aprox.
1251 m
Policlinica Spitalului Filantropia
aprox.
1272 m
Clinica Sante
aprox.
1274 m
Spitalul Clinic Municipal Filantropia
aprox.
1316 m
Policlinica Medsan
aprox.
1397 m
Centrul medical MaDonna Maria
aprox.
1408 m
Synevo
aprox.
1484 m
Policlinica Bunavestire
aprox.
1575 m
Farmacia Hygea
aprox.
957 m
Pharma Plus
aprox.
984 m
Farmacia Hygea
aprox.
1179 m
Cynara
aprox.
1243 m
Farmacia Trei F Titulescu
aprox.
1245 m
Catena
aprox.
1246 m
Sensiblu
aprox.
1258 m
LifePlus
aprox.
1280 m
Sensiblu
aprox.
1315 m
Farmacia Dona
aprox.
1323 m
Farmaplant
aprox.
1330 m
Angifarm
aprox.
1334 m
Montero
aprox.
1336 m
Farmacia Dalina
aprox.
1489 m
Farmacia Trei F Spital
aprox.
1490 m
Alexa
aprox.
619 m
Raul Cafe
aprox.
682 m
Sweet Escape
aprox.
1206 m
blitz cafe
aprox.
1231 m
Cafinno
aprox.
1258 m
Scena
aprox.
1501 m
Kabina
aprox.
1511 m
Rendez Vous Cafe
aprox.
1590 m
Publika
aprox.
1606 m
Murphy's pub
aprox.
1619 m
Love Story
aprox.
1776 m
Le Gourmand Bistro
aprox.
1779 m
Sofia Bistro
aprox.
1816 m
Chicago
aprox.
1835 m
Bistro Carol Nr. 8
aprox.
1893 m
Covrigarie
aprox.
646 m
Fornetti
aprox.
647 m
Pizzeria Traian
aprox.
743 m
Eugenia
aprox.
856 m
Casa Shaorma
aprox.
869 m
Prichindelul Vesel
aprox.
869 m
La Delizia
aprox.
952 m
Casa Chincea
aprox.
1008 m
Flora
aprox.
1023 m
Prestige
aprox.
1077 m
Amadeus
aprox.
1213 m
HappyCup
aprox.
1256 m
Daniel's
aprox.
1277 m
Shaorma La Rond
aprox.
1284 m
Grill House
aprox.
1304 m
Scena 8
aprox.
687 m
Bande a part
aprox.
1563 m
Lounge
aprox.
1589 m
Rendez Vous Club
aprox.
1589 m
Da Vinci
aprox.
1621 m
Las Vegas
aprox.
1850 m
Malibu
aprox.
1892 m
Libra Internet Bank
aprox.
1941 m
Elizabeth Coffee Bar
aprox.
1992 m
Club Q
aprox.
2000 m
Cover
aprox.
819 m
Zen Rasta Pub
aprox.
892 m
All Stars Cafe
aprox.
1258 m
One Pub
aprox.
1309 m
Antik
aprox.
1492 m
Pub's Pub
aprox.
1566 m
Legends Pub
aprox.
1609 m
Ambient
aprox.
1639 m
La Pasaj
aprox.
1816 m
Irish Pub
aprox.
1972 m
ING Bank
aprox.
768 m
BRD
aprox.
952 m
CEC BANK
aprox.
972 m
Casa Gabroveanu
aprox.
1064 m
Alpha Bank
aprox.
1139 m
Raiffeisen Bank
aprox.
1146 m
ING Craiova - Mihai Viteazu
aprox.
1150 m
BRD
aprox.
1186 m
CEC BANK
aprox.
1200 m
BRD
aprox.
1240 m
Banca Nationala a Romaniei - Filiala Dolj
aprox.
1244 m
Volksbank
aprox.
1252 m
Banca Transilvania
aprox.
1258 m
Unicredit Tiriac Bank
aprox.
1259 m
BCR
aprox.
1336 m
Una dintre principale artere de circulație din zona centrală "“ care face legătura cu cartierul omonim învecinat "“ este Calea București, care străbate această subdiviziune a orașului în jumătatea sa nordică, de la nord la est. Această arteră se intersectează, perpendicular, cu Pasajul Universității, care merge spre sud și din care se ramifică o serie de străzi secundare. Urmare firească a amplasamentului său, zona Centru este, probabil, cel mai bine deservită la capitolul mijloace de transport în comun. Aceasta este tranzitată, spre exemplu, de liniile de autobuz 9, 11, 25, 29B și 4, ultimul făcând legătura între Piața Centrală și sudul orașului, înspre Bechet. De menționat sunt și tramvaiele 101 și 102, care asigură conexiunea între nord-vestul și sud-estul orașului.
Familiile cu copii au la dispoziție o paletă largă de opțiuni din punct de vedere educațional, de menționat la acest capitol fiind Grădinița "Școala Copiilor Craiova" (din Strada Ana Ipătescu, nr. 4), Școala Gimnazială "Mircea Eliade" (din Strada Cloșca, nr. 1), Colegiul Național "Frații Buzești" (de pe Bulevardul Știrbei Vodă, nr. 5), dar și Liceul cu Program Sportiv "Petrache Trișcu" (din Strada Tudor Vladimirescu, nr. 9). Un avantaj important oferit de zona centrală este reprezentat de faptul că aici se găsesc importante instituții de învățământ superior, precum Universitatea din Craiova, Universitatea de Medicină și Farmacie, dar și Facultatea de Agronomie și Universitatea "Spiru Haret". Mai jos poți vedea în detaliu ce unități de învățământ există în acest cartier:
Zona centrală a Craiovei oferă câteva oportunități interesante la capitolul retail. Probabil că cea mai importantă destinație de cumpărături pentru cei care locuiesc aici este mallul Mercur Center, amplasat pe Calea Unirii, nr. 14. În cadrul acestuia vei găsi atât un supermarket Profi, cât și o serie de magazine de haine, încălțăminte, cosmetice și parfumuri, bijuterii și accesorii, telefonie mobilă etc. Pe segmentul alimentar, de menționat este și Piața Centrală din Craiova, dar și un supermarket MyAuchan, amplasat pe Strada Alexandru Ioan Cuza, nr. 16C. Alături de toate acestea mai există, desigur, o serie de magazine și supermarketuri mai mici, de cartier, inclusiv afiliate unor rețele de retail. Cei care doresc să aibă la dispoziție mai multe oportunități atunci când merg la cumpărături au varianta de a vizita hipermarketul Kaufland, din cartierul 1 Mai.
Pentru cei care nu vor să se bazeze pe mijloacele de transport în comun și au o mașină proprie, a găsi un loc de parcare în apropierea casei poate reprezenta, uneori, o problemă. Pentru a închiria un asemenea spațiu, aceștia se pot adresa reprezentanților Primăriei, în zona centrală, pe Strada Alexandru Ioan Cuza, nr. 7.
Pentru craiovenii care locuiesc în zona centrală, una dintre cele mai importante zone de recreere în aer liber este reprezentată de Grădina Botanică "Alexandru Buia", amplasată la granița nordică a cartierului, cu zona George Enescu. Acesteia i se adaugă și parcuri de dimensiuni mai mici, precum "Fântâna Muzicală", "English Park" sau "Coridorul Jiului", ca și o serie de locuri de joacă pentru copii, special amenajate de autorități. O destinație de relaxare pe timp de weekend poate fi și "Parcul Romanescu", chiar dacă acesta nu se găsește, propriu-zis, în granițele acestui cartier. La capitolul oportunități de recreere, de menționat sunt și o serie de obiective de interes cultural, precum Muzeul de Artă al Craiovei sau Secția Istoriei și Arheologiei din Muzeul Olteniei.
Locuitorii zonei centrale a Craiovei au la dispoziție o serie de instituții medicale notabile, atât de stat, cât și private. Printre acestea se numără Spitalul Clinic Municipal Filantropia, Spitalul de Oftalmologie Onioptic, Policlinica Elga, Maternitatea Madonna Maria, centrele medicale HitMed, KinetoMed și Amaradia etc. Tuturor acestora li se adaugă, desigur, și o serie de cabinete medicale private, cu diverse specializări. Vezi pe hartă unde sunt localizate unitățile medicale din această zonă:
După cum este, probabil, de așteptat, zona centrală a Craiovei este destul de ofertantă din punctul de vedere al oportunităților oferite pentru a ieși cu prietenii în oraș. Aici pot fi găsite o serie de restaurante, printre care "Craiova" (Strada Frații Buzești, nr. 19), "Excelsior" (Strada Alexandru Macedonski, nr. 1), "Craft" (Strada Eugeniu Carada, nr. 12), "Artizan35" (Strada Împăratul Traian, nr. 35), "Big Ben" (Strada Mircea Vodă, nr. 1), "Casa Ghincea" (Strada Madona Dudu, nr. 31). Acestora li se adaugă, desigur, și câteva unități care comercializează mâncare de tip fast food, de menționat fiind KFC-ul din zona Universitate.
Zona centrală a orașului este foarte bine deservită și la capitolul bănci și bancomate. Pe Calea București (nr. 83) vei găsi, astfel, un sediu Raiffeisen Bank, iar pe Bulevardul Carol I (nr. 2) se află un sediu BCR. De asemenea, pe Strada Alexandru Iona Cuza (nr. 42), se află un sediu ING Bank, iar pe strada Mihai Viteazu (nr. 26A), un alt ING Bank. Consultă harta și află unde sunt localizate și alte bănci sau ATM-uri în cartierul craiovean 1 Mai:
Înainte să pleci...
Ești sigur că ai văzut și aceste proprietăți?
1.820 €
/ lună
Craiova, Central
140 mp utili
1.800 €
/ lună
Craiova, Ultracentral
180 mp utili
Spațiu stradal
1.815 €
/ lună
Craiova, Craiovița Nouă
92 mp utili
data_properties.building_type.shopping-center
1E
Creează alertă
Salvează căutarea ca să primești pe email ultimele anunțuri publicate
Spații comerciale cu o cameră de închiriat în zona Central, Craiova
Cere detalii prin email
*
*
*
*
Detaliile tale de contact vor fi partajate cu Is Acasa