1

Inchiriem spatiu comercial Doja, comision zero!!!

694 € / lună
8.07 € / mp / lună

Siderurgiștilor, Galați

Sup. utilă / mp. utili:
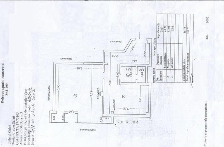
86,75 mp
Tip prop.:
Bloc de apartamente
An constr.:
1980 (Există)
  • • Locație aproximativă

Descriere spațiu comercial

Str. Gh. Doja, nr. 3, bl. 8a, sc. 2, parter, cartier Siderurgistilor Vest Su - 86.75 mp Sc - 100.23 mp Utilitati: energie electrica, apa, gaze Centrala termica.
Citește mai mult Citește mai puțin

Detalii spațiu comercial

ID anunț: XDT814014 Copiat! 274992684 Copiat!
Actualizat în: 21 Aprilie 2026
Tip tranzacție: De închiriat prin agent
Suprafață utilă: 86.75 mp
Stadiu construcție: Există
Vitrină: Da

Utilități

Utilități
Curent Apă Canalizare Gaze
Comision
standard

Vecinătăți:

Supermarket Profi, Scoala Gimnaziala nr. 10, Reno

Disponibilitate proprietate:

Imediat

Puncte de interes

Mijloace transport
tram-station
Spitalul de copii
Stații tramvai aprox. 170 m
bus-station
Strada Gheorghe Doja
Stații autobuz aprox. 195 m
tram-station
Strada Gheorghe Doja
Stații tramvai aprox. 242 m
bus-station
Casa Rosie
Stații autobuz aprox. 259 m
Școală
kindergarten
Gradinita Alba ca Zapada
Gradinițe aprox. 82 m
school
Liceul Auto Traian Vuia
Școli aprox. 426 m
kindergarten
Gradinita
Gradinițe aprox. 462 m
school
Scoala Generala nr. 11 Mihail Sadoveanu
Școli aprox. 732 m
Recreere
pub
Isharo's
Pub aprox. 131 m
supermarket
Best Aliment
Supermarket aprox. 155 m
park
Parcul Spitalul de copii
Parcuri aprox. 168 m
sports-ground
Five Star Bowling
Terenuri sport aprox. 1367 m

Istoricul prețurilor

Acces la informații premium după autentificare
Login Gratuit

Proprietăți similare

Spațiu industrial, 150 mp în Dunărea
700 € / lună
Galați, Dunărea
Producție/Servicii
Spațiu comercial, de 123.46 mp, în Micro 39
741 € / lună
Galați, Micro 39
123,46 mp utili
Bloc de apartamente
1970
Spațiu comercial, 73 mp în
730 € / lună
Galați, I. C. Frimu
73 mp utili
Spațiu stradal
4E

Detalii de contact

Spatii.Ro

Roxana Nastase Director comercial

Spatii.Ro

Abonează-te la newsletter să fii primul care primește cele mai noi recomandări de proprietăți și sfaturi de la experți.

CONTACT

Creează alertă

Salvează căutarea ca să primești pe email ultimele anunțuri publicate

Spații comerciale de închiriat în zona Siderurgiștilor, Galați