Showroom 457mp langa Carrefour, Kaufland, magazine tehnice

3.428 € / lună
7.50 € / mp / lună

Baza 3, Iași

Sup. utilă / mp. utili:
457 mp
Niv.:
1
An constr.:
1980 (Există)
  • • Locație aproximativă
  • • Vizionare prin apel video

Descriere spațiu comercial

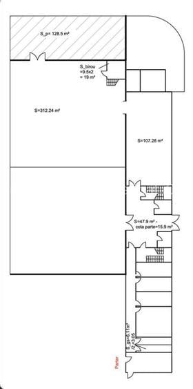
Showroom 457mp langa Carrefour, Kaufland, magazine tehnice Spatiu comercial de inchiriat pentru magazin scule, instalatii, mobila, arhitectura, auto; Spatiu cu dotari finisaje si dupa cerinte, situat pe coltul dintre str. Bucium si o viitoare strada; Hala spatiu 457,47mp, str. Bucium 34, proprietatea Arhiconstruct; 457,47mp = 312,24mp depozit + 19mp birou + 107,28mp birou showroom + 15,9mp cota parte hol + 3,05mp cota parte GS; Hala: 5,2mH grinda; 2,5ml*2,2mh usa; birouri: 2,4mh grinda; 2,9mh placa; Tavan: vata minerala 50mm; Acces TIR; Retea apa, canalizare, gaz, 380V, internet - retelele cu fibra RDS, Orange, Vodafone; centrala termica pe gaz; 2 cai de acces; pereti din zidarie si sandwich; Eventual in depozite se face elicopterizare si se schimba tamplaria; Orientativ: 7,5-9 Eur+TVA, oferta personalizata la cerere; Lucian Creanga - consultant imobiliar cu 400+ oferte spatii si 100.000mp+ tranzactionati - iti sunt aproape! 400+, tocmai ca sa cunosti mai bine piata, sa-ti clarifici criteriile de selectie si sa-ti optimizezi termenii tranzactiei! Comision zero pentru aceasta oferta, daca nu am mai analizat alte oferte impreuna. Esti agent imobiliar? Colaboram.
Citește mai mult Citește mai puțin
Aer condiționat Căldură

Detalii spațiu comercial

ID anunț: XB8Q040PJ Copiat! 275468701 Copiat!
Actualizat în: 23 Aprilie 2026
Înălțime spațiu (m): 5.2
Regim înălțime: P+1E
Stadiu construcție: Există

Utilități

Utilități
Apă Curent Gaze Canalizare

Vecinătăți:

Centru logistic, Spatii industriale, Intersectie circulata, Fastfood, Supermarket, Zona comerciala, Autobuz

Puncte de interes

Mijloace transport
bus-station
Moldomobila
Stații autobuz aprox. 71 m
bus-station
Statia "Moldomobila", linia 27,29
Stații autobuz aprox. 108 m
tram-station
Baza 3
Stații tramvai aprox. 421 m
train-station
Gara Iasi-Socola
Stații tren aprox. 591 m
Școală
school
Colegiul Tehnic de Electronica si Telecomunicatii Iasi
Școli aprox. 296 m
school
Grupul Scolar Anghel Saligny ( Constructii )
Școli aprox. 306 m
kindergarten
Gradinita cu program prelungit Nr. 26
Gradinițe aprox. 886 m
university
Catedra de Ed Fiz si Sport - Univ Tehn Gh Asachi
Universități aprox. 1237 m
Recreere
park
Parc
Parcuri aprox. 145 m
supermarket
Media Galaxy (Carrefour (Felicia))
Supermarket aprox. 466 m
sports-ground
Teren sportiv
Terenuri sport aprox. 472 m
mall
Iulius Mall
Mall aprox. 1237 m

Proprietăți similare

Spațiu industrial, de 457 mp, în Baza 3
3.428 € / lună
Iași, Baza 3
457 mp utili
Logistică
1E
Spațiu comercial, de 598 mp, în Exterior Vest
3.588 € / lună
Iași, Exterior Vest
598 mp utili
1E
2025
Spațiu comercial, de 330 mp, în Nicolina
3.300 € / lună
Iași, Nicolina
330 mp utili
Centru comercial
2009

Detalii de contact

Abonează-te la newsletter să fii primul care primește cele mai noi recomandări de proprietăți și sfaturi de la experți.

CONTACT

Creează alertă

Salvează căutarea ca să primești pe email ultimele anunțuri publicate

Spații comerciale cu 3 camere de închiriat în zona Baza 3, Iași