2

Centru Civic / Inchiriere spatiu comercial/showroom/birouri, parter, 184 mp

2.852 € / lună
15.50 € / mp / lună

Central, Iași

Sup. utilă / mp. utili:
184 mp
Tip prop.:
Spațiu stradal
  • • Comision 0%
  • • Locație Verificată
  • • Locație exactă

Descriere spațiu comercial

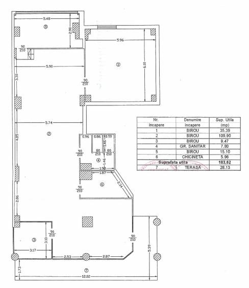
Spatiu comercial / showroom / birouri / clinica (zona Palas) situat la parter langa Dorna Medical, pe Bd. Anastasie Panu la intersectia cu Sfantul Lazar in suprafata de 184 mp uili. Spatiu beneficiaza de vitrina de ~ 10 ml. Spatiul este compus din 6 incaperi dintre care 3 se pot transforma in open space (110 mp + 35 mp + 10 mp) plus birou (15mp), chicineta (5mp) si grup sanitar (8mp). Preț 15.5 euro/mp negociabil (nepurtator de TVA) Adresa: Str. Anastasie Panu nr.21 (intersectie cu SF. Lazar), bl. 7 Noiembrie, Parter, Iasi, jud. Iasi Tip imobil: Amplasat la parterul unui bloc de apartamente cu regim 1S+P+9E construit in 1984 Dotari: Tamplarie aluminiu, centrala termica, aer conditionat, tavan casetat. Spatiu este situat in una dintre cele mai importante intersesctii din Iasi si pozitionarea pe colt ii confera o vizibilitate foarte buna.
Citește mai mult Citește mai puțin

Detalii spațiu comercial

ID anunț: XVB904AQJ Copiat! 264065823 Copiat!
Actualizat în: 12 Februarie 2026
Suprafață utilă: 184 mp

Utilități

Comision
0%

Subspații disponibile

Chirie / u.m. / lună:
15.5 EUR/mp (total: 2852 EUR/lună), Comision 0% cumpărător
Suprafață disponibilă:
184
Disponibilitate spațiu:
imediat

Puncte de interes

Mijloace transport
bus-station
Statia "Moldova Mall", linia 41, 28, 41B
Stații autobuz aprox. 177 m
tram-station
Tudor Vladimirescu
Stații tramvai aprox. 184 m
bus-station
Moldova Mall
Stații autobuz aprox. 248 m
train-station
Gara Internațională Nicolina
Stații tren aprox. 1583 m
Școală
school
Sc Gen 8 Carmen Sylva
Școli aprox. 216 m
school
Scoala Carmen Sylva
Școli aprox. 222 m
kindergarten
Gradinita Buna Vestire
Gradinițe aprox. 285 m
university
Universitatea Petre Andrei
Universități aprox. 359 m
Recreere
supermarket
Hala Centrala
Supermarket aprox. 129 m
park
Parcul Anastasie Panu
Parcuri aprox. 254 m
sports-ground
Teren sportiv
Terenuri sport aprox. 281 m
mall
Shopping Center on Shopping Street(Palas) (en)
Mall aprox. 580 m

Proprietăți recomandate

Detalii de contact

Abonează-te la newsletter să fii primul care primește cele mai noi recomandări de proprietăți și sfaturi de la experți.

CONTACT

Creează alertă

Salvează căutarea ca să primești pe email ultimele anunțuri publicate

Spații comerciale de închiriat în zona Central, Iași