Depozit, productie, showroom, de la 64mp la 193mp, zona Romstal

704 € / lună
11 € / mp / lună

Nicolina, Iași

Sup. utilă / mp. utili:
64 mp
Tip prop.:
Showroom
Niv.:
1
An constr.:
1980 (Există)
  • • Locație exactă

Descriere spațiu comercial

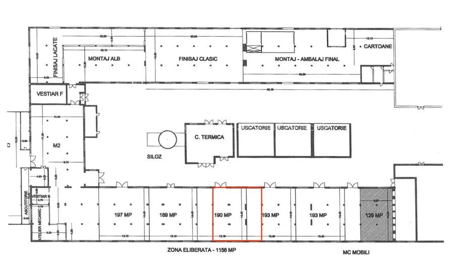
Depozit, productie, showroom, 64-193mp, zona Romstal Spatiu potrivit pentru productie, mic depozit, eventual showroom prin: pozitionarea excelenta in raport cu accesibilitatea in toate zonele orasului, finisaje, usa industriala, utilitati, durata contractuala, pret, climatul complexului Fab; 64-193mp, str. Bradului 5, proprietatea Complex Fab; 193mp=13,42m deschidere * 14,4m adancime; 4,1mH grinda; 3ml*2,8mh usa; Parcare, acces TIR; Retea apa, canalizare, gaz, 380V; centrala termica pe gaz si calorifere; Grup sanitar cu 2 cabine; Orientativ: 9-13 Eur+TVA/mp, oferta personalizata la cerere; A functionat un market cu livrari la domiciliu al unei companii internationale. In geneneral Complex Fab se remarca cu spatii de inchiriat pentru depozitare, productie, showroomuri si birouri, iar unele dintre ele deja inchiriate deservesc activitati ca: - depozitari alimentare si nealimentare (uleiuri, incaltamite, instalatii electrice si de securitate, miere de albine s.a.), - productie / servicii (tipografii, catering, laborator cofetarie, mobilier din lemn masiv, confectii textile, service/ detailling auto, productie publicitara, spalatorie auto/ textile), - showroom (instalatii), - spatii pentru activitati cu copii, activitati de birouri, Complexul Fab se afla aproape de Pasaj Nicolina, bd. Nicolae Iorga (cu trafic greu), Lidl, Penny, Husqvarna, Zoo Center s.a. Un complex cu spatii de inchiriat din Mun. Iasi pentru depozitari / logistica, activitati cu productie, comert, birouri cu oferte personalizate pentru chiriasi in functie de suprafata inchiriata, perioada contractuala, tipul de activitate s.a. Proprietarul urmareste sa ofere chiriasilor conditii optime prin adaptari directe de pret, compartimentari, bransamente utilitati si in special 380V cu putere mare instalata, finisaje, pardoseli tehnice si un mediu exterior cat mai placut. Lucian Creanga - consultant imobiliar cu 400+ oferte spatii si 100.000mp+ tranzactionati - iti sunt aproape! 400+, tocmai ca sa cunosti mai bine piata, sa-ti clarifici criteriile de selectie si sa-ti optimizezi termenii tranzactiei! Comision zero pentru aceasta oferta, daca nu am mai analizat alte oferte impreuna. Esti agent imobiliar? Colaboram.
Citește mai mult Citește mai puțin
1 Parcare Căldură Modernizat

Detalii spațiu comercial

ID anunț: XB8Q040MN Copiat! 275342444 Copiat!
Actualizat în: 24 Martie 2026
Regim înălțime: P+1E
Stadiu construcție: Există
Suprafață teren: 300 mp

Utilități

Utilități
Gaze Curent Canalizare Apă

Vecinătăți:

Gara Internationala

Subspații disponibile

Depozit, productie, showroom, de la 64mp la 193mp, zona Romstal

Chirie / u.m. / lună:
11 EUR/mp (total: 704 EUR/lună)
Înălțime spațiu (m):
4.1
Suprafață disponibilă:
64
Disponibilitate spațiu:
imediat
Etaj:
Parter / 1
Posibilitate parcare:
Da

Puncte de interes

Mijloace transport
bus-station
Gara Nicolina
Stații autobuz aprox. 136 m
bus-station
Pod Nicolina
Stații autobuz aprox. 191 m
tram-station
statia "Bazar", linia 11
Stații tramvai aprox. 249 m
train-station
Gara Nicolina Iasi
Stații tren aprox. 412 m
Școală
school
Scoala "Vasile Conta" (Nr. 36)
Școli aprox. 113 m
kindergarten
Gradinita cu Program Normal Nr. 12
Gradinițe aprox. 135 m
school
Liceul Teoretic Dimitrie Cantemir
Școli aprox. 522 m
university
Facultatea de Constructii Iasi
Universități aprox. 1026 m
Recreere
park
Parc
Parcuri aprox. 99 m
supermarket
Carrefour Market
Supermarket aprox. 292 m
sports-ground
Teren de sport
Terenuri sport aprox. 492 m
mall
Shopping Center on Shopping Street(Palas) (en)
Mall aprox. 1263 m

Proprietăți similare

Spațiu industrial, 64 mp în Nicolina
704 € / lună
Iași, Nicolina
Producție/Servicii
1E
1980
Spațiu comercial, 70 mp în Nicolina
700 € / lună
Iași, Nicolina
70 mp utili
Bloc de apartamente
10E
Spațiu industrial, 110 mp în Baza 3
687 € / lună
Iași, Baza 3
Producție/Servicii
2E
1980

Detalii de contact

Abonează-te la newsletter să fii primul care primește cele mai noi recomandări de proprietăți și sfaturi de la experți.

CONTACT

Creează alertă

Salvează căutarea ca să primești pe email ultimele anunțuri publicate

Spații comerciale de închiriat în zona Nicolina, Iași