2

Spatiu comercial premium cu garaj de inchiriat pe str. Nufarului

2.420 € / lună
0 € / mp / lună

Nufărul, Oradea

Sup. utilă / mp. utili:
182 mp
Tip prop.:
Centru comercial
Niv.:
2
  • • Locație aproximativă

Descriere spațiu comercial

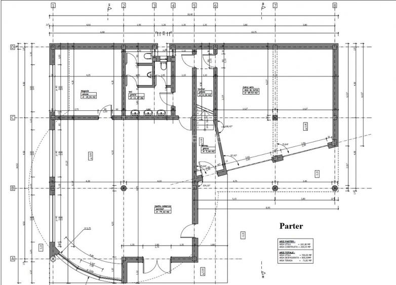
Prestige Imobiliare va propune spre inchiriere: Cladire comerciala – Str. Nufarului / Str. Vavilov – Oradea Caracteristici Generale: • Tip proprietate: cladire comerciala • Suprafata utila totala: 182 mp • Amplasare: parter • Zona: intersectie intens circulata, vad comercial foarte bun • Parcare: 2 locuri in fata cladirii + 2 locuri in garaj • Incalzire si racire in pardoseala Compartimentare: • Showroom 79,62 mp • Birou 18,06 mp • Toaleta 11,37 mp • Garaj dublu 50 mp • Antreu (5,66 mp) si Vestiar (4,24 mp) • Holuri si casa scarii (13,05 mp) Proprietatea este amplasata intr-o zona cu trafic intens, la intersectia Strazii Nufarului cu Strada Vavilov, una dintre cele mai vizibile si circulate artere din Oradea. Vizibilitatea excelenta, accesul facil si parcarile incluse fac acest spatiu ideal pentru showroom, birouri, clinica medicala, firma de servicii, reprezentanta sau alte activitati comerciale. Pozitionarea in apropierea Lotus Center si a Parcului Salca reprezinta un avantaj suplimentar pentru activitati orientate catre public. Aditional se poate inchiria demisolul cladirii care are acces de la parter, dar si acces exterior separat. Acesta are suprafata utila de 183 mp, iar pretul chiriei este 1.000 Euro. Pret propus pentru inchiriere: • Chirie: 2.000 € + TVA / luna • Garantie: 2.000 € • Comision agentie: 50% din prima luna de chirie Contactati-ne pentru mai multe detalii si pentru a programa o vizionare! DISCLAIMER Prestige Imobiliare preia informatiile furnizate direct de proprietar, iar acestea au caracter orientativ. Ne straduim sa mentinem acuratetea datelor, insa nu ne asumam raspunderea in cazul in care proprietarul ofera detalii eronate, incomplete sau le modifica ulterior fara a ne notifica. Nr grupuri sanitare: 1 Suprafata construita: 204.55 mp Nr garaje: 1 Nr incaperi: 4 Utilitati - Sistem incalzire (Incalzire pardoseala); Climatizare (Aer conditionat); Utilitati generale (Curent,Curent trifazic,Apa,Canalizare) Finisaje - Izolatii termice (Exterior); Podele (Gresie,Parchet); Stare interior (Buna); Iluminat (Spoturi,Aplice,Exterior cladire,Lumina naturala); Ferestre cu geam termopan (PVC) Dotari - Contorizare (Apometre) pret inchiriere: 2000 moneda inchiriere: EUR Disponibilitate proprietate: imediat
Citește mai mult Citește mai puțin
2 Parcări 1 Garaj

Detalii spațiu comercial

ID anunț: XC6H1407U Copiat! 274874711 Copiat!
Actualizat în: 13 Mai 2026
Tip tranzacție: De închiriat prin agent
Suprafață utilă: 182 mp
Regim înălțime: D+P+2E
Structură rezistență: Cărămidă

Utilități

Contorizare
Apometre
Mobilat
Nemobilat
Utilități
Curent Apă Canalizare Curent trifazic
Sistem încălzire
Încălzire pardoseală
Climatizare
Aer condiționat
Podele
Parchet Gresie
Stare interior
Stare bună
Izolații termice
Exterior
Ferestre cu geam termopan
PVC
Comision
50%

Subspații disponibile

Chirie / u.m. / lună:
10.99 EUR/mp (total: 2000 EUR/lună) + TVA, Comision 50% cumpărător
Suprafață disponibilă:
182
Disponibilitate spațiu:
închiriat
Vitrină:
Da

Puncte de interes

Mijloace transport
tram-station
Lotus
Stații tramvai aprox. 901 m
tram-station
Ciheiului
Stații tramvai aprox. 1016 m
bus-station
Dimitrie Cantemir
Stații autobuz aprox. 1253 m
tram-station
Nufarului
Stații tramvai aprox. 1375 m
Școală
school
Liceul Teoretic Onisifor Ghibu
Școli aprox. 1317 m
university
Universitatea Emanuel
Universități aprox. 1461 m
university
Universitatea Emanuel
Universități aprox. 1505 m
Recreere
supermarket
Unicarm
Supermarket aprox. 897 m
restaurant
McDonald's
Restaurant aprox. 1042 m
park
Parc
Parcuri aprox. 1231 m
sports-ground
Teren sportiv
Terenuri sport aprox. 1572 m

Proprietăți similare

Spațiu industrial, 500 mp în Central
2.117 € / lună
Oradea, Central
500 mp utili
Logistică
Spațiu comercial, de 280.00 mp, în Calea Aradului
2.000 € / lună
Oradea, Calea Aradului
280 mp utili
Spațiu stradal
Spațiu industrial, de 414 mp, în Central
1.815 € / lună
Oradea, Central
414 mp utili
Logistică

Detalii de contact

PRESTIGE Imobiliare

Anca Hurgoi Agent Imobiliar

PRESTIGE Imobiliare
PRO

Abonează-te la newsletter să fii primul care primește cele mai noi recomandări de proprietăți și sfaturi de la experți.

CONTACT

Creează alertă

Salvează căutarea ca să primești pe email ultimele anunțuri publicate

Spații comerciale de închiriat în zona Nufărul, Oradea