Casa S+P+1E, pretabila clinica, ultracentral, Ploiesti

1.801 € / lună
7.63 € / mp / lună

Ultracentral, Ploiești

Sup. utilă / mp. utili:
236 mp
Tip prop.:
Casă/Vilă
Niv.:
1
An constr.:
2014 (Există)
  • • Locație aproximativă
  • • Vizionare prin apel video

Descriere spațiu comercial

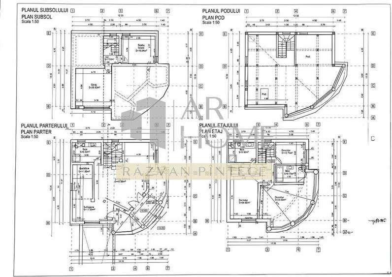
Inchiriere spatiu S+P+1E+pod, 7 camere, curte, amplasat in intersectie intens circulata, zona ultracentrala, Ploiesti. Spatiul este amplasat ideal, cu deschidere la 2 strazi, posibilitate de parcare in curte si in fata acestuia. Este pretabil pentru diferite activitati comerciale, precum clinica medicala, birouri, gradinita privata, afterschool, salon infrumusetare etc. Suprafata utila este de 235,52 mp + pod 133 mp. Un aspect important il constituie cele 3 intrari in cladire. Este compartimentat conform planurilor din pozele atasate. Utilitati: curent trifazic, apa, gaze, canalizare. Incalzirea se realizeaza cu ajutorul centralei termice pe gaze. Se inchiriaza la pretul de 1800 EURO, lunar, plus depozit.
Citește mai mult Citește mai puțin
Căldură

Detalii spațiu comercial

ID anunț: XF2F1404D Copiat! 275248103 Copiat!
Actualizat în: 11 Martie 2026
Regim înălțime: P+1E
Stadiu construcție: Există
Suprafață teren: 290 mp

Utilități

Utilități
Apă Curent Gaze

Vecinătăți:

Scoala/gradinita, Restaurant/pub, Central, Ultracentral, Intersectie circulata, Trafic Pietonal, Supermarket, Banca, Zona comerciala, Autobuz

Puncte de interes

Mijloace transport
bus-station
Tache Ionescu
Stații autobuz aprox. 316 m
bus-station
Statia Galerii
Stații autobuz aprox. 357 m
tram-station
Colinii
Stații tramvai aprox. 769 m
tram-station
Statie
Stații tramvai aprox. 834 m
Școală
school
Liceul Economic
Școli aprox. 405 m
school
Colegiul Mihai Viteazu
Școli aprox. 672 m
kindergarten
Gradinita Hello Kids
Gradinițe aprox. 1384 m
kindergarten
Gradinita
Gradinițe aprox. 1520 m
Recreere
bar
Cafeneaua Andra
Bar aprox. 126 m
park
Parc
Parcuri aprox. 294 m
supermarket
Carrefour Express
Supermarket aprox. 318 m
sports-ground
Teren sportiv
Terenuri sport aprox. 669 m

Proprietăți similare

Spațiu industrial, de 400 mp, în B-dul București
1.952 € / lună
Ploiești, B-dul București
400 mp utili
Logistică
1990
Spațiu industrial, de 400 mp, în B-dul București
1.952 € / lună
Ploiești, B-dul București
400 mp utili
Logistică
1990
Spațiu industrial, 260 mp în Vest
1.700 € / lună
Ploiești, Vest
260 mp utili
Logistică
1E

Detalii de contact

ARHOME

Razvan Pintece REALTOR, Managing Partner

5.00(3 review-uri)

ARHOME
PRO

Abonează-te la newsletter să fii primul care primește cele mai noi recomandări de proprietăți și sfaturi de la experți.

CONTACT

Creează alertă

Salvează căutarea ca să primești pe email ultimele anunțuri publicate

Spații comerciale cu 4+ camere de închiriat în zona Ultracentral, Ploiești