sp.com-160,4mp+terasa-5,5mp+3parcari/8min pe jos metrou D. Leonida

2.200 € / lună
13.25 € / mp / lună

Popești-Leordeni, Județul Ilfov

Sup. utilă / mp. utili:
166 mp
Tip prop.:
Bloc de apartamente
Niv.:
5
An constr.:
2021 (Există)
  • • Locație aproximativă

Descriere spațiu comercial

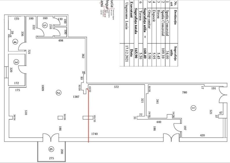
Proprietar, inchiriez prin agentie(tel: - pentru detalii si vizionari), spatiu comercial cu o suprafață de 160,4mp utili + terasa de 5,5mp + 3 locuri de parcare dispuse in fata spatiului(aceasta fiind si una din cele trei zone de acces - a se vedea releveul atasat). Dispune de centrala termică pe gaz, apa curenta, internet si cablu TV, grup sanitar. Spatiu se închiriază pe termen mediu(1-2 ani) si lung(peste 2 ani). Spatiul se preda liber, sau, se poate discuta pe marginea a ceea ce se doreste. Spatiul se poate folosi pentru activitati diverse, fiind situat la parterul unui bloc de locuinte dintr-o zona rezidentiala, foarte aproape de supermarketul Penny si Parcul Dr. Fermei de pe str. Dr. Fermei, cat si de statia autobuzului 480, oferind acces foarte usor atat cu masina personala, cat si pietonal sau cu mijloacele de transport in comun(8 minute pe jos pana la statia de metrou D.Leonida sau 10 minute pe jos pana la statia de metrou Berceni), zona beneficiind de infrastructura completa. Se vor discuta la fata locului, in functie de interesul manifestat, toate detaliile. Prețul poate fi negociabil in funcție de avans, daca se ofera plata in avans pe un an de zile sau in alti termeni si conditii agreate de parti. Avans standard: (1+1+0,5), din valoarea unei luni de chirie; 0,5 din valoarea chiriei lunare reprezinta comisionul datorat de chirias catre agentie, o singura data, in momentul semnarii contractului de inchiriere.
Citește mai mult Citește mai puțin
3 Parcări

Detalii spațiu comercial

ID anunț: XA1A0400F Copiat! 275406535 Copiat!
Actualizat în: 06 Aprilie 2026
Suprafață utilă: 166 mp
Regim înălțime: P+5E+T
Stadiu construcție: Există
Vitrină: Da

Utilități

Utilități
Curent Apă Canalizare Gaze
Comision
standard

Vecinătăți:

metrou D.Leonida(la 8min. de mers pe jos), metrou Berceni(la 10min. de mers pe jos), supermarket Penny(la 1min. de mers pe jos)

Disponibilitate proprietate:

Imediat

Puncte de interes

Mijloace transport
bus-station
Statia IMGB Poarta 1 linia 125
Stații autobuz aprox. 549 m
metro-station
Dimitrie Leonida (M2)
Stații metrou aprox. 625 m
bus-station
Statia IMGB Poarta 2, linia 125, metrou M2
Stații autobuz aprox. 699 m
tram-station
ROMPRIM
Stații tramvai aprox. 1810 m
Școală
school
Colegiul Tehnic Miron Nicolescu
Școli aprox. 994 m
school
Grupul Industrial "Dacia"
Școli aprox. 1498 m
school
Scoala Gimnaziala Speciala Sfantul Nicolae
Școli aprox. 1612 m
school
Scoala nr. 2
Școli aprox. 1810 m
Recreere
supermarket
Red Market
Supermarket aprox. 25 m
restaurant
Pizza Italia
Restaurant aprox. 175 m
park
Parc
Parcuri aprox. 265 m
sports-ground
Teren sportiv
Terenuri sport aprox. 1125 m

Proprietăți similare

Spațiu comercial, de 166 mp, în Nord-Vest
2.200 € / lună
Județul Ilfov, Popești-Leordeni
166 mp utili
Bloc de apartamente
5E
Spațiu industrial, în Sud-Est
2.050 € / lună
Județul Ilfov, Popești-Leordeni
Logistică
2010
Spațiu industrial, 10400 mp în Exterior Sud
2.300 - 57.500 € / lună
Județul Ilfov, Popești-Leordeni
10.000 mp utili
Depozitare
2E

Detalii de contact

MARVIS REZIDENTIAL SRL

Viorel Nica Broker Imobiliar

MARVIS REZIDENTIAL SRL

Abonează-te la newsletter să fii primul care primește cele mai noi recomandări de proprietăți și sfaturi de la experți.

CONTACT

Creează alertă

Salvează căutarea ca să primești pe email ultimele anunțuri publicate

Spații comerciale cu o cameră de închiriat în Popești-Leordeni, Județul Ilfov