Spatiu flexibil pretabil pt. after school, gradinita, clinica medicala

2.496 € / lună
1.56 € / mp / lună

Sebeș, Județul Alba

Sup. utilă / mp. utili:
1.600 mp
Tip prop.:
Showroom
Niv.:
1
An constr.:
1980 (Există)
  • • Exclusivitate
  • • Locație exactă

Descriere spațiu comercial

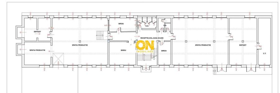
AON Imobiliare vă prezintă un spațiu cu un potențial deosebit, ideal pentru activități care necesită vizibilitate, acces facil și o suprafață mare, precum clinică medicală, grădiniță, after-school sau birouri de mari dimensiuni. Localizare Premium: Imobilul este situat ultracentral în Sebeș, în imediata apropiere a Pieței Agroalimentare, beneficiind de trafic pietonal și auto intens și acces rapid din orice zonă. Caracteristici Cheie: • Destinație Multiplă: Ideal pentru servicii medicale, educaționale, sedii de firme, reprezentanțe. • Flexibilitate: Suprafața totală utilă este de 1600 mp (clădire cu regim P+1), dar se oferă și posibilitatea de a închiria parțial această suprafață, adaptându-se strict la nevoile dumneavoastră. • Personalizare: Spațiul permite amenajare și compartimentare personalizată în funcție de specificul activității. • Parcare Privată: Un avantaj major este curtea privată cu o suprafață de 500 mp, oferind locuri de parcare suficiente pentru clienți și personal. Investiți în locația perfectă pentru dezvoltarea afacerii dumneavoastră! Spațiul oferă condițiile și dimensiunea necesară pentru a crea un mediu profesional, primitor și funcțional. Vă invităm la vizionare pentru a discuta detaliile de amenajare și închiriere! ID intern: CP2750724
Citește mai mult Citește mai puțin
20 Parcări

Detalii spațiu comercial

ID anunț: X581140J0 Copiat! 274956562 Copiat!
Actualizat în: 15 Februarie 2026
Tip tranzacție: De închiriat prin agent
Suprafață utilă: 1600 mp
Regim înălțime: P+1E
Stadiu construcție: Există
Suprafață teren: 1500 mp

Utilități

Destinație
Birouri Comercial Rezidențial
Utilități
Curent Apă Canalizare Gaze

Disponibilitate proprietate:

Imediat

Puncte de interes

Mijloace transport
bus-station
Autogara Sebes
Stații autobuz aprox. 1017 m
bus-station
Sebes Alba
Stații autobuz aprox. 1058 m
Școală
school
Scoala Generala nr. 2
Școli aprox. 225 m
school
Scoala Generala Nr. 1
Școli aprox. 401 m
school
Scoala Generala nr. 3
Școli aprox. 608 m
Recreere
park
Parcul Primariei
Parcuri aprox. 319 m
supermarket
Penny Market
Supermarket aprox. 341 m
restaurant
Restaurant La Dolce Vita
Restaurant aprox. 997 m
supermarket
Kaufland
Supermarket aprox. 1211 m

Proprietăți similare

Spațiu comercial, de 354.00 mp, în Cetate
2.541 € / lună
Alba Iulia, Cetate
354 mp utili
Bloc de apartamente
Spațiu comercial, de 140.00 mp, în Cetate
2.662 € / lună
Alba Iulia, Cetate
140 mp utili
Spațiu stradal
2005
Spațiu comercial, de 134.00 mp, în Cetate
2.662 € / lună
Alba Iulia, Cetate
134 mp utili

Detalii de contact

AON IMOBILIARE

Adrian Curta Broker Imobiliar

3.67(3 review-uri)

AON IMOBILIARE

Abonează-te la newsletter să fii primul care primește cele mai noi recomandări de proprietăți și sfaturi de la experți.

CONTACT

Creează alertă

Salvează căutarea ca să primești pe email ultimele anunțuri publicate

Spații comerciale cu 4+ camere de închiriat în Sebeș, Județul Alba