7

Direct proprietar • Spațiu comercial / birou • Aviației • Zonă corporate

1.380 - 4.525 € / lună
25 - 30 € / mp / lună

Aviației, București

Sup. utilă / mp. utili:
383 mp
Tip prop.:
Bloc de apartamente
Niv.:
12
  • • Locație exactă

Descriere spațiu comercial

Amplasat la parterul ansamblului Aviației Tower by Rădăcini, într-una dintre cele mai dinamice zone de business din București, spațiul de 430 mp oferă vizibilitate excelentă și acces facil din bulevardul principal. Chiria este de 25 €/mp, cu service charge inclus. Spațiul se predă la gri, astfel încât viitorul chiriaș își poate crea propriul concept, exact cum îl dorește. Contractul minim este de 5 ani, ceea ce oferă stabilitate și predictibilitate business-ului tău. Este o oportunitate excelentă pentru: • clinică medicală, • centru de servicii, • showroom, • birou de arhitectură, • sau orice activitate care lipsește în prezent din ecosistemul Aviației. Zona este dominată de clădiri de birouri și companii mari, ceea ce înseamnă trafic constant, public țintă clar și potențial comercial ridicat. Dacă ai un concept care merită vizibilitate într-un hub modern și activ, spațiul acesta poate deveni exact locul în care businessul tău crește natural. ____ EN Located on the ground floor of the Aviației Tower by Rădăcini complex, in one of Bucharest’s most dynamic business areas, this 430 sqm space offers excellent visibility and easy access from the main boulevard. The rent is 25 €/sqm, with service charge included. The space is delivered in shell condition, allowing the future tenant full freedom to create their own concept exactly as desired. The minimum lease term is 5 years, ensuring stability and predictability for your business. An excellent opportunity for: • medical clinic • service center • showroom • architecture office • or any activity currently missing from the Aviației ecosystem The area is dominated by office buildings and major companies, which means constant traffic, a clearly defined target audience, and strong commercial potential. If you have a concept that deserves visibility in a modern, active hub, this space can become the place where your business grows naturally.
Citește mai mult Citește mai puțin
Modernizat

Detalii spațiu comercial

ID anunț: XG8904001 Copiat! 274146122 Copiat!
Actualizat în: 01 Martie 2026
Tip tranzacție: De închiriat prin agent
Regim înălțime: 2S+P+12E
Stadiu construcție: Există
Suprafață teren: 425 mp

Utilități

Utilități
Curent Canalizare Apă Convector gaz

Certificat energetic:

Clasa energetică: A

Vecinătăți:

Kinetic Flagship, Global worth Plaza, Metrou Pipera, Metrou Aurel Vlaicu

Subspații disponibile

Direct proprietar • Spațiu comercial / birou • Aviației • Zonă corporate

Amplasat la parterul ansamblului Aviației Tower by Rădăcini, într-una dintre cele mai dinamice zone de business din București, spațiul de 430 mp oferă vizibilitate excelentă și acces facil din bulevardul principal. Chiria este de 25 €/mp, cu service charge inclus. Spațiul se predă la gri, astfel încât viitorul chiriaș își poate crea propriul concept, exact cum îl dorește. Contractul minim este de 5 ani, ceea ce oferă stabilitate și predictibilitate business-ului tău. Este o oportunitate excelentă pentru: clinică medicală, centru de servicii, showroom, birou de arhitectură sau orice activitate care lipsește în prezent din ecosistemul Aviației. Zona este dominată de clădiri de birouri și companii mari, ceea ce înseamnă trafic constant, public țintă clar și potențial comercial ridicat. Dacă ai un concept care merită vizibilitate într-un hub modern și activ, spațiul acesta poate deveni exact locul în care businessul tău crește natural.

Chirie / u.m. / lună:
25.00 EUR/mp (total: 4525 EUR/lună)
Înălțime spațiu (m):
3.5
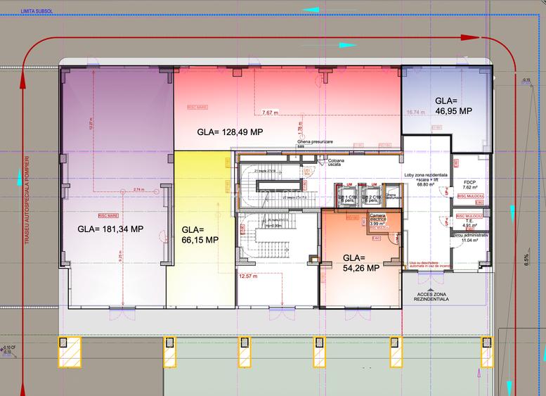
Suprafață disponibilă:
181
Disponibilitate spațiu:
imediat
Etaj:
Parter / 12
Vitrină:
Da
Posibilitate parcare:
Da

Direct proprietar • Spațiu comercial / birou • Aviației • Zonă corporate

Amplasat la parterul ansamblului Aviației Tower by Rădăcini, într-una dintre cele mai dinamice zone de business din București, spațiul de 430 mp oferă vizibilitate excelentă și acces facil din bulevardul principal. Chiria este de 25 €/mp, cu service charge inclus. Spațiul se predă la gri, astfel încât viitorul chiriaș își poate crea propriul concept, exact cum îl dorește. Contractul minim este de 5 ani, ceea ce oferă stabilitate și predictibilitate business-ului tău. Este o oportunitate excelentă pentru: clinică medicală, centru de servicii, showroom, birou de arhitectură sau orice activitate care lipsește în prezent din ecosistemul Aviației. Zona este dominată de clădiri de birouri și companii mari, ceea ce înseamnă trafic constant, public țintă clar și potențial comercial ridicat. Dacă ai un concept care merită vizibilitate într-un hub modern și activ, spațiul acesta poate deveni exact locul în care businessul tău crește natural.

Chirie / u.m. / lună:
25.00 EUR/mp (total: 3200 EUR/lună)
Înălțime spațiu (m):
35
Suprafață disponibilă:
128
Disponibilitate spațiu:
imediat
Etaj:
Parter / 12

Direct proprietar • Spațiu comercial / birou • Aviației • Zonă corporate

Amplasat la parterul ansamblului Aviației Tower by Rădăcini, într-una dintre cele mai dinamice zone de business din București, spațiul de 430 mp oferă vizibilitate excelentă și acces facil din bulevardul principal. Chiria este de 25 €/mp, cu service charge inclus. Spațiul se predă la gri, astfel încât viitorul chiriaș își poate crea propriul concept, exact cum îl dorește. Contractul minim este de 5 ani, ceea ce oferă stabilitate și predictibilitate business-ului tău. Este o oportunitate excelentă pentru: clinică medicală, centru de servicii, showroom, birou de arhitectură sau orice activitate care lipsește în prezent din ecosistemul Aviației. Zona este dominată de clădiri de birouri și companii mari, ceea ce înseamnă trafic constant, public țintă clar și potențial comercial ridicat. Dacă ai un concept care merită vizibilitate într-un hub modern și activ, spațiul acesta poate deveni exact locul în care businessul tău crește natural.

Chirie / u.m. / lună:
30.00 EUR/mp (total: 1380 EUR/lună)
Înălțime spațiu (m):
35
Suprafață disponibilă:
46
Disponibilitate spațiu:
imediat
Etaj:
Parter / 12

Puncte de interes

Mijloace transport
bus-station
Statia Soseaua Fabrica de Glucoza, linia 135, N119
Stații autobuz aprox. 168 m
tram-station
Muzeul Aviatiei
Stații tramvai aprox. 221 m
bus-station
Rt 455 Pipera Tunari Maxi taxi Terminal (en)
Stații autobuz aprox. 322 m
metro-station
Aurel Vlaicu (M2)
Stații metrou aprox. 651 m
Școală
school
Grupul Scolar Industrial Constantin Brancusi (en)
Școli aprox. 191 m
school
Colegiul Tehnic Edmond Nicolau, fostul Electronica
Școli aprox. 257 m
kindergarten
Gradinita SOS Satul Copiilor
Gradinițe aprox. 475 m
university
Athenaeum University (en)
Universități aprox. 1772 m
Recreere
restaurant
Snack Attack Pipera 2
Restaurant aprox. 253 m
sports-ground
Teren sportiv
Terenuri sport aprox. 322 m
supermarket
Carrefour Market
Supermarket aprox. 331 m
park
Parc
Parcuri aprox. 355 m

Istoricul prețurilor

Acces la informații premium după autentificare
Login Gratuit

Proprietăți similare

Spațiu industrial, 500 mp în Chitila
4.235 € / lună
București, Chitila
500 mp utili
Logistică
Spațiu comercial, de 260 mp, în Aviatorilor
4.501 € / lună
București, Aviatorilor
260 mp utili
Casă/Vilă
2001
Spațiu comercial, de 181 mp, în Pipera
4.598 € / lună
București, Pipera
181 mp utili
Bloc de apartamente

Detalii de contact

Maxim Estate

Maxim Agent

Maxim Estate
PRO

Abonează-te la newsletter să fii primul care primește cele mai noi recomandări de proprietăți și sfaturi de la experți.

CONTACT

Creează alertă

Salvează căutarea ca să primești pe email ultimele anunțuri publicate

Spații comerciale de închiriat în zona Aviației, Sector 1