2

Inchiriere spatiu comercial Sos. Straulesti, 74.5 mp utili

1.110 € / lună
15 € / mp / lună

Băneasa, București

Sup. utilă / mp. utili:
74 mp
Tip prop.:
Spațiu stradal
  • • Comision 0%
  • • Locație exactă

Descriere spațiu comercial

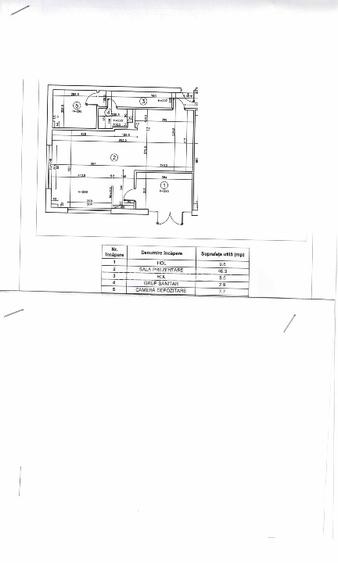
Oferim spre inchiriere spatiu comercial in suprafata utila de 74,5 mp situat la parterul unui bloc cu regim de inaltime P+4+E retras de pe Sos. Straulesti, Sector 1, Bucuresti. Zona este in dezvoltare accelerata din perspectiva proiectelor rezidentiale care vor creste semnificativ densitatea populatiei. Spatiul are acces stradal direct, cat si o iesire in spatele blocului. Este dotat si cu cos de evacuare fum, care este o cerinta legala in cazul desfasurarii unei activitati de alimentatie publica (restaurant). Momentan spatiul este compartimentat conform releveu atasat, insa se poate personaliza în funcție de specificul activității ce urmează a fi desfasurata, compartimentarile actuale fiind in structura usoara.
Citește mai mult Citește mai puțin

Detalii spațiu comercial

ID anunț: XV1004085 Copiat! 273046008 Copiat!
Actualizat în: 07 Aprilie 2026
Suprafață utilă: 74 mp

Utilități

Comision
0%

Subspații disponibile

Chirie / u.m. / lună:
15 EUR/mp (total: 1110 EUR/lună), Comision 0% cumpărător
Suprafață disponibilă:
74
Disponibilitate spațiu:
01.04.2026

Puncte de interes

Mijloace transport
bus-station
Statie Foradex 148, 149, 112
Stații autobuz aprox. 78 m
bus-station
Nuferilor
Stații autobuz aprox. 158 m
tram-station
Cartier Damaroaia
Stații tramvai aprox. 1100 m
tram-station
Statie Cartier Damaroaia Tv24
Stații tramvai aprox. 1122 m
Școală
school
Gradinita de stat nr. 115 (en)
Școli aprox. 602 m
school
Grup Scolar de arte si meserii Dimitrie Paciurea
Școli aprox. 614 m
university
Bioterra (en)
Universități aprox. 1068 m
kindergarten
Gradinita
Gradinițe aprox. 1306 m
Recreere
sports-ground
Teren sportiv
Terenuri sport aprox. 225 m
supermarket
Complex Flora(Puzdrea)
Supermarket aprox. 805 m
park
Fantana Miorita(1936)Arh.Octav Doicescu
Parcuri aprox. 1041 m
public-square
Piata Montreal
Piețe publice aprox. 1636 m

Proprietăți recomandate

Detalii de contact

Elena Ionescu

Elena Ionescu

Abonează-te la newsletter să fii primul care primește cele mai noi recomandări de proprietăți și sfaturi de la experți.

CONTACT

Creează alertă

Salvează căutarea ca să primești pe email ultimele anunțuri publicate

Spații comerciale de închiriat în zona Băneasa, Sector 1