1

| SPATIU COMERCIAL | Sector 1 | Comision 0%

4.054 € / lună
18.18 € / mp / lună

Bucureștii Noi, București

Sup. utilă / mp. utili:
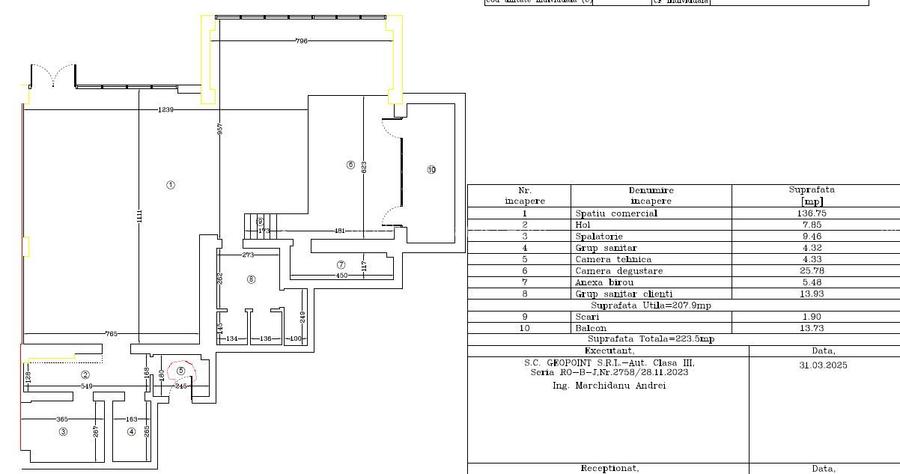
223,5 mp
Tip prop.:
Bloc de apartamente
  • • Locație aproximativă

Descriere spațiu comercial

Spatiu comercial la parter, situat in nordul Bucurestiului (Intrarea Straulesti), cu vizibilitate foarte buna si acces direct din exterior. Suprafata totala este de 223,5 mp, aflata la stadiul de rosu, oferind posibilitate completa de compartimentare si adaptare la orice tip de activitate: clinica, showroom, birou de reprezentanta, beauty sau retail. []Compartimentare funcțională: - Spațiu comercial principal: 137 mp - Grup sanitar: 5 mp - Grup sanitar clienți: 14 mp - Balcon: 14 mp Spațiul beneficiază de încălzire în pardoseală, sistem de răcire integrat. Fațadă largă, acces direct din exterior, expunere excelentă și vizibilitate către traficul local. []Condiții financiare: - Chirie: 15€/mp (3.350 €/lună) - Perioada minima inchiriere: 5 ani - Comision chirias: 0% Un spatiu potrivit pentru companii care cauta o imagine moderna, flexibilitate maxima in amenajare si pozitionare premium in zona de nord.
Citește mai mult Citește mai puțin

Detalii spațiu comercial

ID anunț: XET31405S Copiat! 274596598 Copiat!
Actualizat în: 29 Martie 2026
Tip tranzacție: De închiriat prin agent
Suprafață utilă: 223.5 mp
Regim înălțime: P
Stadiu construcție: Există

Utilități

Destinație
Comercial
Utilități
Curent Apă Canalizare Gaze
Comision
standard

Disponibilitate proprietate:

Imediat

Puncte de interes

Mijloace transport
bus-station
Statie Foradex 148, 149, 112
Stații autobuz aprox. 79 m
bus-station
Nuferilor
Stații autobuz aprox. 280 m
tram-station
Cartier Damaroaia
Stații tramvai aprox. 1180 m
tram-station
Statie Cartier Damaroaia Tv24
Stații tramvai aprox. 1204 m
Școală
school
Grup Scolar de arte si meserii Dimitrie Paciurea
Școli aprox. 553 m
school
Grup scolar de arte si meserii Dimitrie Paciurea
Școli aprox. 624 m
university
Bioterra (en)
Universități aprox. 1165 m
kindergarten
Gradinita
Gradinițe aprox. 1258 m
Recreere
sports-ground
Teren sportiv
Terenuri sport aprox. 337 m
supermarket
Complex Flora(Puzdrea)
Supermarket aprox. 730 m
park
Fantana Miorita(1936)Arh.Octav Doicescu
Parcuri aprox. 917 m
public-square
Piata Montreal
Piețe publice aprox. 1525 m

Istoricul prețurilor

Acces la informații premium după autentificare
Login Gratuit

Proprietăți similare

Spațiu comercial, de 78 mp, în Bucureștii Noi
3.276 € / lună
București, Bucureștii Noi
78 mp utili
Spațiu stradal
Spațiu comercial, 175 mp în Sisești
3.500 € / lună
București, Sisești
175 mp utili
Spațiu stradal
Spațiu comercial, 124 mp în P-ța Dorobanți
3.200 € / lună
București, P-ța Dorobanți
124 mp utili
Spațiu stradal

Detalii de contact

Abonează-te la newsletter să fii primul care primește cele mai noi recomandări de proprietăți și sfaturi de la experți.

CONTACT

Creează alertă

Salvează căutarea ca să primești pe email ultimele anunțuri publicate

Spații comerciale de închiriat în zona Bucureștii Noi, Sector 1