Spatiu Comercial. P+2. 466 mp. Proprietar. 0% Comision. 5000 EURO NEGOCIABIL.

5.126 € / lună
11 € / mp / lună

Bucureștii Noi, București

Sup. utilă / mp. utili:
500 mp
Tip prop.:
Casă/Vilă
  • • Comision 0%
  • • Locație exactă

Descriere spațiu comercial

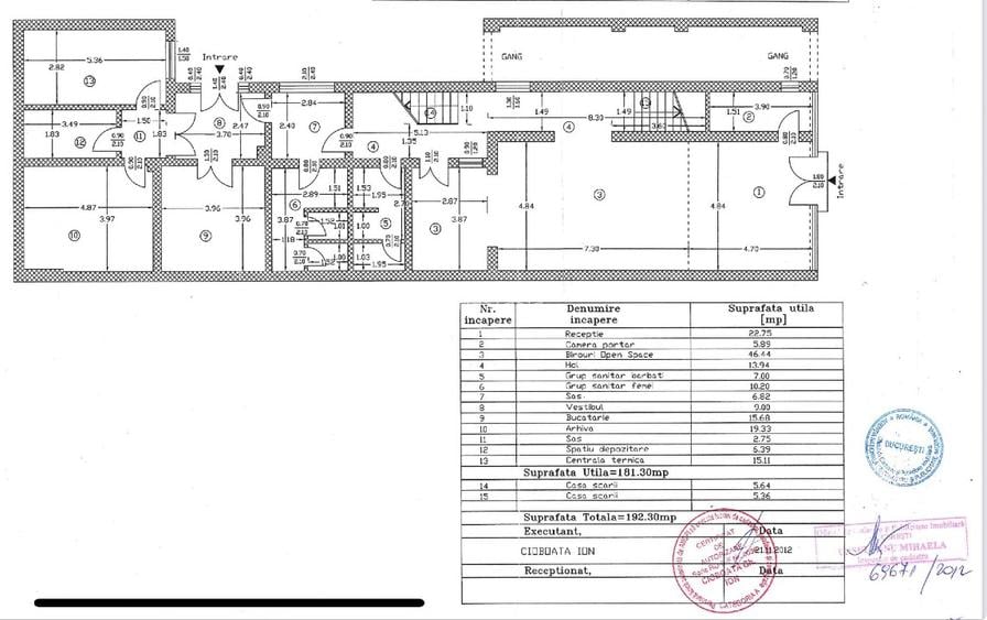
Descriere spațiu comercial DIRECT PROPRIETAR - Inchiriem imobil nou format din parter + 2 etaje si curte acoperita, ideal pentru firme care au necesar de spatii de expunere si birouri. Spatiul se preteaza pentru diverse activitati comerciale, cum ar fi magazin, showroom, clinica medicala, reprezentanta, banca etc. In prezent spatiul este liber. Imobilul este situat stradal, pe Sos. Chitilei 177 A, sector 1. Dispune de parter cu suprafata totala de 192 mp, din care 74 mp spatiu de expunere; Etaj 1, cu suprafata totala de 237 mp, din care 117 mp spatiu de expunere; Etaj 2, cu suprafata totala de 129 mp, din care 67 mp spatiu de expunere si terasa circulabila in suprafata de 62 mp. Imobilul este construit in anul 2012 si dispune de: - Curent trifazic; - Gaze, centrala proprie; - Apa curenta; - Instalatie de alarma; - Internet prin fibra optica; - Centrala telefonica.
Citește mai mult Citește mai puțin

Detalii spațiu comercial

ID anunț: XV100413F Copiat! 275210858 Copiat!
Actualizat în: 06 Martie 2026
Suprafață utilă: 466 mp

Utilități

Comision
0%

Subspații disponibile

Chirie / u.m. / lună:
11 EUR/mp (total: 5126 EUR/lună), Comision 0% cumpărător
Suprafață disponibilă:
466
Disponibilitate spațiu:
imediat

Puncte de interes

Mijloace transport
bus-station
Statia Marmurei / Subcetate, linia N118,45
Stații autobuz aprox. 112 m
tram-station
Marmurei
Stații tramvai aprox. 119 m
train-station
Gara - Halta Pajura - zisa si Triaj
Stații tren aprox. 584 m
metro-station
Metrorex. Stația Parc Bazilescu (M4)(2011)
Stații metrou aprox. 828 m
Școală
school
Scoala Generala nr 183 Bucuresti
Școli aprox. 80 m
school
Scoala Generala Nr. 183
Școli aprox. 106 m
kindergarten
Gradinita 97
Gradinițe aprox. 979 m
kindergarten
Gradinita Nr. 47
Gradinițe aprox. 1003 m
Recreere
supermarket
Supermarket NIC
Supermarket aprox. 404 m
restaurant
"La linie", drink&gossip
Restaurant aprox. 556 m
sports-ground
Teren sportiv
Terenuri sport aprox. 606 m
park
Parc
Parcuri aprox. 622 m

Proprietăți recomandate

Detalii de contact

Catanoiu Stefan

Anastasia

Proprietar

Abonează-te la newsletter să fii primul care primește cele mai noi recomandări de proprietăți și sfaturi de la experți.

CONTACT

Creează alertă

Salvează căutarea ca să primești pe email ultimele anunțuri publicate

Spații comerciale de închiriat în zona Bucureștii Noi, Sector 1