Spatiu Comercial Stradal**240mp**2 locuri parcare//Bdul Ion MIhalache

4.200 € / lună
17.50 € / mp / lună

Domenii, București

Sup. utilă / mp. utili:
240 mp
Tip prop.:
Bloc de apartamente
  • • Locație aproximativă

Descriere spațiu comercial

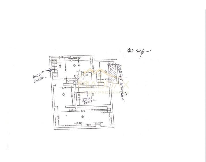
MADDAX Luxury Properties are placerea de a va prezenta spre inchiriere un spațiu comercial cu vizibilitate excelentă, situat la parterul unui imobil stradal, ideal pentru showroom, clinică, bancă, birouri sau retail. Spatiul generos si luminos dispune de usa acces din bulevardul Ion Mihalache, plus 2 usi de acces marfa in spatele cladirii. Suprafață totală: 240 mp, dintre care: *Parter: 140 mp utili, compartimentat eficient, cu 2 vitrine mari la stradă și 4 căi de acces – perfect pentru trafic pietonal și expunere. *Demisol: 100 mp, disponibil opțional, contra cost (600 EUR/lună), ideal pentru spații de depozitare, birouri auxiliare sau funcțiuni complementare. DOTARI: 2 bai functionale cu fereastra, dispozitive de aer conditionat, Sistem stativ - Firma luminoasa, deja montata doar de personalizat cu numele firmei. ✨ AVANTAJE: **Poziție stradală, cu vitrină generoasă și trafic intens, care oferă o excelentă expunere și accesibilitate. **Acces multiplu: 4 usi **Spațiu versatil, pretabil pentru multiple domenii de activitate **Contorizare separata **Posibilitate instalare lift marfa ** Două locuri de parcare sunt incluse în prețul de închiriere. **Curent trifazic: 380 V Condiții pentru inchiriere: *Se solicită 2 luni de garanție + o luna de chirie *Demisolul este opțional și se închiriază separat la pretul de 600 EUR/lună ***Spațiul este disponibil și pentru vânzare, la prețul de 5.800 EUR/mp construiti – o investiție solidă într-o zonă cu potențial comercial ridicat. Programează o vizionare și fă următorul pas pentru afacerea ta! Echipa MADDAX Luxury Properties
Citește mai mult Citește mai puțin

Detalii spațiu comercial

ID anunț: XDJC1413T Copiat! 275403864 Copiat!
Actualizat în: 18 Mai 2026
Tip tranzacție: De închiriat prin agent
Suprafață utilă: 240 mp
Regim înălțime: D+P
Stadiu construcție: Există

Utilități

Utilități
Curent Apă Canalizare Gaze
Comision
standard

Disponibilitate proprietate:

Imediat

Puncte de interes

Mijloace transport
bus-station
Statia Piata Ion Mihalache, linia 205, 300, 282, N118, 20, 24, 42, 45
Stații autobuz aprox. 121 m
tram-station
Bd. Mihalache
Stații tramvai aprox. 292 m
trolleybus-station
Statie Soseaua Nicolae Titulescu 65, 97, 86
Stații troleibuz aprox. 1056 m
metro-station
Metrorex. Stația Basarab
Stații metrou aprox. 1072 m
Școală
school
Lexis School of Languages (en)
Școli aprox. 298 m
school
Scoala Generala Nr. 17 "Pia Bratianu"
Școli aprox. 389 m
kindergarten
Gradinita 97
Gradinițe aprox. 685 m
university
Universitatea De Stiinte Agronomice Si Medical Veterinare
Universități aprox. 1277 m
Recreere
supermarket
Mega Image
Supermarket aprox. 116 m
park
Parc
Parcuri aprox. 274 m
hypermarket
Intrarea in caminele C si D din grozavesti
Hipermarket aprox. 1983 m
mall
"METROPLIS CENTER"
Mall aprox. 1991 m

Proprietăți similare

Proprietate specială, 91 mp în Băneasa
3.853 € / lună
București, Băneasa
91 mp utili
1E
Spațiu comercial, de 181 mp, în Pipera
4.598 € / lună
București, Pipera
181 mp utili
Bloc de apartamente
Spațiu comercial, de 240 mp, în Domenii
4.200 € / lună
București, Domenii
240 mp utili
Bloc de apartamente

Detalii de contact

Abonează-te la newsletter să fii primul care primește cele mai noi recomandări de proprietăți și sfaturi de la experți.

CONTACT

Creează alertă

Salvează căutarea ca să primești pe email ultimele anunțuri publicate

Spații comerciale de închiriat în zona Domenii, Sector 1