Punem la dispoziție trei spații comerciale situate la parterul ansamblului Belvedere, într-o zonă cu cel mai mare ritm de dezvoltare din nordul Bucureștiului.
Într-un perimetru de aproximativ 500 de metri se regăsesc peste 2.300 de apartamente deja locuite, iar altele sunt în curs de construcție — ceea ce generează un flux constant de clienți și vizibilitate ridicată.
Spațiile sunt pretabile pentru:
showroom-uri (mobilă, decorațiuni, electrocasnice, biciclete, sport etc.)
activități comerciale (retail, supermarket, farmacii, servicii)
HORECA (bistro, coffee shop, restaurant, concept bar, grab & go)
clinici, saloane, fitness boutique, cabinete medicale
Acces imediat la metrou Pipera – flux pietonal intens
Apropiere de cele mai importante clădiri corporate din zonele Barbu Văcărescu – Dimitrie Pompeiu
Conectivitate excelentă către Autostrada A3
Zonă în continuă dezvoltare (noi proiecte rezidențiale și office în execuție)
Vizibilitate crescută și vitrine generoase
Caracteristici comune ale spațiilor
Înălțime liberă 6 metri, ideală pentru mezanin metalic (posibilitatea de a obține etaj suplimentar)
Open-space ușor de adaptat oricărui concept
Grupuri sanitare proprii și toate utilitățile
Acces pietonal și auto facil
Spațiile disponibile
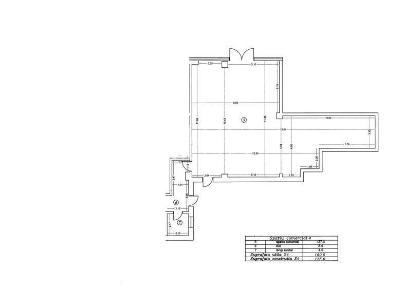
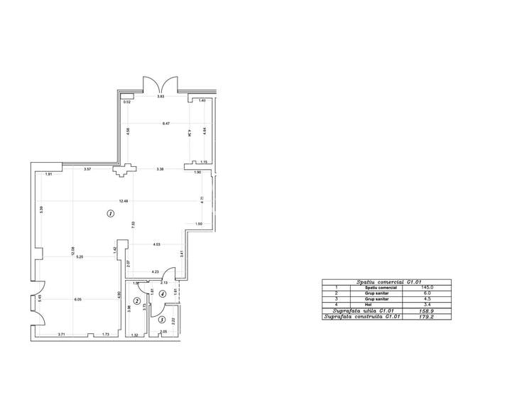
1. Spațiu comercial – 179 mp construiți (158,9 mp utili)
-Preț: 28 €/mp/lună
2. Spațiu comercial – 177 mp construiți (165 mp utili)
-Preț: 28 €/mp/lună
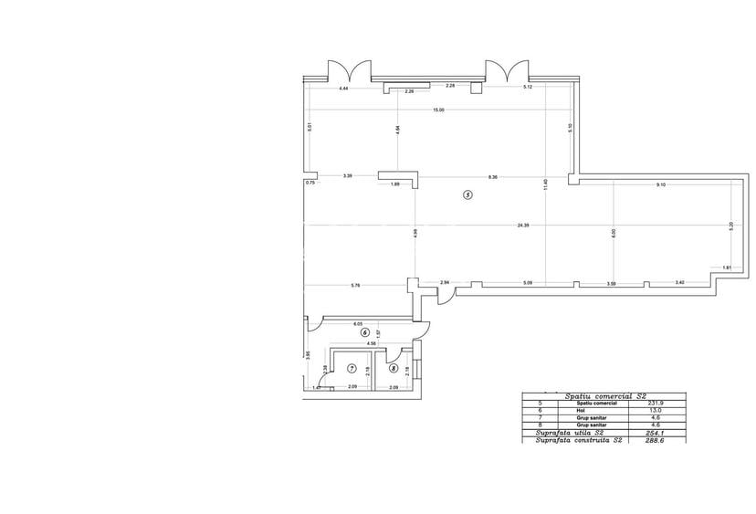
3. Spațiu comercial mare – 289 mp construiți (aprox. 245–250 mp utili)
-Vitrină extinsă, ideal pentru branduri cu trafic mare sau HORECA
-Preț standard: 27 €/mp/lună
-25 €/mp/lună în primul an
Spațiile sunt disponibile imediat.
Locuri de parcare disponibile 50€
Spatiile se predau la rosu.
Pretul este calculat la mp construit.
Pentru detalii și vizionări, mă poți contacta în privat.
Comisionul este 0%
Sediul central - Timișoara
Bulevardul Victor Babeș nr. 2, 300230, Timișoara, România
Tel: +40.374.40.44.98 / Fax: +40.256.401.179
Email: suport@imobiliare.ro
Luni - Vineri 08:00 - 20:00
Punct de lucru - București: Iride Business Park, Bld. Dimitrie
Pompeiu 9-9A, Clădirea B2B,
020335, Sector 2, București, România
CONTACT
Sediul central - Timișoara
Bulevardul Victor Babeș nr. 2, 300230, Timișoara, România
Tel: +40.374.40.44.98 / Fax: +40.256.401.179
Email: suport@imobiliare.ro
Luni - Vineri 08:00 - 20:00
Punct de lucru - București: Iride Business Park, Bld. Dimitrie
Pompeiu 9-9A, Clădirea B2B,
020335, Sector 2, București, România
Printre mijloacele de transport în comun pe care le vei avea la dispoziție în cazul în care te vei muta în zona Floreasca se numără autobuzele 182 și 135. Primul dintre acestea îți oferă o legătură directă cu zona Gării de Nord și cu cartierul Colentina. Cel de-al doilea oferă o conexiune cu zona Pipera, unul dintre principalii poli de business din nordul orașului. Stația de metrou Ștefan cel Mare, aflată pe magistrala M1 Dristor-Pantelimon, la care ai acces în apropierea Stadionului Dinamo, îți va fi și ea de ajutor dacă vrei să eviți aglomerația din trafic. Astfel, vei avea doar o stație de mers până la Piața Victoriei, iar de aici poți schimba metroul pentru a ajunge în cel mult 10 minute în Pipera. Verifică harta pentru a afla unde sunt poziționate stațiile mijloacelor de transport în comun.
Dacă te vei muta în zona Floreasca, atunci vei avea în apropierea casei tale Liceul Teoretic "CA Rosetti" și Școala Gimnazială "Maria Rosetti". În cartier găsești, totodată, câteva grădinițe private și de stat. Consultă harta pentru a vedea care sunt unitățile de învățământ din Floreasca și din vecinătatea acestei zone.
Pe Strada Barbu Văcărescu vei găsi un magazin Kaufland și un Carrefour Market, iar la limita nordică a cartierului vei avea la dispoziție mall-ul Promenada. Din zona Floreasca ajungi destul de rapid la magazinele de lângă Pasajul Băneasa și la Piața Băneasa, iar cu mașina faci doar câteva minute până la Băneasa Shopping City, unul dintre cele mai mari centre comerciale din oraș. Vis-a-vis de acesta găsești și magazine Mega Image, Selgros și Decathlon. Află de pe hartă unde îți vei face cumpărăturile dacă te muți în acest cartier.
Dacă preferi să te deplasezi cu mașina prin oraș, este bine să știi că vei întâlni aglomerație în trafic, în special la orele de vârf, la intersecțiile dintre Șoseaua Ștefan cel Mare, Strada Barbu Văcărescu și Calea Floreasca. Circulația este îngreunată de multe ori și pe Strada Barbu Văcărescu, pe segmentul dinspre Șoseaua Pipera, din cauza numărului mare de angajați care lucrează în clădirile de birouri din jurul stației de metrou Aurel Vlaicu. Încearcă să te adresezi Biroului Parcări din cadrul ADP Sector 2 pentru a vedea dacă poți închiria un loc de parcare pentru mașina ta în apropierea casei. Consultă harta pentru a afla unde sunt poziționate principalele parcări.
Dacă te muți în zona Floreasca, vei avea mereu în apropiere unele dintre cele mai apreciate restaurante, terase și cluburi din București. Iar dacă vrei să încerci ceva nou atunci la doi pași de casă, în Dorobanți, vei găsi și alte localuri de care te poți bucura în timpul liber. Mai multe săli de fitness s-au deschis în cartier. În apropiere de viitoarea ta casă vei avea Parcul Verdi și Parcul Floreasca. Poți merge la terasă sau la piscină în zona acestuia din urmă. Tot în apropiere vei avea și Circul Metropolitan București (fostul Circ Globus) și parcul acestuia. Complexul Sportiv Floreasca și Stadionul Dinamo, unde sunt amenajate mai multe terenuri de sport și unde poți merge la înot, merită și ele menționate. În partea de nord a cartierului vei găsi, totodată, Clubul Sportiv de Fotbal Athletico Floreasca și Academia de Tenis Ilie Năstase. Consultă harta și vezi ce alte puncte de interes vei avea în apropierea casei tale.
În apropierea Stadionului Dinamo găsești Spitalul Clinic de Urgență București (cunoscut și sub numele de Spitalul Floreasca) și Spitalul Euroclinic care face parte din rețeaua privată de sănătate Regina Maria. În cartier există și câteva clinici private la care poți apela la nevoie, iar în zona Parcului Circului alte două spitale - Spitalul Sf. Ștefan și Spitalul Clinic Colentina. Consultă harta pentru a afla poziționarea exactă a unităților sanitare din cartier și din împrejurimi.
Găsești numeroase restaurante și terase de-a lungul arteri de circulație care traversează această zonă, Calea Floreasca. Ai, totodată, la doi pași de casă, mall-ul Promenada, unde găsești atât un food court cu destul de multe opțiuni, cât și câteva terase unde îți poți savura cafeaua în aer liber, dar și localurile din Dorobanți. Ajungi foarte rapid și în Piața Victoriei, unde găsești mai multe cafenele. De acolo, poți lua la pas Calea Victoriei, una dintre cele mai frumoase zone din oraș. Te vei plimba și vei găsi, cu siguranță, un restaurant pe gustul tău. Aruncă o privire pe hartă și vezi ce alte opțiuni ai în apropierea viitoarei tale locuințe.
Mai multe bănci și ATM-uri pot fi găsite în zona mall-ului Promenada și la intersecția dintre Calea Floreasca și Șoseaua Ștefan cel Mare. Pentru mai multe detalii, consultă harta.
Înainte să pleci...
Ești sigur că ai văzut și aceste proprietăți?
4.000 € / lună
București, Floreasca
128 mp utili
Centru comercial
1965
4.801 € / lună
București, Floreasca
92,6 mp utili
Spațiu stradal
4E
5.001 € / lună
București, Floreasca
90 mp utili
Centru comercial
1E
Creează alertă
Salvează căutarea ca să primești pe email ultimele anunțuri publicate
Spații comerciale cu o cameră de închiriat în zona Floreasca, Sector 1
Cere detalii prin email
*
*
*
*
Detaliile tale de contact vor fi partajate cu Raelba Real Estate