9

Proprietar, inchiriez spatiu comercial deosebit zona parcul Kiseleff

5.808 € / lună
25.25 € / mp / lună

Kiseleff, București

Sup. utilă / mp. utili:
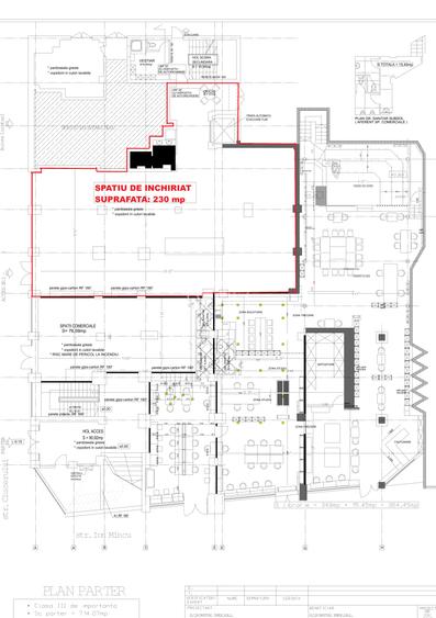
230 mp
Tip prop.:
Spațiu stradal
  • • Locație exactă

Descriere spațiu comercial

Vizualizați-vă afacerea într-un spațiu modern, versatil și spectaculos, aflat în inima zonei de business din nordul Bucureștiului – una dintre cele mai dinamice și promițătoare locații pentru dezvoltare comercială. Acest spațiu beneficiază de deschidere directă la strada Clucerului, într-o zonă cu trafic intens, vizibilitate maximă și o comunitate în plină expansiune – peste 2.000 de apartamente în proximitate. Intrând în interior, sunteți întâmpinați de un spațiu generos, care poate fi compartimentat și personalizat în funcție de nevoile afacerii dumneavoastră. Fie că vă doriți un show-room premium, un birou de reprezentanță sau un spațiu pentru servicii, echipa noastră vă sprijină cu soluții de amenajare și design funcțional. Accesul este ușor și rapid, atât cu mașina, cât și cu transportul în comun, datorită proximității față de stația de metrou Piata Vicoriei și a multiplelor căi de acces dinspre Sos. Kiseleff, Piata Victoriei, bd. Aviatorilor, bd. Ion Mihalache. Aceasta nu este dar o oportunitate de închiriere, ci o alegere strategică pentru extinderea și consolidarea unei afaceri într-un cadru contemporan, eficient și cu potențial excepțional de creștere.
Citește mai mult Citește mai puțin
Aer condiționat Căldură

Detalii spațiu comercial

ID anunț: X70304023 Copiat! 265444181 Copiat!
Actualizat în: 28 Aprilie 2026
Tip tranzacție: De închiriat prin agent
Regim înălțime: P
Stadiu construcție: Există

Utilități

Utilități
Apă Canalizare Curent

Vecinătăți:

Seneca Anticafe, TED's, Liceul Tudor Vianu, Parcul Kiseleff, Consulatul Italiei, Piata 1 Mai

Subspații disponibile

Chirie / u.m. / lună:
25.25 EUR/mp (total: 5808 EUR/lună)
Suprafață disponibilă:
230
Disponibilitate spațiu:
01.08.2025
Etaj:
Parter

Puncte de interes

Mijloace transport
bus-station
Statia Piata Ion Mihalache, linia 205, 300, 282, N118, 20, 24, 42, 45
Stații autobuz aprox. 256 m
tram-station
Dr. Constantin Caracas
Stații tramvai aprox. 537 m
metro-station
Metrou Victoriei - iesire Aviatorilor
Stații metrou aprox. 822 m
trolleybus-station
Statie Soseaua Nicolae Titulescu 65, 97, 86
Stații troleibuz aprox. 1126 m
Școală
school
Colegiul National de Informatica "Tudor Vianu"
Școli aprox. 126 m
school
Colegiul National de Informatica Tudor Vianu
Școli aprox. 126 m
kindergarten
Gradinita nr. 2
Gradinițe aprox. 562 m
university
Universitatea Politehnica Bucuresti
Universități aprox. 1149 m
Recreere
supermarket
Mega Image
Supermarket aprox. 71 m
park
Piateta regelui
Parcuri aprox. 289 m
public-square
Piața Aviatorilor
Piețe publice aprox. 610 m
mall
"METROPLIS CENTER"
Mall aprox. 1632 m

Istoricul prețurilor

Acces la informații premium după autentificare
Login Gratuit

Proprietăți similare

Spațiu comercial, de 90.00 mp, în Floreasca
5.000 € / lună
București, Floreasca
90 mp utili
Centru comercial
1E
Spațiu comercial, de 181 mp, în Pipera
4.598 € / lună
București, Pipera
181 mp utili
Bloc de apartamente
Spațiu comercial, de 260 mp, în Aviatorilor
4.501 € / lună
București, Aviatorilor
260 mp utili
Casă/Vilă
2001

Detalii de contact

Abonează-te la newsletter să fii primul care primește cele mai noi recomandări de proprietăți și sfaturi de la experți.

CONTACT

Creează alertă

Salvează căutarea ca să primești pe email ultimele anunțuri publicate

Spații comerciale de închiriat în zona Kiseleff, Sector 1