Fabrica de Glucoza, spatii comerciale 160 mp si 400 mp

4.300 € / lună
26.88 € / mp / lună

Pipera, București

Sup. utilă / mp. utili:
160 mp
An constr.:
2025 (Există)
  • • Locație exactă
  • • Vizionare prin apel video

Descriere spațiu comercial

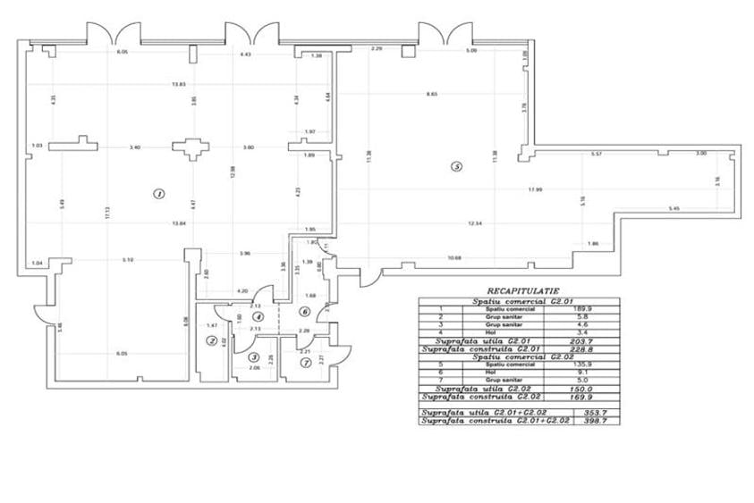
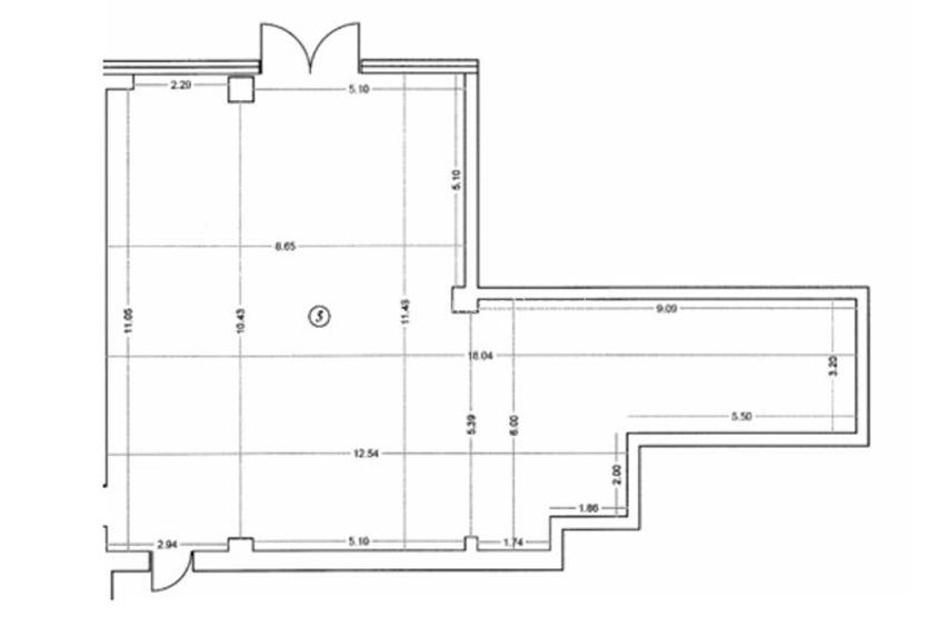
Avem placerea sa va oferim spre inchiriere de lunga durata aceste spatii comerciale in Bucuresti, in zona Fabrica de Glucoza. Zona este linistita si cu multa verdeata si ofera acces rapid spre nordul Capitalei (Mobexpert, Promenada mall etc). In vecinatate se afla gradinite, scoli si licee, magazine, restaurante si cafenele, banci, centre medicale, cluburi si terenuri de sport. Spatii comerciale moderne se afla in Galeriile Belvedere, intr-un ansamblu rezidential si comercial nou, finalizat in 2025. Proprietatea include doua spatii comerciale open space, amplasate la parter, ideale pentru showroom, retail premium, servicii, banca, clinica, fitness sau concept store. Spatiile sunt predate la gri, cu toate utilitatile disponibile (apa, curent, contor individual), autorizatie ISU si inaltime generoasa de 5,5 m sub grinda, oferind flexibilitate maxima de amenajare. Accesul se face atat din fata, cat si prin usa de acces secundara din spate. Suprafetele disponibile sunt: 160 mp - chirie 27 EUR mp, respectiv 4.300 EUR luna + TVA 400 mp - chirie 25 EUR mp, respectiv 10.000 EUR luna + TVA Galeriile Belvedere reunesc 25 de spatii comerciale dispuse la parterul a 13 blocuri, cu vizibilitate excelenta intre Kaufland, Mobexpert, UpGround Residence si zona Barbu Vacarescu. Ansamblul beneficiaza de bretea auto proprie si 250 de locuri de parcare dedicate exclusiv spatiilor comerciale, disponibile contra cost (100 euro loc luna). Zona este deja validata comercial, cu chiriasi consacrati precum Casa Magica (mobila), Natuzzi (mobila) Sophia (perdele, draperii, accesorii de interior)) ,Mega Image, Libra Bank, Bang & Olufsen, Husqvarna, Sweat Fitness sau showroom-uri auto. Contractele se incheie pe perioada de 5 ani cu contract inchis, cu garantie de 3 luni, indexare anuala HICP si o luna de gratie la inceputul contractului. Pentru orice alte detalii, nu ezita sa ma contactezi la numarul de telefon sau adresa de e-mail: . White Mountain Property colaborează strâns cu numeroase agenții imobiliare locale, pentru a eficientiza procesul de căutare și a economisi timpul clienților noștri, asigurându-ne că aceștia găsesc rapid proprietatea care corespunde nevoilor lor. De asemenea, dacă ați identificat o proprietate printr-o altă sursă dar preferați ca gestionarea acesteia să se realizeze prin noi, ne puteți trimite detaliile și vom intermedia în numele dumneavoastră, fără costuri suplimentare. Practic, beneficiați de suportul a două agenții la costul uneia singure. Prioritatea noastră, în calitate de agenție imobiliară de încredere, este să asigurăm tranzacții de închiriere și vânzare de durată, bazate pe transparență și profesionalism. ID intern TSaO 130126 GLU
Citește mai mult Citește mai puțin

Detalii spațiu comercial

ID anunț: XC4S1407T Copiat! 274756710 Copiat!
Actualizat în: 03 Februarie 2026
Înălțime spațiu (m): 5.5
Stadiu construcție: Există

Utilități

Utilități
Apă Curent Canalizare

Vecinătăți:

Scoala/gradinita, Restaurant/pub, Parc, Hotel, Benzinarie, Intersectie circulata, Trafic Pietonal, Fastfood, Supermarket, Banca, Zona comerciala, Autobuz

Puncte de interes

Mijloace transport
metro-station
Metrorex. Stația Pipera (M2)(1987)
Stații metrou aprox. 384 m
metro-station
Pipera (M2)
Stații metrou aprox. 394 m
tram-station
Electronica
Stații tramvai aprox. 432 m
bus-station
Soseaua Fabrica de Glucoza statie 16, 36
Stații autobuz aprox. 606 m
Școală
school
Colegiul Tehnic Edmond Nicolau, fostul Electronica
Școli aprox. 827 m
school
Grupul Scolar Industrial Constantin Brancusi (en)
Școli aprox. 868 m
kindergarten
Gradinita nr. 7
Gradinițe aprox. 1049 m
university
Facultatea de Cai Ferate Drumuri si Poduri, Facultate de Geodezie
Universități aprox. 1598 m
Recreere
restaurant
Q'inn
Restaurant aprox. 178 m
supermarket
Carrefour
Supermarket aprox. 465 m
park
Parc
Parcuri aprox. 611 m
sports-ground
Teren sportiv
Terenuri sport aprox. 749 m

Proprietăți similare

Spațiu comercial, 185 mp în Pipera
4.000 € / lună
București, Pipera
185 mp utili
Bloc de apartamente
4E
Spațiu comercial, 170 mp în Pipera
4.000 € / lună
București, Pipera
170 mp utili
Bloc de apartamente
10E
Spațiu comercial, de 580 mp, în Pipera
4.000 € / lună
București, Pipera
580 mp utili
Bloc de apartamente
2010

Detalii de contact

Abonează-te la newsletter să fii primul care primește cele mai noi recomandări de proprietăți și sfaturi de la experți.

CONTACT

Creează alertă

Salvează căutarea ca să primești pe email ultimele anunțuri publicate

Spații comerciale cu o cameră de închiriat în zona Pipera, Sector 1