3

| SPATII COMERCIALE NOI | 1.660 mp (P+1) | Sens Giratoriu Pipera |

18.260 € + TVA / lună
11 € + TVA / mp / lună

Pipera, București

Sup. utilă / mp. utili:
1.660 mp
Tip prop.:
Centru comercial
  • • Locație aproximativă

Descriere spațiu comercial

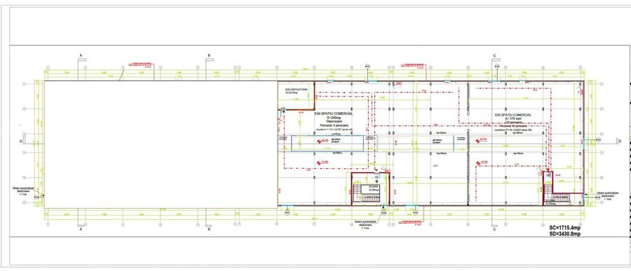
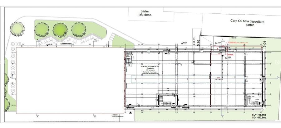
Va prezentam spre inchiriere spatii comerciale noi, aflate in curs de renovare si amenajare, amplasate chiar langa sensul giratoriu Pipera – reper McDonald’s. Proprietatea are o suprafata totala de 1.660 mp (P+1) si poate fi inchiriata integral sau impartita in doua spatii distincte, cu acces si utilitati separate. []Suprafete disponibile – Spatiu 1: 1.112 mp (P+1) – 12.200 €/luna – Spatiu 2: 548 mp (P+1) – 6.000 €/luna Spatiile pot functiona independent sau impreuna, in functie de necesitatile chiriasului. []Caracteristici tehnice – Inaltime utila: aprox. 3 m la parter / 4 m la etaj – Acces prin usi: 2,0 m x 2,5 m – Utilitati: curent electric, apa, canalizare, gaze – Autorizatie ISU: in curs de obtinere – Parcare: locuri disponibile in incinta, incluse in chirie []Destinatii recomandate – Activitati comerciale – Showroom – Spatiu e-commerce – Productie usoara – Depozitare / micro-logistica []Avantaje – Pozitionare strategica, langa unul dintre cele mai circulate noduri din Pipera – Vizibilitate excelenta si acces facil dinspre Bucuresti, Voluntari si Tunari – Zona in plina dezvoltare, cu sedii de companii, depozite, retail modern si trafic intens Spatiile reprezinta o oportunitate pentru companii care cauta o locatie noua, versatila si foarte bine pozitionata in Pipera. []Pentru detalii sau vizionare, ne puteti contacta oricand.
Citește mai mult Citește mai puțin

Detalii spațiu comercial

ID anunț: XET31403F Copiat! 270805290 Copiat!
Actualizat în: 11 Februarie 2026
Suprafață utilă: 1660 mp
Stadiu construcție: Există

Utilități

Utilități
Curent Apă Canalizare Gaze

Disponibilitate proprietate:

Imediat

Puncte de interes

Mijloace transport
bus-station
Capat C.F.R Constanta linii : 112,135,445
Stații autobuz aprox. 901 m
tram-station
Statia Gelcap, linia 16, 36
Stații tramvai aprox. 953 m
bus-station
Rocin
Stații autobuz aprox. 995 m
metro-station
Pipera (M2)
Stații metrou aprox. 1333 m
Școală
kindergarten
Gradinita Zece
Gradinițe aprox. 1107 m
school
Scoala Nr.3 Voluntari
Școli aprox. 1206 m
school
Gradinita Happy Univers
Școli aprox. 1426 m
kindergarten
Echilibria 1
Gradinițe aprox. 1496 m
Recreere
restaurant
Q's Inn
Restaurant aprox. 56 m
park
spatiu verde
Parcuri aprox. 119 m
supermarket
Pipera Plaza
Supermarket aprox. 277 m
sports-ground
Teren sportiv
Terenuri sport aprox. 1747 m

Proprietăți recomandate

Detalii de contact

North Bucharest Rent

Enes Yedek Agent

North Bucharest Rent

Abonează-te la newsletter să fii primul care primește cele mai noi recomandări de proprietăți și sfaturi de la experți.

CONTACT

Creează alertă

Salvează căutarea ca să primești pe email ultimele anunțuri publicate

Spații comerciale de închiriat în zona Pipera, Sector 1