P252475
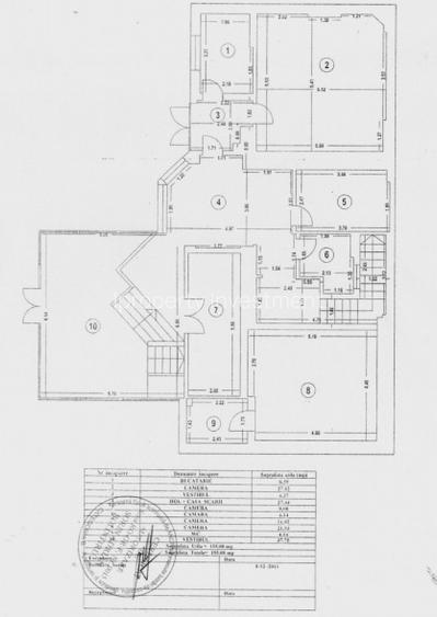
IPROPERTY INVESTMENT va propune spre INCHIRIERE un spatiu comercial (fosta clinica) cu 11 incaperi care se pot intr-un open-space, situat in zona Grivita-Aviatorilor.
Acest spatiu este ideal pentru domeniul medical in principiu dar se accepta si este pretabil de asemenea pentru: after school, magazin de retail, farmacie, cabinet notariat/avocatura, birouri, showroom, horeca.
Spatiul are o suprafata de 634mp intr-o cladire cu regim de inaltime D+P+2.
Compartimentarea este facuta din pereti de rigips, usi de sticla cu inchidere, granit/linoleum medical.
Cladirea are supraveghere video, aer conditionat, incalzire prin centrala proprie separat pentru fiecare nivel (demisol, parter+etajul 1 si etajul 2).
Spatiile puse la dispozitie sunt proaspat igienizate si renovate.
Pentru mai multe informații și programarea unei vizionări, vă invităm să ne contactați!
IProperty Investment – soluția dumneavoastră pentru investiții imobiliare inteligente.
Pentru mai multe detalii ne puteti contacta telefonic, va putem pune la dispozitie si o prezentare video detaliata cu spatiul.
Comisionul perceput de IProperty Investment este de 50% din prima lună de chirie. Agent: Bogdan Florea
Agent: Bogdan Florea
Sediul central - Timișoara
Bulevardul Victor Babeș nr. 2, 300230, Timișoara, România
Tel: +40.374.40.44.98 / Fax: +40.256.401.179
Email: suport@imobiliare.ro
Luni - Vineri 08:00 - 20:00
Punct de lucru - București: Iride Business Park, Bld. Dimitrie
Pompeiu 9-9A, Clădirea B2B,
020335, Sector 2, București, România
CONTACT
Sediul central - Timișoara
Bulevardul Victor Babeș nr. 2, 300230, Timișoara, România
Tel: +40.374.40.44.98 / Fax: +40.256.401.179
Email: suport@imobiliare.ro
Luni - Vineri 08:00 - 20:00
Punct de lucru - București: Iride Business Park, Bld. Dimitrie
Pompeiu 9-9A, Clădirea B2B,
020335, Sector 2, București, România
Vechea "Gara a Targovistei" astazi parte din Gara de Nord
aprox.
1407 m
Halta CFR Bucuresti Basarab h
aprox.
1459 m
Gradinita de copii Nr.42
aprox.
167 m
Gradinita Cami
aprox.
356 m
Gradinita de copii nr.97
aprox.
414 m
Scoala Gimnaziala Petre Ispirescu, nr.171
aprox.
447 m
Lexis School of Languages (en)
aprox.
455 m
Liceul Teoretic Ion Neculce
aprox.
464 m
Gradinita de copii nr.222
aprox.
565 m
Afterschool inGenius
aprox.
568 m
Scoala Gimnaziala nr.170 Geo Bogza
aprox.
623 m
Liceul Teoretic "Nicolae Iorga"
aprox.
667 m
Liceul Nicolae Iorga
aprox.
678 m
Scoala Generala Nr. 17 "Pia Bratianu"
aprox.
703 m
Scoala Generala nr. 17
aprox.
705 m
Gradinita de copii nr.116
aprox.
722 m
Gradinita Little London
aprox.
741 m
Gradinita 97
aprox.
411 m
Gradinita nr. 222
aprox.
572 m
Gradinita Casuta Piticilor
aprox.
705 m
Gradinita nr. 248
aprox.
850 m
Gradinita cu Program Prelungit Nr. 248
aprox.
858 m
Gradinita nr. 112
aprox.
987 m
Gradinita nr. 206
aprox.
1027 m
Gradinita de Copii Nr. 52
aprox.
1047 m
Gradinita cu program normal ""Ge Ce Pic Englishkinder"
aprox.
1095 m
Gradinita nr. 2
aprox.
1120 m
Gradinita Karin's Kids Academy
aprox.
1130 m
Gradinita nr. 43
aprox.
1188 m
Gradinita de copii nr.281 Steaua
aprox.
1243 m
Gradinita Nr. 43
aprox.
1244 m
Gradinita nr. 281
aprox.
1246 m
Facultatea de Biotehnologii
aprox.
1287 m
Facultatea de Viticultura
aprox.
1341 m
Universitatea Politehnica Bucuresti
aprox.
1344 m
Universitatea Politehnica - Polizu
aprox.
1344 m
Universitatea De Stiinte Agronomice Si Medical Veterinare
aprox.
1346 m
Facultatea de Chimie Industriala
aprox.
1377 m
Facultatea de Inginerie Aerospatiala
aprox.
1392 m
Corp A
aprox.
1396 m
Facultatea de Inginerie Medicala
aprox.
1411 m
Universitatea de Stiinte Agronomice si Medicina veterinara
aprox.
1412 m
Campus Universitatea de Stiinte Agronomice si Medicina Veterinara Bucuresti
aprox.
1432 m
ICPA Bucuresti
aprox.
1512 m
Institutul Medico-Militar
aprox.
1524 m
Universitatea Romano-Americana
aprox.
1644 m
Facultatea de Filosofie, Universitatea din București
aprox.
1910 m
CARREFOUR Express Mihalache
aprox.
419 m
Mega Image
aprox.
423 m
Mega Image piata 1Mai Non-Stop
aprox.
639 m
Mega Image
aprox.
647 m
Best Market 1
aprox.
726 m
Mega Image Domenii Non-Stop
aprox.
780 m
Branza Sibiu
aprox.
832 m
Mega Image
aprox.
867 m
Mega Image Titulescu 2
aprox.
869 m
Annabella
aprox.
872 m
Mega Image
aprox.
1050 m
Rom Sep
aprox.
1090 m
Mega Image
aprox.
1112 m
Kaufland
aprox.
1147 m
IDM
aprox.
1148 m
Intrarea in caminele C si D din grozavesti
aprox.
1781 m
Parcare Str. Turda
aprox.
180 m
Parcare
aprox.
436 m
Parcare
aprox.
520 m
Parcare Strada Clucerului
aprox.
611 m
Parcare
aprox.
615 m
Parcare
aprox.
650 m
Parcare
aprox.
691 m
Parcare
aprox.
711 m
Parcare
aprox.
839 m
Parcare
aprox.
1059 m
Parcare
aprox.
1103 m
Parcare
aprox.
1124 m
Parcare
aprox.
1131 m
Parcare
aprox.
1151 m
Parcare
aprox.
1168 m
Parc
aprox.
47 m
Parc
aprox.
305 m
Parcul Regina Maria
aprox.
376 m
Parcul Regina Maria
aprox.
376 m
Parc
aprox.
445 m
Parc
aprox.
541 m
Parc
aprox.
541 m
Parc
aprox.
657 m
Parc
aprox.
715 m
Parc
aprox.
767 m
Parc
aprox.
780 m
Piateta regelui
aprox.
935 m
Loc de joaca
aprox.
985 m
Parc
aprox.
1002 m
Parcul Kiseleff(1832)
aprox.
1051 m
Teren sportiv
aprox.
658 m
Teren sportiv
aprox.
933 m
Teren sportiv
aprox.
1116 m
Teren sportiv
aprox.
1120 m
Stadionul Giulesti - Valentin Stanescu
aprox.
1126 m
FRR
aprox.
1180 m
Teren sportiv
aprox.
1199 m
Teren sportiv
aprox.
1279 m
Teren sportiv
aprox.
1342 m
Teren sportiv
aprox.
1361 m
Teren sportiv
aprox.
1387 m
Teren sportiv
aprox.
1391 m
Teren sportiv
aprox.
1399 m
Teren sportiv
aprox.
1402 m
Teren sportiv
aprox.
1406 m
Piața Aviatorilor
aprox.
1249 m
Piata Montreal
aprox.
1824 m
Sorina
aprox.
275 m
Farmacia Richter
aprox.
321 m
Catena
aprox.
365 m
Help Net 49
aprox.
390 m
Dona
aprox.
390 m
Catena
aprox.
399 m
Sensiblu
aprox.
409 m
Punkt
aprox.
414 m
Sensiblu
aprox.
420 m
MC Serv Tour
aprox.
435 m
Farmacia Averescu
aprox.
510 m
Sensiblu Piata 1 Mai
aprox.
569 m
MC Serv Tour
aprox.
579 m
2 NA Farm
aprox.
616 m
Help Net Farma
aprox.
642 m
INGG "ANA ASLAN"
aprox.
390 m
Synevo Analize medicale
aprox.
434 m
Institutul de diabet Paulescu (en)
aprox.
580 m
Centrul De Boli Cardiovasculare Angiomedica
aprox.
580 m
Institutul de diabet Paulescu
aprox.
580 m
Neuroptics
aprox.
600 m
Spitalul "Agrippa Ionescu"
aprox.
704 m
Spitalul de Urgenta Prof. Dr. Agrippa Ionescu
aprox.
712 m
Spitalul Sfanta Maria
aprox.
727 m
Spitalul Clinic "Sfânta Maria" (fost Grivița)
aprox.
731 m
Pediatrie
aprox.
794 m
Spitalul de Copii Caraiman
aprox.
802 m
Lotus-Med Clinica de nutritie
aprox.
870 m
Institutul National de Hematologie Transfuzionala Prof. Dr. C.T.Nicolau (en)
aprox.
909 m
INHT C.T Nicolau
aprox.
929 m
Fabio Pizza
aprox.
271 m
PHD by Pizza Hut MIHALACHE 021.210.10.10
aprox.
357 m
La Placinte Mihalache
aprox.
399 m
La Placinte
aprox.
399 m
La Placinte
aprox.
400 m
Chocolateria Reine Astrid si Ceainaria Triangle D'Or (en)
aprox.
433 m
Piccolo Mondo
aprox.
569 m
Hotel si Restaurant Piccolo Mondo
aprox.
577 m
Shaorma Non-Stop
aprox.
587 m
Oliviers Mediteraneean
aprox.
592 m
Jerry's Pizza - 1 Mai
aprox.
600 m
Pizza Rock'n'Roll
aprox.
606 m
Restaurantul Beirut
aprox.
606 m
Beirut
aprox.
617 m
Jadoo
aprox.
623 m
The Place
aprox.
509 m
The Dubliner
aprox.
906 m
Casa Mara
aprox.
1438 m
Le Cafe Inmedio
aprox.
1518 m
Doncafe Brasserie
aprox.
1793 m
Lucky Poin
aprox.
1798 m
Filos Pub
aprox.
1828 m
Roxy Pub
aprox.
1905 m
CAFEA - La Haig Keskerian
aprox.
614 m
Seneca AntiCafe
aprox.
666 m
French Bakery
aprox.
893 m
Starbucks
aprox.
1206 m
Gloria Jean's
aprox.
1228 m
Cafe Antipa
aprox.
1293 m
Meron Coffee
aprox.
1420 m
The King
aprox.
1433 m
Bordo Caffe1
aprox.
1451 m
Sufrageria cu Jocuri
aprox.
1546 m
Cafe Centro
aprox.
1563 m
Admiral Cafe
aprox.
1614 m
Golf&Coffee
aprox.
1654 m
Venchi 1878
aprox.
1730 m
Ramayana Cafe
aprox.
1908 m
Clubul Taranului
aprox.
1123 m
Zodiac
aprox.
1213 m
Bar Adesim
aprox.
1426 m
El Bistro
aprox.
1775 m
Raiffeisen Bank - Agentia Ion Mihalache
aprox.
355 m
Bankpost
aprox.
399 m
Garanti Bank
aprox.
399 m
Bancpost
aprox.
404 m
ING Mihalache
aprox.
409 m
BCR
aprox.
433 m
Millenium Bank
aprox.
438 m
Banca Romaneasca
aprox.
443 m
Alpha Bank
aprox.
447 m
UniCredit Bank - Ag. Domenii
aprox.
451 m
Banca Transilvania - Ag. 1 Mai
aprox.
540 m
Banca Transilvania - Ag. Domenii
aprox.
589 m
BRD
aprox.
650 m
Marfin Bank
aprox.
661 m
CEC Bank
aprox.
674 m
Zona 1 Mai dispune nu doar de o poziție privilegiată față de centrul Capitalei, dar este și conectată cu alte cartiere ale orașului prin diverse mijloace de transport în comun. Poți să iei metroul de la stațiile aflate de-a lungul Căii Grivița, mai exact 1 Mai, Grivița și Basarab. Toate acestea se află pe Magistrala M4 care leagă Gara de Nord de zona Străulești. Astfel, vei ajunge de la stația Basarab la Piața Victoriei chiar și în 5 minute. Iar în zona Eroilor în circa 10 minute. Alte mijloace de transport în comun la care ai putea să apelezi dacă te muți în zona 1 Mai sunt tramvaiul 42, care leagă Piața Presei de Gara de Nord și tramvaiul 41, care ajunge în Drumul Taberei și în Ghencea. Consultă harta pentru a vedea care sunt cele mai apropiate stații de locuința de care ești interesat.
Una dintre principalele unități de învățământ din zona 1 Mai este Colegiul Național "Ion Neculce". Acesta este amplasat în apropierea Cimitirului evreiesc Filantropia. Colegiul poate fi potrivit dacă îți dorești ca încă din clasa a V-a copilul tău să învețe intensiv o limbă străină, având în vedere că acesta dispune de clase cu program intensiv în limba germană și italiană. Găsești pe hartă și alte unități de învățământ aflate în zona 1 Mai și în vecinătatea acesteia.
Ești interesat de o locuință în zona 1 Mai și te gândești unde ai putea să-ți faci cumpărăturile odată ce te muți acolo? Vei avea în zonă Piața Ion Mihalache și în apropiere Piața Domenii. Poți să ajungi destul de ușor la magazinele Kaufland sau Penny de pe Bulevardul Bucureștii Noi, iar cu mașina ajungi în câteva minute la complexul comercial Colosseum Retail Park de pe Șoseaua Chitilei. Cele mai apropiate mall-uri vor fi AFI Cotroceni, Băneasa Shopping City sau Promenada. Distanța pe care va trebui să o parcurgi pentru a ajunge la acestea va fi destul de mare, motiv pentru care vei merge la ele doar cu mașina. Află unde îți vei putea face cumpărăturile dacă te muți în zona 1 Mai consultând harta.
Dacă ai mașină sau te gândești să îți iei carnetul în curând și să nu mai circuli cu mijloacele de transport în comun, atunci trebuie să știi că traficul rutier în zona 1 Mai este concentrat pe marile artere de circulație, precum bulevardele Ion Mihalache și Banu Manta, Calea Grivița și Șoseaua Nicolae Titulescu. La marginea acestei zone se află, totodată, Pasajul Basarab care unește Sectorul 1 de Sectorul 6 și face parte din inelul interior de circulație al Bucureștiului, dar și Podul Grant care leagă Bulevardul Ion Mihalache de cartierul Crângași. La orele de vârf, traficul este de multe ori îngreunat. Îți recomandăm, totodată, să verifici dacă poți închiria un loc de parcare pentru mașina ta în apropierea locuinței de care ești interesat. Pentru a face acest lucru trebuie să te adresezi Serviciului Parcaje din cadrul ADP Sector 1. Consultă harta și află unde sunt localizate principalele parcări din zonă.
Dacă alegi să te muți în zona 1 Mai vei avea relativ aproape Parcul Regele Mihai I al României (fostul Herăstrău). Aici te vei putea plimba alături de familie în weekend-uri sau vei putea petrece câteva ore la terasă cu prietenii. Un alt parc aflat în vecinătatea acestei zone este Kiseleff, iar lângă el găsești trei muzee importante din Capitală - Antipa, Muzeul Țăranului Român și Muzeul de Geologie. Poți face aici o vizită educativă alături de copilul tău. Și Parcul Bazilescu se află în apropiere. Poți să ajungi rapid la el cu troleibuzul 97. Nici Centrul Expozițional Romexpo, unde sunt organizate periodic diferite concerte, expoziții și târguri, nu se va afla departe de noua ta locuință. O plimbare cu bicicleta în zona Parcului Regele Mihai I al României poate fi o altă variantă bună de relaxare în timpul liber. Ajungi destul de repede și pe Calea Victoriei. Și aici ai o pistă specială pentru bicicliști, dar poți să faci un popas și la una dintre cafenelele din zonă. Dacă preferi să-ți petreci ziua la cumpărături, atunci vei ajunge cu mașina în câteva minute la mall-ul Băneasa Shopping City. Consultă harta și află ce alte opțiuni de petrecere a timpului liber vei avea la dispoziție, dacă te muți în zona 1 Mai.
În zona 1 Mai și în apropierea acesteia ai la dispoziție mai multe unități sanitare la care poți apela. Amintim în acest sens Spitalul Clinic Sfânta Maria, de pe Bulevardul Ion Mihalache, spitalele Elias și CF 2 din zona Domenii și MedLife Life Memorial Hospital de pe Calea Griviței. Găsești pe hartă și alte clinici private la care ai acces în împrejurimi.
Găsești câteva restaurante pe Bulevardul Ion Mihalache și în apropierea Parcului Regele Mihai I, în special în Piața Charles de Gaulle. Ajungi destul de repede și în Piața Victoriei unde ai la dispoziție câteva restaurante de tip fast food - McDonald"™s, Subway, Springtime - și două cafenele Starbucks. Dacă pornești apoi pe Calea Victoriei ai la dispoziție numeroase localuri, inclusiv terase. Cu mașina poți să ajungi rapid și la mall-ul Băneasa Shopping CIty unde ai la dispoziție numeroase restaurante, fast food-uri, cafenele și cofetării. Aruncă o privire pe hartă și vezi unde poți lua masa în oraș, dacă te muți în zona 1 Mai.
În zona intersecției dintre Bulevardul Ion Mihalache și Calea Griviței găsești mai multe bancomate - OTP Ban, BRD, BCR. Alte sucursale bancare și ATM-uri sunt disponibile pe Bulevardul Ion Mihalache și în zona Piața Victoriei. Consultă harta. Află ce alte opțiuni ai în apropierea casei.
Înainte să pleci...
Ești sigur că ai văzut și aceste proprietăți?
3.750 € / lună
București, Aviației
186 mp utili
Bloc de apartamente
3.500 € / lună
București, Iancu Nicolae
100 mp utili
Bloc de apartamente
3E
3.625 € / lună
București, Aviației
145 mp utili
Casă/Vilă
3E
Creează alertă
Salvează căutarea ca să primești pe email ultimele anunțuri publicate
Spații comerciale cu 4+ camere de închiriat în zona Turda, Sector 1
Cere detalii prin email
*
*
*
*
Detaliile tale de contact vor fi partajate cu Iproperty Investment