15

Spatii comerciale de inchiriat in Galeriile Belvedere

4.800 - 12.000 € + TVA / lună
30 € + TVA / mp / lună

Barbu Văcărescu, București

Sup. utilă / mp. utili:
4.000 mp
Tip prop.:
Showroom
An constr.:
2024 (Există)
  • • Locație exactă

Descriere spațiu comercial

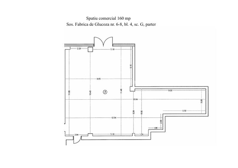
Inchiriere spatii comerciale la parterul Galeriilor Belvedere, cel mai important proiect rezidential de pe Fabrica de Glucoza, situat in partea de nord a Bucurestiului, in apropiere de Lacul Tei. Spatiile comerciale au suprafatele de: 160 m2 si 400 m2. Spatiile propuse spre inchiriere au inaltimea de 6,2 metri, se predau la gri, iar amenajarea lor cade in sarcina chiriasului. Acestea sunt de tip open space, concepute cu fatade moderne din sticla, iluminate. Vecinatatile au diverse functii comerciale precum showroom-ul de mobila Mobexpert, supermarketul Kaufland, clinica medicala privata Medicover Pipera si firma de curierat Fan Courier. In Galeriile Belvedere si-au inceput activitatea 15 chiriasi cu diverse orientari comerciale, majoritatea avand profil mobilier, accesorii si decoratiuni interioare de lux, printre care: Casa Magica, Natuzzi, Sophia, Art Granit, dar si banca Libra Bank, supermarketul Mega Image, Bang&Olufsen, Sweat Fitness, ABC Car Showroom Auto etc. Accesul cu autoturismul este facil si se realizeaza din Strada Barbu Vacarescu, Autostrada A3 Bucuresti-Ploiesti si Soseaua Petricani. Parcarea se realizeaza in fata fiecarui spatiu comercial, se pot aloca 5-10 locuri pentru fiecare spatiu, la pretul de 100 euro/loc/luna. Zona rezidentiala este in plina dezvoltare precum One High District, One Club Lake, Yacht Kids, Laguna Residence, Nordis, Metas, Medusa Home by Versace, UpGround Residence etc. Spatiile comerciale sunt disponibile imediat si se inchiriaza la pretul de 30 euro/m2/luna.
Citește mai mult Citește mai puțin
Modernizat

Detalii spațiu comercial

ID anunț: X5F8041DP Copiat! 212324009 Copiat!
Actualizat în: 03 Martie 2026
Nume proprietate: Galeriile Belvedere
Regim înălțime: P
Stadiu construcție: Există

Vecinătăți:

Fabrica de Glucoza

Subspații disponibile

Minim de inchiriat

Mai multe detalii despre aceasta oferta pe platforma SPATII-COMERCIALE-ROMANIA.RO, alaturi de alte peste 250 de spatii comerciale reprezentative prezentate intr-un mod transparent, cu localizare exacta.

Chirie / u.m. / lună:
30 EUR/mp (total: 4800 EUR/lună) + TVA
Suprafață disponibilă:
160
Disponibilitate spațiu:
imediat
Etaj:
Parter
Vitrină:
Da
Posibilitate parcare:
Da

Maxim de inchiriat

Mai multe detalii despre aceasta oferta pe platforma SPATII-COMERCIALE-ROMANIA.RO, alaturi de alte peste 250 de spatii comerciale reprezentative prezentate intr-un mod transparent, cu localizare exacta.

Chirie / u.m. / lună:
30 EUR/mp (total: 12000 EUR/lună) + TVA
Suprafață disponibilă:
400
Disponibilitate spațiu:
imediat
Etaj:
Parter
Vitrină:
Da
Posibilitate parcare:
Da

Puncte de interes

Mijloace transport
metro-station
Metrorex. Stația Pipera (M2)(1987)
Stații metrou aprox. 319 m
metro-station
Pipera (M2)
Stații metrou aprox. 329 m
tram-station
Electronica
Stații tramvai aprox. 380 m
bus-station
Soseaua Fabrica de Glucoza statie 16, 36
Stații autobuz aprox. 544 m
Școală
school
Colegiul Tehnic Edmond Nicolau, fostul Electronica
Școli aprox. 846 m
school
Grupul Scolar Industrial Constantin Brancusi (en)
Școli aprox. 897 m
kindergarten
Gradinita nr. 7
Gradinițe aprox. 1142 m
university
Facultatea de Cai Ferate Drumuri si Poduri, Facultate de Geodezie
Universități aprox. 1662 m
Recreere
restaurant
Q'inn
Restaurant aprox. 174 m
supermarket
Carrefour
Supermarket aprox. 399 m
park
Parc
Parcuri aprox. 618 m
sports-ground
Teren sportiv
Terenuri sport aprox. 844 m

Proprietăți recomandate

Detalii de contact

Abonează-te la newsletter să fii primul care primește cele mai noi recomandări de proprietăți și sfaturi de la experți.

CONTACT

Creează alertă

Salvează căutarea ca să primești pe email ultimele anunțuri publicate

Spații comerciale de închiriat în zona Barbu Văcărescu, Sector 2