Va propunem spre inchirere spațiu comercial situat într-o zonă excelentă, pe Nerva Traian, Sector 3, ideal pentru diverse activități comerciale.
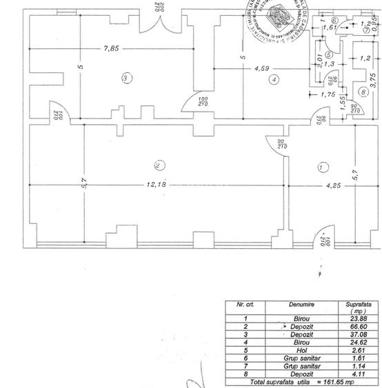
Suprafață utilă: 80 mp
Situat la parter de bloc
An construcție: 1990
Dotări și avantaje:
- 2 grupuri sanitare
- Curent trifazic – ideal pentru activități comerciale diverse
- Spațiu versatil, ușor de compartimentat
Condiții de închiriere:
Preț: 2.600 €/lună
Garanție: 1 + 1 (o lună garanție + o lună chirie în avans)
Contract minim: 2 ani
Comision agenție: 100% din prima lună de chirie
Vizionarea spatiului se face in baza unui contract de vizionare
Pentru mai multe detalii sau programarea unei vizionări, nu ezitați să mă contactați!
TIP IMOBLIO
Sediul central - Timișoara
Bulevardul Victor Babeș nr. 2, 300230, Timișoara, România
Tel: +40.374.40.44.98 / Fax: +40.256.401.179
Email: suport@imobiliare.ro
Luni - Vineri 08:00 - 20:00
Punct de lucru - București: Iride Business Park, Bld. Dimitrie
Pompeiu 9-9A, Clădirea B2B,
020335, Sector 2, București, România
CONTACT
Sediul central - Timișoara
Bulevardul Victor Babeș nr. 2, 300230, Timișoara, România
Tel: +40.374.40.44.98 / Fax: +40.256.401.179
Email: suport@imobiliare.ro
Luni - Vineri 08:00 - 20:00
Punct de lucru - București: Iride Business Park, Bld. Dimitrie
Pompeiu 9-9A, Clădirea B2B,
020335, Sector 2, București, România
Statia Lucian Blaga linia 124, N111, N103, N104, 104, 123
aprox.
1147 m
Statie RATB
aprox.
1201 m
Mihai Bravu
aprox.
1210 m
Statia Pod Mihai Bravu, linia 223, 124
aprox.
1218 m
Soseaua Mihai Bravu
aprox.
1227 m
Capat Piata Unirii 2 linii : 783 (express).
aprox.
1241 m
Statia Bd. Tineretului / Soseaua Mihai Bravu, linia 133, 223, 312, 313, 381, 634, N105
aprox.
1294 m
RATB: Penes Curcanul: Autobuz 124
aprox.
1331 m
Școala 81
aprox.
216 m
Scoala generala nr. 81
aprox.
229 m
Scoala Generala nr.81
aprox.
229 m
Liceul Petru Rares
aprox.
551 m
Scoala nr.79 "Academician Nicolae Teodorescu"
aprox.
598 m
Colegiul National "Ion Creanga"
aprox.
618 m
B.C.A. (en)
aprox.
619 m
Liceul Teologic Penticostal "Emanuel"
aprox.
646 m
scoala populara de arta
aprox.
654 m
Scoala de Arta
aprox.
655 m
Scoala Nr. 95
aprox.
781 m
Scoala nr 95
aprox.
781 m
Scoala Generala nr. 95
aprox.
781 m
Scoala Nr. 79 (en)
aprox.
821 m
Scoala nr. 79
aprox.
821 m
Universitatea Nicolae Titulescu
aprox.
397 m
Universitatea Crestina "Dimitrie Cantemir"
aprox.
406 m
Universitatea "Nicolae Titulescu" - Bucuresti
aprox.
442 m
Universitatea Titu Maiorescu - Corp M
aprox.
459 m
Universitatea "Titu Maiorescu"
aprox.
498 m
Universitatea Titu Maiorescu
aprox.
498 m
Universitatea Titu Maiorescu - Rectorat
aprox.
543 m
Academia de Studii Economice
aprox.
1133 m
Academia de Studii Economice: Facultatea de Management - Administratie Publica
aprox.
1139 m
Institutul Bancar Român
aprox.
1142 m
Facultatea de Teologie Ortodoxa
aprox.
1231 m
Universitatea Hyperion (en)
aprox.
1852 m
Universitatea Hyperion
aprox.
1856 m
Gradinita (progr. prelungit) Aleea Borcea - Str. Ruginoasa
aprox.
550 m
Gradinita "Scufita Rosie"
aprox.
579 m
Gradinita de copii nr.161
aprox.
793 m
Gradinita Plusica
aprox.
843 m
Gradinita Barba Cot
aprox.
849 m
Gradinita de Copii nr.30 "Copiii soarelui
aprox.
874 m
Gradinita
aprox.
882 m
Gradinita cu program prelungit Copiii Soarelui
aprox.
1108 m
Cresa Micii Poznasi
aprox.
1113 m
Gradinita Prikindel
aprox.
1527 m
Gradinita nr.192, "Pisicile Aristocrate"
aprox.
1560 m
Gradinita nr. 192 (Pisicile aristocrate)
aprox.
1561 m
Gradinita Kogaion
aprox.
1631 m
Gradinita nr. 224
aprox.
1641 m
Gradinita nr.224, "Vestitorii Primaverii"
aprox.
1644 m
Nerva Center
aprox.
145 m
Mega Image - Apahida
aprox.
206 m
Profi Non-Stop Vacaresti
aprox.
282 m
Supermarket Fonzi
aprox.
327 m
Supermarket Sinbad
aprox.
343 m
MGV Green Expres
aprox.
345 m
Shop & Go
aprox.
468 m
MGV Supermarket Zeno
aprox.
534 m
Penny Market
aprox.
554 m
Giulio Pantofi la comanda
aprox.
566 m
ClicMarket
aprox.
628 m
Mega Image
aprox.
653 m
Vio-Flor Prodservicom
aprox.
678 m
Mega Image
aprox.
819 m
Profi
aprox.
831 m
Bucharest, Calea Vitan nr. 8, Bl V51, near VITAN Mall
aprox.
860 m
Parcare
aprox.
21 m
Parcare
aprox.
194 m
Parcare
aprox.
272 m
Parcare
aprox.
363 m
Parcare
aprox.
382 m
Parcare
aprox.
400 m
Parcare
aprox.
401 m
Parcare
aprox.
465 m
Parcare
aprox.
580 m
Parcare
aprox.
636 m
Parcare
aprox.
642 m
Parcare
aprox.
682 m
Parcare
aprox.
714 m
Parcare privata
aprox.
751 m
Parcarea Bibliotecii Nationale
aprox.
809 m
Park (en)
aprox.
61 m
Parc
aprox.
71 m
Parc
aprox.
338 m
Parc
aprox.
402 m
Parc
aprox.
412 m
parc
aprox.
418 m
Parc
aprox.
431 m
Parculet si teren de joaca
aprox.
448 m
Parc
aprox.
448 m
parculet
aprox.
458 m
Parculet (en)
aprox.
463 m
Parc
aprox.
534 m
Parc
aprox.
539 m
Parculet nou
aprox.
550 m
Parc
aprox.
641 m
Teren sportiv
aprox.
246 m
Teren sportiv
aprox.
269 m
Teren sportiv
aprox.
306 m
Teren sportiv
aprox.
1135 m
Teren sportiv
aprox.
1143 m
Teren sportiv
aprox.
1149 m
Teren sportiv
aprox.
1157 m
Teren sportiv
aprox.
1187 m
Teren sportiv
aprox.
1212 m
Teren sportiv
aprox.
1225 m
Teren sportiv
aprox.
1304 m
Teren sportiv
aprox.
1332 m
Teren sportiv
aprox.
1384 m
Teren sportiv
aprox.
1389 m
Teren sportiv
aprox.
1440 m
Piata Bucur
aprox.
616 m
Piata Bibescu
aprox.
1322 m
Piața Sfântul Anton
aprox.
1588 m
Piata Timpului
aprox.
1600 m
Piata Roma
aprox.
1732 m
Piata Natiunilor Unite
aprox.
1916 m
Piața Regina Maria
aprox.
1918 m
Farmacia Bucuresti Tehnoplus Farm
aprox.
290 m
Help Net
aprox.
408 m
Farmacia Farmadex
aprox.
497 m
Farmacie
aprox.
554 m
Farmacia Eliana
aprox.
653 m
Leni Farm
aprox.
654 m
Farmacia Belladonna 63
aprox.
656 m
Help Net Farma
aprox.
657 m
Farmacia Belladonna 17
aprox.
657 m
Catena
aprox.
690 m
Tinos-Farm
aprox.
754 m
Orbit 93
aprox.
811 m
2na
aprox.
818 m
Alma Farm Com 95
aprox.
854 m
Farmacia Denis
aprox.
915 m
Plastic Surgery Clinic (en)
aprox.
351 m
SYNEVO
aprox.
568 m
Maternitatea Bucur
aprox.
605 m
Medicover (en)
aprox.
757 m
Clinica Polisano
aprox.
758 m
Biostom Bucuresti
aprox.
765 m
Life Med
aprox.
772 m
Eurodent
aprox.
808 m
Clinica Audionova
aprox.
926 m
Europe EYE Hospital (en)
aprox.
952 m
Europe Eye
aprox.
952 m
Medline
aprox.
982 m
Spitalul de dermato-venerologie "Prof. Dr. Scarlat Longhin" (ABANDONAT)
aprox.
1081 m
Policlinica vitan
aprox.
1084 m
Spectrum Clinique - Clinica de Oftalmologie
aprox.
1087 m
Manasra
aprox.
57 m
Blue's lounge & pub
aprox.
117 m
Adress
aprox.
126 m
Restaurant Premium Events
aprox.
139 m
Bistro
aprox.
206 m
Pane e Vino
aprox.
231 m
Restaurant Timpuri Noi + Autoservirea
aprox.
239 m
Efes
aprox.
299 m
Chinese Restaurant (en)
aprox.
314 m
Restaurant Sare si Piper
aprox.
367 m
Sare si Piper - Salt 'n Pepper
aprox.
369 m
Cofetaria Opera
aprox.
461 m
Creative Food
aprox.
542 m
Pizza Zoom
aprox.
544 m
Restaurant Contesa
aprox.
572 m
Quartier
aprox.
80 m
Cafe Boulevard
aprox.
457 m
Maroon Caffe
aprox.
531 m
Zebra Caffe
aprox.
604 m
gloria jeans coffee
aprox.
797 m
Sfera caffe
aprox.
903 m
Kahve Dunyasi
aprox.
1017 m
Cafe Torino
aprox.
1026 m
Starbucks
aprox.
1098 m
Bistro 33 Cafe
aprox.
1106 m
Miau
aprox.
1156 m
La Trenulete
aprox.
1283 m
Adior Cafe lounge
aprox.
1292 m
Gio Cafe
aprox.
1395 m
High Class
aprox.
1406 m
Kaffa Pub
aprox.
500 m
The 1st Pub
aprox.
719 m
Forno d'oro
aprox.
924 m
Roof
aprox.
945 m
The Temple
aprox.
971 m
Beraria Berestoika
aprox.
1028 m
The Harp
aprox.
1191 m
Pizzeria Classic
aprox.
1192 m
Jukebox
aprox.
1307 m
Carol Cafe
aprox.
1421 m
Long Fong
aprox.
1517 m
Club Fabrica
aprox.
1524 m
Manasia Hub
aprox.
1612 m
La Scena
aprox.
1633 m
Kulturhaus
aprox.
1643 m
Pe baricade
aprox.
914 m
Bar
aprox.
1071 m
Nargila Grill&Bar
aprox.
1220 m
BarFly
aprox.
1258 m
Network Lounge
aprox.
1606 m
Vecchio
aprox.
1624 m
City Grill Covaci
aprox.
1629 m
True Social Club
aprox.
1678 m
Up Club
aprox.
1679 m
Pure
aprox.
1679 m
Club Expirat
aprox.
1684 m
B Bar
aprox.
1697 m
The Glam Club
aprox.
1697 m
1974 Niste Domni si Fiii
aprox.
1702 m
Sankt Petersburg Pub
aprox.
1704 m
Sucursala CEC Bank Timpuri Noi (en)
aprox.
99 m
Pireus Bank
aprox.
204 m
Piraeus Bank
aprox.
206 m
BRD Nerva Traian
aprox.
269 m
BCR Nerva Traian
aprox.
399 m
Raiffeisen Bank Nerva Traian
aprox.
422 m
UniCredit Bank - Ag. Norilor
aprox.
596 m
Banca Carpatica
aprox.
602 m
Banca Țiriac
aprox.
610 m
Raiffeisen Bank
aprox.
642 m
ING Nerva Traian
aprox.
655 m
BCR
aprox.
657 m
Banca Transilvania - Ag. Tineretului
aprox.
670 m
Sucursala BCR Gheorghe Sincai
aprox.
678 m
ING Self Bank
aprox.
700 m
Dacă te vei muta în această zonă, vei avea la dispoziție mai multe autobuze și tramvaie care te vor ajuta să te deplasezi către centrul orașului și nu numai. Printre acestea amintim tramvaiul 19 care oferă o legătură directă cu sud - estul Bucureștiului, tramvaiul 27 cu care te poți deplasa până la Piața Unirii și autobuzul 124 al cărui traseu ajunge în zona Eroilor. Cu autobuzul 133 ajungi rapid la Parcul Tineretului și la Gara Basarab. Vei avea, totodată, în apropierea viitoarei tale locuințe două stații de metrou - Timpuri Noi și Mihai Bravu. Ambele îți oferă posibilitatea de a lua trenuri care circulă atât pe magistrala 1 Dristor - Pantelimon, cât și pe magistrala 3 Preciziei - Anghel Saligny. Consultă harta și vezi care vor fi cele mai apropiate stații de viitoarea ta locuință.
Dacă te vei muta în zona Vitan Mall - Nerva Traian - Mihai Bravu, vei avea la doi pași de casă mai multe unități de învățământ. Printre acestea amintim Grădinița Brândușa de pe Strada Brândușelor, Școala Gimnazială nr. 84 situată lângă Complexul Comercial Prosper și Școala Gimnazială nr. 81 de pe Strada Nerva Traian. În apropierea stației de metrou Timpuri Noi se află sediile mai multor instituții private de învățământ superior. Este vorba despre Universitatea "Titu Maiorescu", Universitatea "Nicolae Titulescu" și despre Universitatea Creștină "Dimitrie Cantemir". Vezi ce hartă ce alte unități de învățământ există în zona Vitan Mall - Nerva Traian - Mihai Bravu.
Vrei să te muți în zona Vitan Mall - Nerva Traian - Mihai Bravu și te gândești deja unde îți vei putea face cumpărăturile? În primul rând, vei avea la dispoziție numeroase magazine de cartier, având în vedere faptul că multe dintre blocurile din această parte a orașului dispun de spații comerciale la parter. București Mall, primul complex comercial de acest tip din Capitală, poate fi o altă opțiune excelentă. Cu mașina ajungi destul de ușor și la mall-urile ParkLake și Sun Plaza. Vrei să cumperi legume și fructe proaspete? Atunci trebuie să știi că o piață este amplasată pe Strada Foișorului. Un magazin Lidl a fost deschis în zona Pasajului Mihai Bravu. În plus, în apropiere vei avea și Complexul Comercial Prosper și un magazin de bricolaj. În apropiere ai la dispoziție și o serie de magazine cu materiale de construcții sau finisaje. La doi pași de toate acestea găsești și un complex comercial ce include mai mulți retaileri, inclusiv două pet shop-uri. Ajungi destul de rapid și la hipermarketul Auchan Vitan și la Unirea Shopping Center. Află unde sunt localizate toate acestea de pe hartă.
De multe ori, la orele de vârf, vei întâmpina aglomerație în trafic pe Calea Vitan sau pe celelalte artere principale din această zonă, motiv pentru care este posibil să ai unele dificultăți în găsirea unui loc de parcare. Îți recomandăm, totodată, să apelezi la Direcția Generală de Impozite și Taxe Locale Sector 3 pentru a închiria un loc de parcare în apropierea locuinței tale. Dacă optezi pentru un apartament într-un ansamblu rezidențial nou, atunci discută direct cu dezvoltatorul și vezi ce ofertă îți pune la dispoziție. Astfel, te vei asigura că nu mai pierzi timpul seara căutând un loc de parcare. Consultă harta și află ce opțiuni ai în zona Vitan Mall - Nerva Traian - Mihai Bravu.
În zona Vitan Mall - Nerva Traian - Mihai Bravu vei avea la dispoziție câteva spații verzi de mici dimensiuni, amenajate cu locuri de joacă pentru copii, cel mai mare dintre acestea fiind Parcul Emil Gârleanu. Vei ajunge însă destul de rapid de aici la Parcul Alexandru Ioan Cuza (fostul IOR) sau la Parcul Tineretului. O altă variantă bună pentru cei care își doresc să facă o plimbare prin natură este o vizită în Parcul Natural Văcărești la care ajungi foarte ușor. Pe marginea deltei te poți plimba chiar și cu bicicleta. Multe dintre blocurile situate la principalele artere de circulație din această zonă dispun de spații comerciale la parter, într-unele dintre acestea fiind deschise restaurante și baruri. Pentru mai multă diversitate, vei avea la o aruncătură de băț Centrul Vechi al Bucureștiului. În zona Pasajului Mărășești vei putea merge la un spectacol pus în scenă de echipa Teatrului de Operetă și Musical "Ion Dacian". Preferi să te relaxezi la film? Un cinematograf este disponibil în București Mall - primul centru comercial de acest tip din oraș, situat pe Calea Vitan. O altă opțiune poate fi găsită în mall-ul ParkLake din zona Parcului Alexandru Ioan Cuza. Vezi ce alte alternative de petrecere a timpului liber vei avea dacă te muți în zona Vitan Mall - Nerva Traian - Mihai Bravu.
Principalele unități sanitare din această zonă sunt Policlinica Vitan Dudești și spitalul privat de oftalmologie Westeye Hospital. Unul dintre cele mai apropiate spitale de stat la care vei avea acces, dacă te vei muta aici, este Spitalul Clinic "Dr. Victor Babeș". O altă opțiune poate fi și Spitalul Clinic de Urgență "Sfântul Ioan" de la Șoseaua Vitan-Bârzești. O serie de unități medicale sunt disponibile și pe Șoseaua Berceni la care poți să ajungi în doar câteva minute cu mașina. Dacă preferi o clinică privată, atunci printre cele mai apropiate se numără clinica Regina Maria Mărășești sau Monza Metropolitan Hospital. Găsești pe harta de mai jos și farmaciile disponibile în zona Vitan Mall - Nerva Traian - Mihai Bravu.
Câteva restaurante găsești pe Strada Nerva Traian, iar pe Calea Vitan ai la dispoziție mai multe fast food-uri. Un food court cu restaurante destul de diverse găsești, de asemenea, la etaj în București Mall. Pentru pâine caldă, o gustare sau o prăjitură merită să încerci și brutăria Koksal aflată la doi pași de mall. Dacă ești grăbit, poți să mergi repede până la drive through-ul KFC de pe Șoseaua Mihai Bravu sau la restaurantul McDonald"™s din Dristor de unde poți să-ți comanzi, de asemenea, mâncarea direct din mașină. Alte food court-uri ai în apropiere la mall-urile ParkLake și Sun Plaza, dacă nu te deranjează să mergi câteva minute cu mașina. Ajungi extrem de repede din această zonă și în Centrul Vechi al orașului unde găsești restaurante și terase pentru toate gusturile. Vezi ce alte restaurante găsești în zona Vitan Mall - Nerva Traian - Mihai Bravu și în vecinătatea acesteia consultând harta.
Ai nevoie de o bancă sau de un ATM? Pe Strada Nerva Traian găsești un Libra Bank și o sucursală ING. În București Mall ai la dispoziție alte câteva opțiuni. Consultă harta pentru mai multe informații.
Înainte să pleci...
Ești sigur că ai văzut și aceste proprietăți?
2.600 € / lună
București, Nerva Traian
80 mp utili
Bloc de apartamente
8E
2.600 € / lună
București, Nerva Traian
80 mp utili
Bloc de apartamente
10E
2.560 € / lună
București, Nerva Traian
80 mp utili
Spațiu stradal
8E
Creează alertă
Salvează căutarea ca să primești pe email ultimele anunțuri publicate
Spații comerciale de închiriat în zona Nerva Traian, Sector 3
Cere detalii prin email
*
*
*
*
Detaliile tale de contact vor fi partajate cu Tip Imoblio