Zona Theodor Pallady sp 126 mp ideal supermarket clinica

1.999 € + TVA / lună
15.87 € + TVA / mp / lună

Theodor Pallady, București

Sup. utilă / mp. utili:
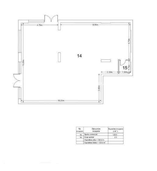
126 mp
Tip prop.:
Spațiu stradal
An constr.:
2023 (Există)
  • • Locație aproximativă

Descriere spațiu comercial

Imobiliar Expert Grup va propune spre inchirirere spatiu comercial in suprafata de 126 mp situat in zona Theodor Pallady. Spatiul dispune de toate utilitatile, se afla intr-o zona rezidentiala. Idela pentru Supermarket, clinica medicala, showroom, etc
Citește mai mult Citește mai puțin

Detalii spațiu comercial

ID anunț: X4KE141UN Copiat! 260377643 Copiat!
Actualizat în: 02 Februarie 2026
Suprafață utilă: 126 mp
Regim înălțime: P
Stadiu construcție: Există
Vitrină: Da

Utilități

Utilități
Curent Apă Canalizare Gaze
Comision
standard

Disponibilitate proprietate:

Imediat

Subspații disponibile

Chirie / u.m. / lună:
15.87 EUR/mp (total: 1999.62 EUR/lună) + TVA, Comision: standard
Suprafață disponibilă:
126
Disponibilitate spațiu:
închiriat
Etaj:
Parter
Vitrină:
Da

Puncte de interes

Mijloace transport
bus-station
statie tramvai STIROM :23- 27 - 40
Stații autobuz aprox. 1151 m
tram-station
STIROM
Stații tramvai aprox. 1159 m
metro-station
Metrorex.Stația Nicolae Teclu (M3)(2008)
Stații metrou aprox. 1207 m
train-station
Halta Titan Sud (23 August)
Stații tren aprox. 1927 m
Școală
kindergarten
Gradinita nr. 68
Gradinițe aprox. 663 m
kindergarten
Gradinita Nr. 160 - "soarelui"
Gradinițe aprox. 1231 m
school
Școala Nr. 82
Școli aprox. 1263 m
school
Scoala Generala nr. 82
Școli aprox. 1263 m
Recreere
park
Parc
Parcuri aprox. 799 m
supermarket
Auchan Titan
Supermarket aprox. 1116 m
sports-ground
Teren de fotbal
Terenuri sport aprox. 1177 m
hypermarket
Metro
Hipermarket aprox. 1202 m

Proprietăți similare

Spațiu industrial, în Theodor Pallady
1.800 € / lună
București, Theodor Pallady
Producție/Servicii
2008
Spațiu comercial, de 300 mp, în Theodor Pallady
2.100 € / lună
București, Theodor Pallady
300 mp utili
Spațiu stradal
1E
Spațiu comercial, 78.8 mp în Theodor Pallady
2.048 € / lună
București, Theodor Pallady
78,8 mp utili
Bloc de apartamente

Detalii de contact

Imobiliar Expert Grup

Elisabeta Chirca Agent Imobiliar

4.83(4 review-uri)

Imobiliar Expert Grup
PRO

Abonează-te la newsletter să fii primul care primește cele mai noi recomandări de proprietăți și sfaturi de la experți.

CONTACT

Creează alertă

Salvează căutarea ca să primești pe email ultimele anunțuri publicate

Spații comerciale de închiriat în zona Theodor Pallady, Sector 3