3

Spatiu Titan 85 mp zona Piata 1 Decembrie 1918

2.380 € / lună
28 € / mp / lună

Titan, București

Sup. utilă / mp. utili:
85 mp
Tip prop.:
Spațiu stradal
Niv.:
3
An constr.:
2007
  • • Locație aproximativă

Descriere spațiu comercial

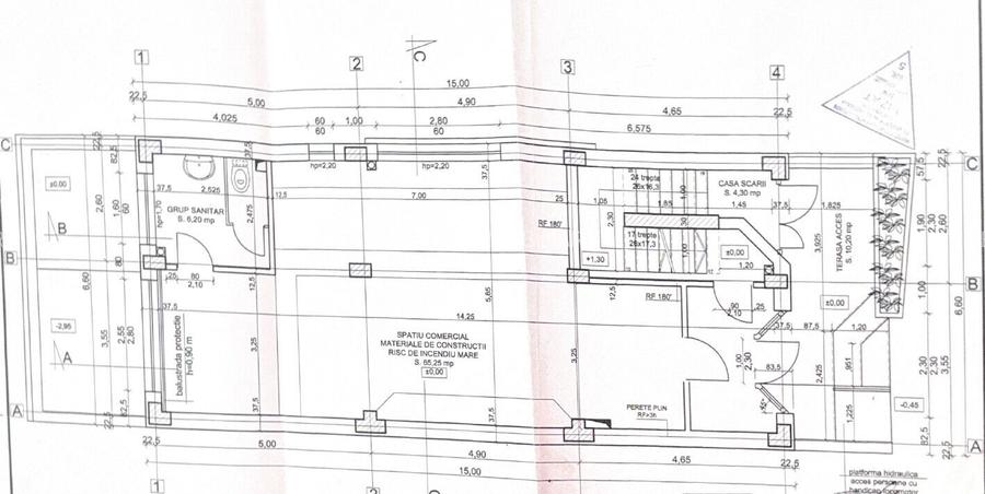
Va oferim spre inchiriere un spatiu comercial cu suprafata totala de 100 mp din care 85 mp utili situat in cartierul Titan ,zona cu vad comercial foarte bun,in apropiere de Piata 1 Decembrie.Zona cu vad pietonal intens circulata ,zona comerciala foarte aglomerata in imediata apropiere fiind foarte multe blocuri .Spatiul se afla la parterul unui imobil comercial S+P+3 etaje , intregul imobil fiind ocupat de societati comerciale.Spatiul dispune de toate utilitatile inclusiv curent 380 V,incalzire , deschidere la strada de 5 ml,2 usi de acces ( una secundara pe spate pentru aprovizionare cu marfa).Pretul de inchiriere este de 2400 euro/luna ,nu se percepe TVA .La semnarea contractului chiriasul va achita urmatoarele: 1 luna de chirie plus o luna de garantie pentru chirie si o luna de garantie pentru utilitati si comisionul agentiei de 50 %+TVA.Pretabil multiple activitati: centru medical,farmacie ,supermarket,pariuri ,sportive, cofetarie,salon infrumusetare,activitati HORECA,multiple alte activitati zona fiind una cu un vad comercial ridicat.Disponibil cu data de 1 Decembrie.
Citește mai mult Citește mai puțin
Nemodernizat

Detalii spațiu comercial

ID anunț: X5L8140AI Copiat! 271669837 Copiat!
Actualizat în: 22 Martie 2026
Nume proprietate: Spatiu Titan 85 mp zona Piata 1 Decembrie 1918
Regim înălțime: D+P+3E
Stadiu construcție: Există
Suprafață teren: 5 mp

Utilități

Amenajare străzi
Amenajare străzi Mijloace de transport în comun
Comision
50%+TVa

Puncte de interes

Mijloace transport
tram-station
Postavarului
Stații tramvai aprox. 45 m
tram-station
Postavarului
Stații tramvai aprox. 145 m
bus-station
Statia Bulevardul 1 Decembrie / Postavarului, linia 311, N103, 101,40
Stații autobuz aprox. 161 m
metro-station
Metrorex. Stația 1 Decembrie 1918(M3)(2008)
Stații metrou aprox. 703 m
Școală
school
Școala Nr. 82
Școli aprox. 257 m
school
Scoala Generala nr. 82
Școli aprox. 257 m
kindergarten
Gradinita nr. 231
Gradinițe aprox. 410 m
kindergarten
Gradinita 196
Gradinițe aprox. 423 m
Recreere
restaurant
restaurant casa anca
Restaurant aprox. 52 m
park
Loc de joaca
Parcuri aprox. 114 m
sports-ground
Teren sportiv
Terenuri sport aprox. 228 m
supermarket
Penny Market
Supermarket aprox. 314 m

Proprietăți recomandate

Detalii de contact

EXPERT IMOBILIAR

Alexandru Dedu

EXPERT IMOBILIAR

Abonează-te la newsletter să fii primul care primește cele mai noi recomandări de proprietăți și sfaturi de la experți.

CONTACT

Creează alertă

Salvează căutarea ca să primești pe email ultimele anunțuri publicate

Spații comerciale de închiriat în zona Titan, Sector 3