Rosetti!, Imobilul este compus din doua corpuri separate, un subsol generos si doua curti libere (150mp si 30mp), oferind multiple posibilitati de configurare pentru a se potrivi exact nevoilor afacerii dumneavoastra:
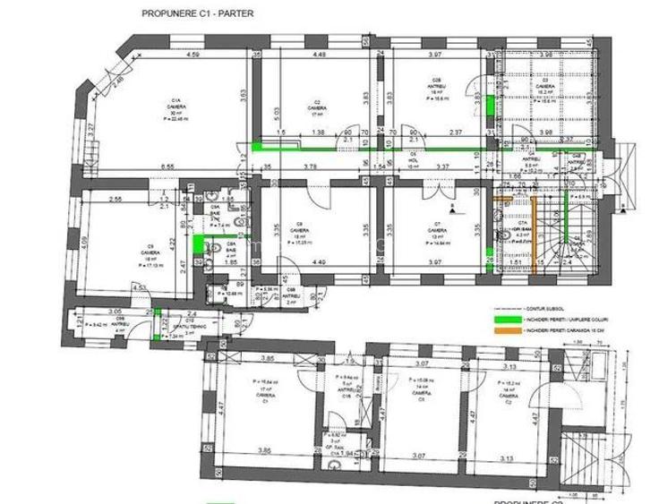
Plan parter:
Corp A – 215mp, cu 7 camere ideale pentru restaurant, cabinete medicale, camere sau birouri. Include un spatiu comercial cu acces la subsol si grup sanitar.
Corp B – 73mp, cu 3 camere pentru cabinete medicale, birouri sau bucataire..
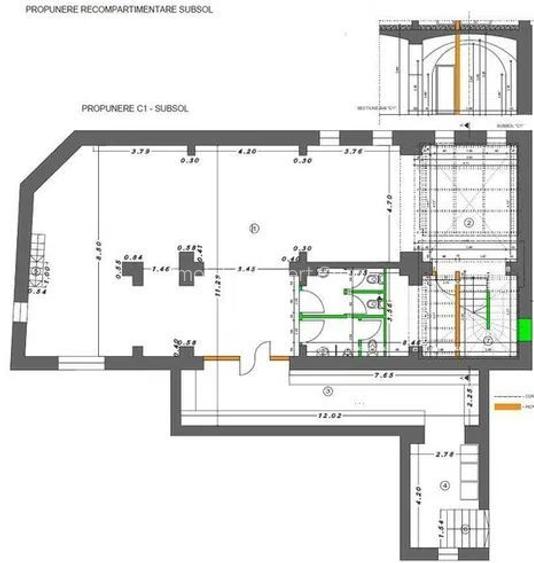
Plan subsol:
197mp, un spatiu impresionant cu 4 cai de evacuare, pereti din caramida aparenta, arcade si bolte, perfect pentru evenimente, sali de sport sau alte activitati. In perioada interbelica, acest spatiu a fost utilizat ca crama, adaugand un plus de caracter si istorie.
Plan Pod Mansardabil:
215mp open space - se vor instala ferestre de mansarda tip velux si se pot amenaja birouri, spatii locative pentru muncitori extracomunitari, spatiu multifunctional
Chiria afisata se negociaza in functie de nivelul de amenajarea dorit si investitia pe care dumneavoastra o faceti in amenajare, asigurandu-ne ca obtineti cel mai bun aranjament pentru afacerea dumneavoastra.
Fatada va fi refacuta in cursul anului 2025.
Sediul central - Timișoara
Bulevardul Victor Babeș nr. 2, 300230, Timișoara, România
Tel: +40.374.40.44.98 / Fax: +40.256.401.179
Email: suport@imobiliare.ro
Luni - Vineri 08:00 - 20:00
Punct de lucru - București: Iride Business Park, Bld. Dimitrie
Pompeiu 9-9A, Clădirea B2B,
020335, Sector 2, București, România
CONTACT
Sediul central - Timișoara
Bulevardul Victor Babeș nr. 2, 300230, Timișoara, România
Tel: +40.374.40.44.98 / Fax: +40.256.401.179
Email: suport@imobiliare.ro
Luni - Vineri 08:00 - 20:00
Punct de lucru - București: Iride Business Park, Bld. Dimitrie
Pompeiu 9-9A, Clădirea B2B,
020335, Sector 2, București, România
Statia Foisorul de Foc linia 133, 135, N108,69, 85, 79, 86
aprox.
994 m
Universitate (M2)
aprox.
570 m
Metrorex. Stația Universitate (M2)(1987)
aprox.
590 m
Statia Metrou Piata Universitatii(M2)Metrorex
aprox.
600 m
Statia Metrou Piata Universitatii(M2)Metrorex
aprox.
603 m
Metrorex. Stația Piața Unirii 2 (M2) (en)
aprox.
1043 m
Piata Unirii 2
aprox.
1140 m
Metrorex. Stația Piața Unirii 2 (M2)(1986)
aprox.
1147 m
Metrorex. Stația Piața Unirii 1 (M1) (en)
aprox.
1222 m
Piata Unirii 1
aprox.
1229 m
Statia Metrou Piata Romana(M2)Metrorex
aprox.
1230 m
Metrorex. Stația Piața Unirii 1 (M1),(M3)(1979)
aprox.
1271 m
Metrorex. Stația Piața Romană (M2)(1988)
aprox.
1271 m
Piata Romana (M2)
aprox.
1271 m
Statia Metrou Piata Romana(M2)Metrorex
aprox.
1316 m
Izvor
aprox.
1599 m
Statia Foisorul de Foc linii : 79,86
aprox.
993 m
Statia Calea Dorobantilor; Liniile:79, 86,
aprox.
1358 m
Statia Piata Romana linii : 79,86
aprox.
1440 m
Statia Mihai Bravu; Liniile:69, 85,
aprox.
1777 m
Statia Soseaua Mihai Bravu, linia 68,85
aprox.
1821 m
Statia Piata Iancului, linia 55
aprox.
1880 m
GRADINITA DE COPII NR. 8 "LICURICI"
aprox.
68 m
Grup Școlar "Dragomir Hurmuzescu"
aprox.
176 m
Scoala Ajutatoare nr. 1
aprox.
235 m
SNSPA - Cladirea CIC
aprox.
293 m
Scoala Generala "Iovan Ducici", Nr 71
aprox.
305 m
Goethe Institut (en)
aprox.
330 m
Colegiul Economic Hermes
aprox.
341 m
Amfiteatrul Sahia
aprox.
358 m
Cursuri Paleologu
aprox.
419 m
Schiller Institut
aprox.
450 m
Scoala Superioara Comerciala Nicolae Kretzulescu
aprox.
458 m
Grupul Scolar Industrial Unirea
aprox.
462 m
Scoala de muzica nr. 4
aprox.
472 m
Grupul Scolar Industrial Unirea (en)
aprox.
473 m
Centrul Educational IBSEN
aprox.
478 m
Gradinita nr.4 "Lizuca"
aprox.
386 m
Gradinita nr.203 (fosta Clementa)
aprox.
644 m
Gradinita numarul 257
aprox.
654 m
Gradinita nr. 203 program prelungit
aprox.
670 m
Gradinita Magica
aprox.
811 m
Gradinita
aprox.
881 m
Gradinita numarul 133
aprox.
939 m
Gradinita numarul 8
aprox.
953 m
Gradinita Ioanid
aprox.
1001 m
Ioanid
aprox.
1017 m
Gradinita Waldorf
aprox.
1254 m
Gradinita nr. 116
aprox.
1304 m
Amalia's Kindergarten (en)
aprox.
1313 m
Gradinita nr. 85
aprox.
1471 m
Gradinita Prikindel
aprox.
1526 m
Facultatea de Farmacie
aprox.
550 m
Facultatea de Farmacie/Pharmacy Faculty
aprox.
558 m
Facultatea de Chimie
aprox.
637 m
Universitatea din Bucuresti - Facultatea de Stiinte Politice
aprox.
639 m
Facultatea de Stiinte Politice
aprox.
640 m
Facultatea de litere (en)
aprox.
683 m
Facultatea de Limbi si Literaturi Straine
aprox.
685 m
UAUIM -Universitatea de Arhitectura si Urbanism Ion Mincu
aprox.
709 m
Facultatea de Istorie
aprox.
735 m
Facultatea de Stiinte
aprox.
776 m
Facultatea de Matematica-Informatica
aprox.
778 m
Rectoratul UMF "Carol Davila"
aprox.
796 m
University of Bucharest - Faculty of Foreign Languages and Literatures (en)
aprox.
836 m
Centrul de Limbi Straine Ariel
aprox.
843 m
Palatul Fundației Universitare "Carol I"
aprox.
955 m
Mega Image Paleologu
aprox.
172 m
OK Non-stop Supermarket (en)
aprox.
568 m
OK Non-Stop
aprox.
568 m
Pravalia Maestrului
aprox.
621 m
Mega Image - Icoanei
aprox.
701 m
Mega Image Rosetti Non-Stop
aprox.
798 m
Mega Image Concept Store
aprox.
829 m
Cocor
aprox.
874 m
BILLA - Cocor
aprox.
881 m
ilanplant
aprox.
902 m
Km 0
aprox.
960 m
Carrefour Unirii
aprox.
989 m
Carrefour Unirii Non-Stop
aprox.
995 m
Bacania Coco
aprox.
1011 m
Mega Image - Hala Traian
aprox.
1017 m
"METROPLIS CENTER"
aprox.
1917 m
Parcare
aprox.
159 m
Parcare
aprox.
172 m
Parcare
aprox.
182 m
Parcare
aprox.
395 m
Parcare cu plata
aprox.
423 m
Parcare
aprox.
452 m
Parcare
aprox.
481 m
Parcare
aprox.
507 m
Parcare privata
aprox.
571 m
Parcare
aprox.
587 m
Parcare
aprox.
613 m
Parcare cu plata
aprox.
617 m
Parcare
aprox.
652 m
Parcare
aprox.
701 m
Parcare cu plata
aprox.
703 m
Spatiu verde
aprox.
245 m
Parc
aprox.
346 m
Parc
aprox.
367 m
Parcul Colțea
aprox.
515 m
Parc
aprox.
555 m
Parc
aprox.
556 m
Parc
aprox.
561 m
Parc
aprox.
568 m
Parc
aprox.
569 m
Parc
aprox.
570 m
Rond Piața Universității
aprox.
570 m
Parc
aprox.
586 m
60 Minutes
aprox.
586 m
Parcul Izvorul Rece
aprox.
587 m
Parcul Izvorul Rece
aprox.
587 m
Piata Rosetti
aprox.
251 m
Piata Latina
aprox.
419 m
Piata Universitatii
aprox.
544 m
Piata Roma
aprox.
793 m
Piata Timpului
aprox.
849 m
Piata Revolutiei
aprox.
937 m
Piața Drapelului (Tricolorului)
aprox.
941 m
Piața Sfântul Anton
aprox.
985 m
Piata Natiunilor Unite
aprox.
1333 m
Piața Romană
aprox.
1454 m
Piata Bibescu
aprox.
1466 m
Piata Bucur
aprox.
1785 m
Piața Constituției
aprox.
1792 m
Piata Bucur Obor
aprox.
1870 m
Piata Iancului
aprox.
1967 m
Teren sportiv
aprox.
794 m
Teren sportiv
aprox.
917 m
Teren sportiv
aprox.
1550 m
Teren sportiv
aprox.
1716 m
Teren sportiv
aprox.
1745 m
Teren sportiv
aprox.
1773 m
Cabinet stomatologic (en)
aprox.
229 m
INGG Ana Aslan Spatarului nr. 15 (en)
aprox.
301 m
ProctoMed
aprox.
353 m
Centrul Medical Batistei
aprox.
453 m
Policlinica (en)
aprox.
481 m
Clinica Reumatologie "Dr. Ion Stoia"
aprox.
497 m
WORLD CLINIC - O viata fara alergii ! (en)
aprox.
526 m
Spitalul Colțea
aprox.
542 m
Art Implant
aprox.
670 m
Clinica de 10
aprox.
675 m
Medident Dental X-ray
aprox.
704 m
MediDent
aprox.
705 m
Optim Sano
aprox.
788 m
Clinica de oftalmologie Ama Optimex
aprox.
809 m
Institutul de Diabet NCPaulescu (en)
aprox.
811 m
HelpNet
aprox.
359 m
Farmacia Tarsis Impex
aprox.
376 m
Farmacia Artafarm
aprox.
378 m
Reteta
aprox.
400 m
Farmacon CO Impex
aprox.
477 m
Farmacia 2NA
aprox.
541 m
General Smart Farm
aprox.
588 m
belladona
aprox.
609 m
Farmacia Coltea
aprox.
613 m
Sensiblu
aprox.
625 m
Sensiblu
aprox.
659 m
Simidon
aprox.
659 m
Farmacia Apifarm
aprox.
685 m
Royal Blu Pharmacy
aprox.
727 m
Farmacia Carmen
aprox.
728 m
Naser 2
aprox.
99 m
La Dud
aprox.
100 m
Lente Armeneasca (en)
aprox.
107 m
edgar trattoria
aprox.
132 m
Shaorma / Falafel Alice
aprox.
160 m
fast food Non-Stop
aprox.
180 m
Jeunesse Bistro
aprox.
202 m
Piadinerie (en)
aprox.
222 m
GINO'S Restaurant & Playground Bar (en)
aprox.
244 m
Clasic restaurant , Tequila terrace (en)
aprox.
264 m
Cantina Arhitecturii
aprox.
284 m
Zepelin
aprox.
285 m
Rossetya
aprox.
293 m
Rossetya
aprox.
298 m
Restaurant Casa
aprox.
299 m
Lente Arcului
aprox.
122 m
T-zero
aprox.
207 m
T-zone
aprox.
207 m
The Living Room
aprox.
303 m
Carla Caffe
aprox.
321 m
Hobby Cafe
aprox.
385 m
Vesuvio Cafe
aprox.
524 m
Newton Caffe
aprox.
546 m
Hobby Caffe & Shop
aprox.
568 m
Lente Praporgescu
aprox.
572 m
Bernschutz and Co
aprox.
649 m
Art Caffe
aprox.
670 m
ART Cafe
aprox.
694 m
Gio Cafe
aprox.
699 m
Iguana Cafe
aprox.
737 m
Dianei Patru
aprox.
205 m
Geo Bar
aprox.
253 m
Macaz Bar Teatru Coop
aprox.
291 m
Epic
aprox.
369 m
Underworld
aprox.
378 m
Trei Betivi
aprox.
476 m
Que Pasa
aprox.
483 m
MIM Bistro
aprox.
718 m
Galliano Club
aprox.
737 m
Chat noir
aprox.
784 m
Yellow Bar
aprox.
819 m
Harley
aprox.
827 m
Roter Heller
aprox.
831 m
Expat
aprox.
836 m
The Elbow Room
aprox.
841 m
Have a Cigar
aprox.
251 m
Club Surubelnita
aprox.
314 m
La Scena
aprox.
568 m
Smart's Pub & Bistro
aprox.
588 m
Le Boutique Food Concept Store
aprox.
609 m
Clock`s
aprox.
647 m
Bluzz
aprox.
653 m
Manasia Hub
aprox.
666 m
Kulturhaus
aprox.
775 m
Hanul cu Tei
aprox.
786 m
Club A
aprox.
793 m
Pebeo
aprox.
796 m
Coloseum
aprox.
798 m
Edgar`s Pub
aprox.
806 m
Dharma
aprox.
807 m
ATM - Raiffeisen Bank - Asirom
aprox.
75 m
Piraeus Bank Romania - Sucursala Municipiului Bucuresti
aprox.
85 m
Raiffeisen Bank
aprox.
186 m
BCR
aprox.
223 m
Emporki Bank
aprox.
257 m
BRD Rosetti
aprox.
264 m
Banca Transilvania - Ag. Rosetti
aprox.
309 m
Libra Bank Sediul Central
aprox.
331 m
Libra Bank - Sediul Central
aprox.
337 m
BRD (en)
aprox.
393 m
BRD Calderon-Batistei
aprox.
393 m
BRD Corbeni
aprox.
529 m
UniCredit Bank - Ag. Rosetti
aprox.
560 m
Ion Tiriac Banc (en)
aprox.
565 m
Volksbank Coltei
aprox.
596 m
Stațiile de metrou aflate chiar în "inima" acestei zone, în Piața Unirii, îți oferă posibilitatea de a călători rapid, evitând aglomerația din trafic. Stația Piața Unirii 1 oferă conexiuni la magistrala M1 Dristor - Pantelimon și la magistrala M3 Preciziei - Anghel Saligny. Aceasta este conectată de stația Piața Unirii 2, aflată pe magistrala M2 Berceni - Pipera printr-un pasaj. Astfel, poți ajunge chiar și în mai puțin de 10 minute în zona Politehnică sau la Piața Victoriei și în circa 15 minute în Pipera, unul dintre principalii poli de business ai orașului. Cu autobuzul 104 poți ajunge în cartierul Pantelimon, iar cu tramvaiul 47 în cartierul Rahova. Consultă harta pentru a localiza stațiile mijloacelor de transport în comun.
Printre unitățile de învățământ din această zonă se numără Colegiul Național "Mihai Eminescu", Colegiul Național "Ion Creangă", Colegiul Național de Arte "Dinu Lipatti" și Facultatea de Teologie Ortodoxă "Justinian Patriarhul". Tot aici își are sediul și Institutul Bancar Român care ajută la specializarea personalului din sectorul financiar-bancar. Ajungi foarte repede din Piața Unirii, chiar și pe jos, la Palatul Universității care găzduiește sediile mai multor facultăți. Găsește pe hartă și cele mai apropiate grădinițe, școli și licee de viitoarea ta locuință.
Dacă te vei muta în această zonă, vei avea la doi pași de casă centrul comercial Unirea Shopping Center, care găzduiește, printre altele, magazinele mai multor branduri de modă. În spatele acestuia vei găsi un hipermarket Carrefour. Diverse magazine pot fi găsite și în Centrul Vechi. Pe Strada Lipscani poți să vizitezi una dintre cele mai frumoase librării din Capitală, Cărturești Carusel. Magazin Cocor, care a fost modernizat recent, poate fi și el o alternativă. În imediata sa vecinătate se află și noul magazin București. Pentru mai multe opțiuni, poți merge la București Mall, cel mai apropiat centru comercial de acest tip. Consultă harta pentru a vedea ce alte opțiuni ai în zona Unirii și în împrejurimi.
Lângă Centrul Comercial Unirea Shopping Center vei găsi o parcare supraterană unde îți poți lăsa mașina contra-cost. Dacă te gândești să te muți în zona Piața Unirii îți amintim, de asemenea, că traficul pe Bulevardul Unirii este destul de îngreunat la orele de vârf. Nu uita, totodată, că traficul rutier este închis uneori în Piața Constituției pentru organizarea unor evenimente și concerte. Pentru închirierea unui loc de parcare în apropierea locuinței de care ești interesat va trebui să apelezi la reprezentanții autorităților locale de pe sectorului în care se află aceasta (Direcția Generală Impozite și Taxe Locale Sector 3, Direcția Mobilitate Urbană Sector 4, Serviciul Parcaje Scop Reședință Sector 5). Consultă harta pentru a localiza mai ușor principalele parcări din zona Unirii.
Dacă decizi să te muți într-o locuință în zona Unirii, atunci vei avea la dispoziție numeroase opțiuni de petrecere a timpului liber. Chiar în Piața Unirii vei găsi unul dintre binecunoscutele obiective ale orașului, Hanul lui Manuc. Construit în 1808 acesta a fost renovat în urmă cu câțiva ani și găzduiește, în prezent, mai multe cafenele, restaurante și mici magazine. Acesta se află chiar la marginea Centrului Vechi al Capitalei, principalul punct de atracție pentru iubitorii vieții de noapte. Tot aici găsești și câteva obiective turistice importante - Palatul Voievodal Curtea Veche, Palatul BNR, Muzeul Național de Istorie a României și Muzeul Municipal București. Parcurile Izvor și Unirii sunt principalele spații verzi din această zonă. Nu trebuie să uiți însă că nu va trebui să mergi mult pentru a ajunge și la Grădina Cișmigiu sau în Parcul Tineretului. Poți merge, totodată, la un spectacol la Teatrul Evreiesc de Stat sau poți participa la evenimentele și la concertele care se organizează periodic în Piața Constituției de lângă Palatul Parlamentului. Poți lua parte la diverse evenimente și vizitând Biblioteca Națională a României, o altă clădire reprezentativă din această zonă. Ajungi foarte ușor, pe jos sau cu metroul, la Teatrul Național București în fața căruia găsești și un mic parc. Iar dacă toate acestea nu sunt de ajuns, atunci o plimbare pe Calea Victoriei și o vizită la numeroasele obiective de interes aflate de-a lungul ei cu siguranță te vor satisface. Cea mai bună parte este că această arteră de circulație se închide circulației rutiere uneori și devine strict pietonală. În plus, aici ai la dispoziție una dintre puținele piste dedicate bicicliștilor din oraș. Consultă harta pentru a vedea ce alte opțiuni de petrecere a timpului liber vei avea odată ce te vei muta în zona Unirii.
Dacă te vei muta în această zonă, vei putea apela în caz de nevoie la câteva clinici private. Printre acestea amintim Hiperclinica MedLife Unirii, clinica de stomatologie DentaLife și Medas Unirea. Unele dintre cele mai apropiate spitale la care vei avea acces vor fi Spitalul Cinic Colțea din Piața Universității și Spitalul Clinic Prof. Dr. Theodor Burghele, aflat în apropierea Palatului Parlamentului. Vezi pe hartă ce alte unități medicale se află în zona Unirii și în vecinătatea sa.
Centrul Vechi îți oferă numeroase opțiuni la acest capitol, iar câteva fast food-uri ai la dispoziție la parterul centrului comercial Unirea Shopping Center, situat chiar în Piața Unirii. Găsești câteva terase și pe malul Dâmboviței, lângă Biblioteca Națională a României. Dacă vrei să schimbi peisajul, poți să ajungi destul de repede cu mașina sau cu mijloacele de transport în comun la București Mall sau poți încerca una dintre numeroasele terase din Piața Alba Iulia sau de pe Bulevardul Decebal. Mai mult, ai relativ aproape și Calea Victoriei, perfectă pentru promenadă, dar și pentru un popas la restaurant. Consultă harta și află care sunt cele mai apropiate localuri de viitoarea ta locuință.
Găsești mai multe ATM-uri și sucursale bancare în Piața Unirii, unele dintre ele chiar în incinta complexului comercial Unirea Shopping Center. Vezi care este cel mai potrivit pentru tine de pe hartă.
Înainte să pleci...
Ești sigur că ai văzut și aceste proprietăți?
9.659 € / lună
București, Cotroceni
743 mp utili
Casă/Vilă
3E
8.450 € / lună
București, Cotroceni
570 mp utili
Clădire de birouri
3E
5.985 € / lună
București, Banu Manta
523,33 mp utili
Bloc de apartamente
9.900 € / lună
București, Pipera
748 mp utili
Bloc de apartamente
5E
11.348 € / lună
București, Kiseleff
715 mp utili
Spațiu stradal
1985
5.799 € / lună
București, Floreasca
208 mp utili
Bloc de apartamente
3E
Creează alertă
Salvează căutarea ca să primești pe email ultimele anunțuri publicate
Spații comerciale de închiriat în zona Unirii, Sector 3
Cere detalii prin email
*
*
*
*
Detaliile tale de contact vor fi partajate cu Imobiliar Expert Grup