1

Zona Brancoveanu sp 130mp parter + curte

3.500 € / lună
26.92 € / mp / lună

Brâncoveanu, București

Sup. utilă / mp. utili:
130 mp
Tip prop.:
Spațiu stradal
An constr.:
2000 (Există)
  • • Locație aproximativă

Descriere spațiu comercial

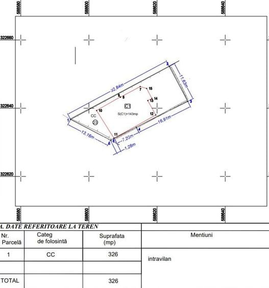
Imobiliar Expert Grup va propune spre inchiriere spatiu comercia in suprafata de 130 mp stradal situat in zona Brancoveanu. Spatiul are vizibilitate buna, intrare din soseaua principala dar si din strada alaturata. Suprafata totala a terenului este de 326 mp, iar suprafata construita este de 145 mp. Spatiul dispune de toate utilitatile , 380 v , gaze , apa
Citește mai mult Citește mai puțin

Detalii spațiu comercial

ID anunț: X4KE142AJ Copiat! 275046903 Copiat!
Actualizat în: 28 Mai 2026
Tip tranzacție: De închiriat prin agent
Suprafață utilă: 130 mp
Regim înălțime: P
Stadiu construcție: Există
Vitrină: Da
Suprafață teren: 323 mp

Utilități

Utilități
Curent Apă Canalizare Gaze
Comision
standard

Vecinătăți:

Parcul Oraselul Copiilor, Metrou Brancoveanu

Disponibilitate proprietate:

Imediat

Puncte de interes

Mijloace transport
tram-station
Bd. Constantin Brancoveanu
Stații tramvai aprox. 26 m
tram-station
Tramvai 11
Stații tramvai aprox. 85 m
metro-station
Constantin Brancoveanu (M2)
Stații metrou aprox. 184 m
bus-station
Statie RATB - Constantin Brancoveanu
Stații autobuz aprox. 239 m
Școală
kindergarten
Kids Palace
Gradinițe aprox. 106 m
kindergarten
Gradinita Elefantelul Curios
Gradinițe aprox. 246 m
school
Scoala 120, "Martisor"
Școli aprox. 380 m
university
Academie de Studii Postuniversitare - Politie
Universități aprox. 424 m
Recreere
park
Parc
Parcuri aprox. 122 m
supermarket
Issa Express Non-Stop
Supermarket aprox. 194 m
sports-ground
Teren sportiv
Terenuri sport aprox. 336 m
mall
Cora Sun Plaza
Mall aprox. 1063 m

Proprietăți similare

Spațiu comercial, 140 mp în Brâncoveanu
3.500 € / lună
București, Brâncoveanu
140 mp utili
Spațiu stradal
Spațiu comercial, 374 mp în Olteniței
3.366 € / lună
București, Olteniței
187 mp utili
Bloc de apartamente
6E
Spațiu comercial, 93 mp în Giurgiului
3.255 € / lună
București, Giurgiului
95 mp utili
Spațiu stradal

Detalii de contact

Imobiliar Expert Grup

Elisabeta Chirca Agent Imobiliar

4.83(4 review-uri)

Imobiliar Expert Grup
PRO

Abonează-te la newsletter să fii primul care primește cele mai noi recomandări de proprietăți și sfaturi de la experți.

CONTACT

Creează alertă

Salvează căutarea ca să primești pe email ultimele anunțuri publicate

Spații comerciale de închiriat în zona Brâncoveanu, Sector 4