1

Spațiu comercial Berceni,Sector 4, Șos. Olteniței – 187 mp, parter, comision 0%,

3.366 € / lună
18 € / mp / lună

Olteniței, București

Sup. utilă / mp. utili:
187 mp
Tip prop.:
Bloc de apartamente
Niv.:
6
An constr.:
2023 (Există)
  • • Comision 0%
  • • Locație exactă
  • • Vizionare prin apel video

Descriere spațiu comercial

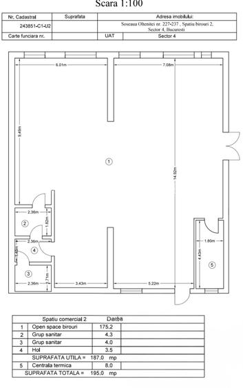
Descriere Se oferă spre închiriere spațiu comercial în Berceni, Sector 4, pe Șoseaua Olteniței nr. 227–237, în cadrul complexului Olympus Residence, la aproximativ 50 m de capătul stației de tramvai 1 și 10 – Romprim. Compartimentare (conform releveu cadastral): ●Open space principal: 175,2 mp ●2 grupuri sanitare: 8,3 mp ●Hol: 3,5 mp ●Cameră centrală termică: 8 mp 90% din suprafață este open space real, ideal pentru amenajare flexibilă în funcție de activitate. Dotări și caracteristici: ●Parter, două căi de acces: direct din stradă și din scara blocului ●Centrală termică proprie ●Tensiune trifazică ●Putere electrică disponibilă: 40 kW ●Clădire nouă, spațiu neutilizat anterior Parcare: ●10 locuri de parcare disponibile opțional, la 50 €/lună/loc + TVA Potrivit pentru: ●birouri corporate ●clinică / cabinet medical ●showroom ●sală cursuri / training ●call center ●servicii, retail premium Preț: 15 €/mp/lună + TVA, negociabil, în funcție de durată contractuală și condiții. Spațiul se poate personaliza la cerere în funcție de nevoile chiriașului. Comision 0% Pentru vizualizarea turului virtual sau organizarea unei prezentări, ne putem auzi cu plăcere la telefon sau WhatsApp: Alexandru Andronic
Citește mai mult Citește mai puțin
10 Parcări Aer condiționat Căldură Modernizat

Detalii spațiu comercial

ID anunț: X5H00400C Copiat! 274407409 Copiat!
Actualizat în: 04 Mai 2026
Regim înălțime: P+6E
Stadiu construcție: Există

Utilități

Utilități
Gaze Curent Canalizare Apă
Comision
0%

Vecinătăți:

Popești Leordeni

Subspații disponibile

Chirie / u.m. / lună:
18 EUR/mp (total: 3366 EUR/lună), Comision 0% cumpărător
Suprafață disponibilă:
187
Disponibilitate spațiu:
imediat
Etaj:
Parter / 6
Chirie / u.m. / lună:
18 EUR/mp (total: 3366 EUR/lună), Comision 0% cumpărător
Suprafață disponibilă:
187
Disponibilitate spațiu:
imediat
Etaj:
Parter / 6

Puncte de interes

Mijloace transport
bus-station
Viscofil
Stații autobuz aprox. 581 m
bus-station
Facului
Stații autobuz aprox. 888 m
bus-station
Viilor
Stații autobuz aprox. 1203 m
train-station
Stația CFR Popesti Leordeni
Stații tren aprox. 1739 m
Școală
school
Scoala nr. 1
Școli aprox. 1594 m
school
Liceul Teoretic Radu Popescu
Școli aprox. 1599 m
school
Scoala nr. 2
Școli aprox. 1725 m
school
Scoala cu clasele I-VIII nr. 2
Școli aprox. 1725 m
Recreere
park
Parc
Parcuri aprox. 1577 m
sports-ground
Teren sportiv
Terenuri sport aprox. 1726 m
restaurant
Casa Teca
Restaurant aprox. 1759 m
supermarket
Mega Image
Supermarket aprox. 1836 m

Proprietăți similare

Spațiu comercial, de 130 mp, în Brâncoveanu
3.500 € / lună
București, Brâncoveanu
130 mp utili
Spațiu stradal
2000
Spațiu industrial, de 1,111 mp, în Giurgiului
3.100 € / lună
București, Giurgiului
1.111 mp utili
Producție/Servicii
2009
Spațiu comercial, 93 mp în Giurgiului
3.255 € / lună
București, Giurgiului
95 mp utili
Spațiu stradal

Detalii de contact

ZONA DE NORD SERVICES SRL

Alexandru Andronic Senior Broker

5.00(5 review-uri)

ZONA DE NORD SERVICES SRL
PRO

Abonează-te la newsletter să fii primul care primește cele mai noi recomandări de proprietăți și sfaturi de la experți.

CONTACT

Creează alertă

Salvează căutarea ca să primești pe email ultimele anunțuri publicate

Spații comerciale de închiriat în zona Olteniței, Sector 4