1

Spatiu comercial Palatul Cotroceni I Cortina Academy I Locatie Premium

6.850 € / lună
25.09 € / mp / lună

Cotroceni, București

Sup. utilă / mp. utili:
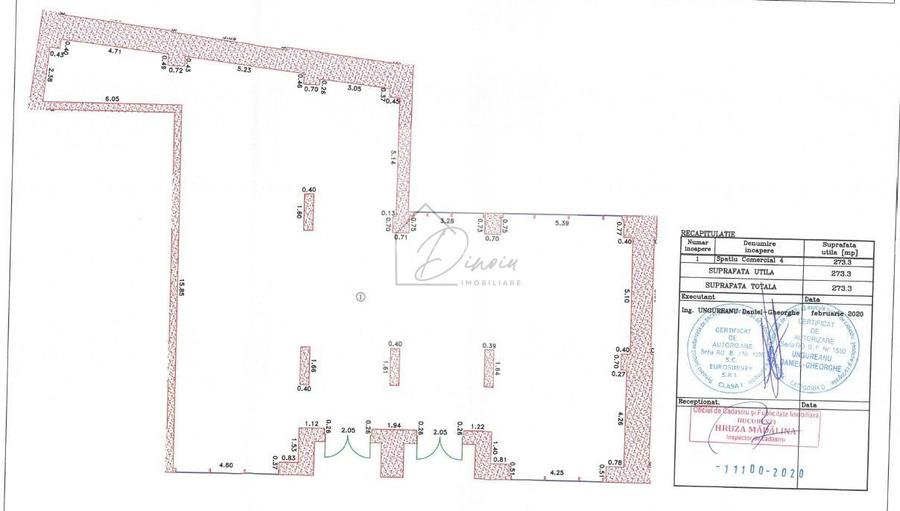
273 mp
Tip prop.:
Bloc de apartamente
Niv.:
12
An constr.:
2021 (Există)
  • • Comision 0%
  • • Locație exactă

Descriere spațiu comercial

Va ofer spre vanzare / inchiriere spatiu comercial premium de 273 mp - cu flexibilitate la compartimentare, situat la parterul Complexului Premium Cortina Academy, vis-a-vis de Palatul Cotroceni, la 2 min de metrou si la 5 minute de AFI Cotroceni! Spatiul beneficiaza de vizibilitate excelenta, trafic auto si pietonal intens! Spatiu premium care va genera un business de succes si va potenta calitatea si numarul clientilor! NUMAI Spatiul 4 mai este dispoinibil! Vanzare sau inchiriere! Clasa energetica A! Pret vanzare Spatiul 4 = 2.500 euro/mp + TVA 21% Pret inchiriere Spatiul 4 = 25 eur/mp Ideal pentru: - birouri & sediu firma; showroom - cafenea, bistro - clinica medicala (estetica, medicina generala, stomatologie, dermatologie, pediatrie, cardio, oftalmologie, etc) - spatii de retail sau servicii: beauty salon & barber shop ; centru educational (cursuri IT, limbi straine, etc) sau sportiv; atelier creatie / croitorie; clinica veterinara; etc Spatiul comercial are 273 mp fiind situat la parterul Complexului Cortina Academy, finalizat in 2021: - front stradal 14ml - spatiul dispune de 2 intrari si locuri de parcare supraterane dispoinibile la un pret unitar de 15.000 euro + TVA 21% Detalii financiare: contract vanzare cumparare; vanzator persoana juridica; Facilitati si avantaje: - vitrine mari - vizibilitate excelentă din bulevard; tamplarie Aluminiu Schuco cu geam Planistar Sun - spatiul este situat pe B-dul Pipera, la parter, stradal, central in complex, cu pereti de sticla - vitrine - se poate compartimenta in functie de nevoile d-stra; dispoinibilitate imediata pentru amenajare - mijloace de transport disponibile chiar in fata complexului: STV (459, 449) si STB (301) Facilitati locatie: - trafic auto si pietonal intens - locatie centrala excelenta, aproape mijloace de transport - conectivitate excelentă cu toate punctele importante din Bucuresti Va invit sa ma contactati pentru mai multe detalii sau pentru a programata o vizionare! Alina Dinoiu
Citește mai mult Citește mai puțin

Detalii spațiu comercial

ID anunț: XFBQ14007 Copiat! 275354351 Copiat!
Actualizat în: 26 Martie 2026
Suprafață utilă: 273 mp
Regim înălțime: 2S+P+12E
Stadiu construcție: Există

Utilități

Utilități
Curent Apă Canalizare Gaze
Comision
0%

Disponibilitate proprietate:

Imediat

Puncte de interes

Mijloace transport
bus-station
Statie RATB
Stații autobuz aprox. 217 m
metro-station
Academia Militară (M5)
Stații metrou aprox. 253 m
tram-station
Piata Danny Huwe
Stații tramvai aprox. 260 m
train-station
Fosta Gara Regala Cotroceni (en)
Stații tren aprox. 445 m
Școală
university
Facultatea de Administratie si Afaceri
Universități aprox. 233 m
school
Facultatea de Psihologie si Stiintele Educatiei - Sediul nou
Școli aprox. 279 m
university
Laborator al Facultatii de Chimie
Universități aprox. 307 m
kindergarten
Gradinita Adnan
Gradinițe aprox. 719 m
Recreere
park
Parc
Parcuri aprox. 20 m
sports-ground
Teren sportiv
Terenuri sport aprox. 301 m
supermarket
AFI Cotroceni
Supermarket aprox. 595 m
hypermarket
Intrarea in caminele C si D din grozavesti
Hipermarket aprox. 1529 m

Proprietăți similare

Spațiu comercial, de 300 mp, în Cotroceni
6.900 € / lună
București, Cotroceni
300 mp utili
Bloc de apartamente
10E
Spațiu comercial, de 273.00 mp, în Cotroceni
6.279 € / lună
București, Cotroceni
273 mp utili
Bloc de apartamente
10E
Spațiu comercial, de 273.30 mp, în Cotroceni
6.285 € / lună
București, Cotroceni
273,3 mp utili
Bloc de apartamente
10E

Detalii de contact

DINOIU IMOBILIARE

Alina Dinoiu Managing Director

DINOIU IMOBILIARE
PRO

Abonează-te la newsletter să fii primul care primește cele mai noi recomandări de proprietăți și sfaturi de la experți.

CONTACT

Creează alertă

Salvează căutarea ca să primești pe email ultimele anunțuri publicate

Spații comerciale de închiriat în zona Cotroceni, Sector 5