3

The Hub - Rahova #3 - 88,5 mp util - Etaj 1 - Prima Inchiriere

1.062 € + TVA / lună
12 € + TVA / mp / lună

Rahova, București

Sup. utilă / mp. utili:
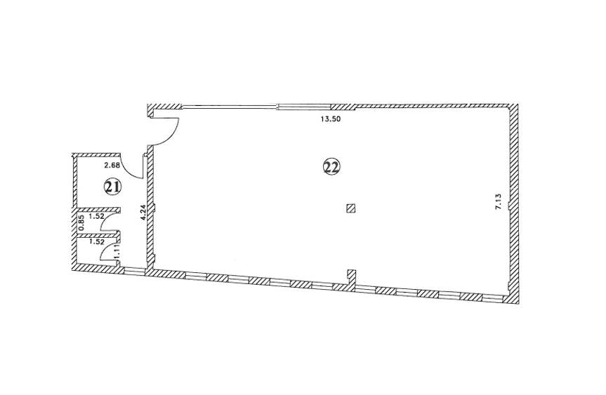
88,5 mp
Tip prop.:
Centru comercial
Niv.:
2
An constr.:
2025 (Există)
  • • Exclusivitate
  • • Locație exactă

Descriere spațiu comercial

The Hub - Rahova #3 Spațiu comercial aflat la Prima Inchiriere, situat într-o zonă cu trafic intens, într-o clădire nouă, construită în 2025, care nu se compară cu nimic din zonă prin poziționare, calitate și vecinătăți. Suprafață 88,5 mp, la care se adaugă un grup sanitar dublu de 10,5 mp, amplasat la etajul 1. Spațiul beneficiază de centrală termică proprie, compartimentare eficientă și finisaje moderne, fiind ușor adaptabil pentru o gamă largă de activități. Clădirea este nouă, cu vecini de calitate și un concept coerent, gândit pentru business-uri care caută stabilitate și imagine bună. Este un spațiu care transmite profesionalism și creează cadrul potrivit pentru povești de business construite pe termen lung. Un avantaj important îl reprezintă posibilitatea de amplasare a elementelor de semnalistică și publicitate exterioară, pentru vizibilitate crescută și branding eficient. Este un spațiu care oferă vizibilitate, confort și flexibilitate, ideal pentru construirea unor povești de business pe termen lung, într-un cadru coerent și bine gândit. Dacă acest spațiu nu se potrivește nevoilor dumneavoastră, mai avem disponibile alte 3 spații în aceeași clădire. Ideal pentru birouri, cabinete, servicii, showroom, activități educaționale sau alte activități comerciale.
Citește mai mult Citește mai puțin
Căldură Modernizat

Detalii spațiu comercial

ID anunț: XDFE04008 Copiat! 273603962 Copiat!
Actualizat în: 19 Aprilie 2026
Nume proprietate: The HUB RAHOVA
Regim înălțime: P+2E
Stadiu construcție: Există
Grad de ocupare: 40%

Utilități

Utilități
Gaze Curent Canalizare Apă
Comision
Standard

Certificat energetic:

Clasa energetică: A

Subspații disponibile

Chirie / u.m. / lună:
12 EUR/mp (total: 1062 EUR/lună) + TVA + alte cheltuieli, Comision: Standard
Suprafață disponibilă:
88.5
Disponibilitate spațiu:
imediat
Etaj:
Etaj 1 / 2
Posibilitate parcare:
Da

Puncte de interes

Mijloace transport
tram-station
Antiaeriana
Stații tramvai aprox. 79 m
bus-station
Statia Antiaeriana, linia 302, N114, 226, 227,32
Stații autobuz aprox. 93 m
bus-station
Statia Soseaua Alexandriei / Soseaua Magurele, linia 227, 303
Stații autobuz aprox. 132 m
tram-station
Depoul Alexandria
Stații tramvai aprox. 251 m
Școală
school
Cresa
Școli aprox. 369 m
school
Scoala nr.126
Școli aprox. 398 m
kindergarten
Gradinita nr. 35
Gradinițe aprox. 778 m
kindergarten
GRĂDINIȚA DE COPII NR. 169
Gradinițe aprox. 1091 m
Recreere
supermarket
Complex Comercial Neptun
Supermarket aprox. 265 m
restaurant
Restaurant Casa Ionescu
Restaurant aprox. 451 m
sports-ground
Teren sportiv
Terenuri sport aprox. 1100 m
park
Loc de joaca
Parcuri aprox. 1326 m

Proprietăți similare

Spațiu comercial, 73.4 mp în Rahova
1.101 € / lună
București, Rahova
73,4 mp utili
Centru comercial
2E
Spațiu comercial, de 19 mp, în Calea Călărașilor
1.151 € / lună
București, Calea Călărașilor
19 mp utili
Spațiu stradal
2022
Spațiu comercial, 68 mp în Rahova
1.020 € / lună
București, Rahova
68 mp utili
Bloc de apartamente
8E

Detalii de contact

Homing In Properties

Alexandru Iulian Broker/Owner

Homing In Properties
PRO

Abonează-te la newsletter să fii primul care primește cele mai noi recomandări de proprietăți și sfaturi de la experți.

CONTACT

Creează alertă

Salvează căutarea ca să primești pe email ultimele anunțuri publicate

Spații comerciale de închiriat în zona Rahova, Sector 5