Spatii comerciale de inchiriat pe Strada Valea Cascadelor 24 bis

Preț necomunicat

Păcii, București

Sup. utilă / mp. utili:
3.186 mp
Tip prop.:
Showroom
  • • Comision 0%
  • • Locație exactă

Descriere spațiu comercial

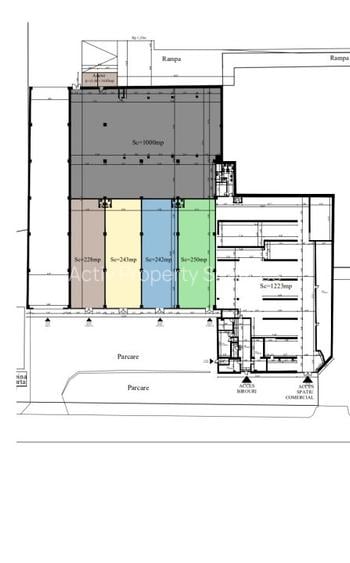
Spatiile comerciale propuse spre inchiriere sunt situate in partea de vest a Bucurestiului, sector 6, si au suprafete diferite, in functie de necesitatea fiecarui business. In acest imobil sunt disponibile un depozit de 1.000 m2, 4 spatii vecine cu suprafete de 228 m2, 243 m2, 242 m2, respectiv 250 m2, si un spatiu open space de 1.223 m2. Imobilul este amplasat in apropiere de cartierul Brancusi, la doar 1.5 km distanta de Autogara Militari. Vecinatatile imobilului au functiuni variate precum: showroom-uri pentru diferite domenii de activitate, magazinul de bricolaj Dedeman, bancile Raiffeisen si OTP Bank si fast food-ul McDonald’s. Transportul public este rapid, statia pentru autobuze si tramvaie fiind amplasata la cativa metri distanta, iar pentru metroul Pacii, statia este la doar 1.5 km distanta. Accesul cu automobilul este facil, fiind realizat pe Valea Cascadelor, o artera cu 2 benzi de circulatie pe fiecare sens si linie de tramvai pe mijloc, care face direct legatura intre principalele bulevarde ale zonei de vest (Iuliu Maniu, Timisoara). Aceste spatii comerciale propuse spre inchiriere sunt pretabile pentru showroom-uri din domeniul constructiilor si hipermarketurilor. Imobilul este liber si disponibil imediat, iar pretul este la cerere.
Citește mai mult Citește mai puțin
Modernizat

Detalii spațiu comercial

ID anunț: X5F8041F1 Copiat! 237428624 Copiat!
Actualizat în: 06 Noiembrie 2025
Nume proprietate: Strada Valea Cascadelor 24 bis
Regim înălțime: P
Stadiu construcție: Există

Utilități

Comision
0%

Vecinătăți:

Autogara Militari
Dedeman

Alte detalii:

Spatiile comerciale propuse spre inchiriere sunt situate in partea de vest a Bucurestiului, sector 6, si au suprafete diferite, in functie de necesitatea fiecarui business. In acest imobil sunt disponibile un depozit de 1.000 m2, 4 spatii vecine cu suprafete de 228 m2, 243 m2, 242 m2, respectiv 250 m2, si un spatiu open space de 1.223 m2.

Imobilul este amplasat in apropiere de cartierul Brancusi, la doar 1.5 km distanta de Autogara Militari.

Vecinatatile imobilului au functiuni variate precum: showroom-uri pentru diferite domenii de activitate, magazinul de bricolaj Dedeman, bancile Raiffeisen si OTP Bank si fast food-ul McDonald’s.

Transportul public este rapid, statia pentru autobuze si tramvaie fiind amplasata la cativa metri distanta, iar pentru metroul Pacii, statia este la doar 1.5 km distanta.

Accesul cu automobilul este facil, fiind realizat pe Valea Cascadelor, o artera cu 2 benzi de circulatie pe fiecare sens si linie de tramvai pe mijloc, care face direct legatura intre principalele bulevarde ale zonei de vest (Iuliu Maniu, Timisoara).

Aceste spatii comerciale propuse spre inchiriere sunt pretabile pentru showroom-uri din domeniul constructiilor si hipermarketurilor.

Imobilul este liber si disponibil imediat, iar pretul este la cerere.

Subspații disponibile

Minim de inchiriat

Alte detalii gasiti pe www.spatii-comerciale-romania.ro

Chirie / u.m. / lună:
Preț necomunicat
Suprafață disponibilă:
228
Disponibilitate spațiu:
imediat
Etaj:
Parter
Vitrină:
Da
Posibilitate parcare:
Da

Maxim de inchiriat

Alte detalii gasiti pe www.spatii-comerciale-romania.ro

Chirie / u.m. / lună:
Preț necomunicat
Suprafață disponibilă:
3186
Disponibilitate spațiu:
imediat
Etaj:
Parter
Vitrină:
Da
Posibilitate parcare:
Da

Puncte de interes

Mijloace transport
tram-station
C.F.R. Cotroceni
Stații tramvai aprox. 179 m
bus-station
Statia Bd. Preciziei, linia 136, N115, N120, N116
Stații autobuz aprox. 695 m
trolleybus-station
Statia Imprimeria nationala, linia 61,62
Stații troleibuz aprox. 796 m
metro-station
Metrorex. Stația Preciziei (M3)(1983)
Stații metrou aprox. 816 m
Școală
school
Liceul Tehnologic Petru Poni
Școli aprox. 1024 m
school
Grupul Școlar Industrial "Petru Poni" (nr. 7).
Școli aprox. 1035 m
kindergarten
Gradinita nr. 195
Gradinițe aprox. 1176 m
kindergarten
Gradinita de copii nr.229
Gradinițe aprox. 1185 m
Recreere
supermarket
Selgros
Supermarket aprox. 215 m
park
Parc
Parcuri aprox. 690 m
sports-ground
Teren sportiv
Terenuri sport aprox. 908 m
mall
Militari Shopping City
Mall aprox. 1869 m

Proprietăți recomandate

Detalii de contact

Activ Property Services

Valentin Manu Agent Imobiliar

Activ Property Services
PRO

Abonează-te la newsletter să fii primul care primește cele mai noi recomandări de proprietăți și sfaturi de la experți.

CONTACT

Creează alertă

Salvează căutarea ca să primești pe email ultimele anunțuri publicate

Spații comerciale de închiriat în zona Păcii, Sector 6