1

Spatiu comecial de inchiriat pe Strada 1 Decembrie 1918 nr.48, Sfantu Gheorghe

4.004 € / lună
7 € / mp / lună

Exterior Est, Sfântu Gheorghe

Sup. utilă / mp. utili:
572 mp
Tip prop.:
Casă/Vilă
  • • Locație exactă

Descriere spațiu comercial

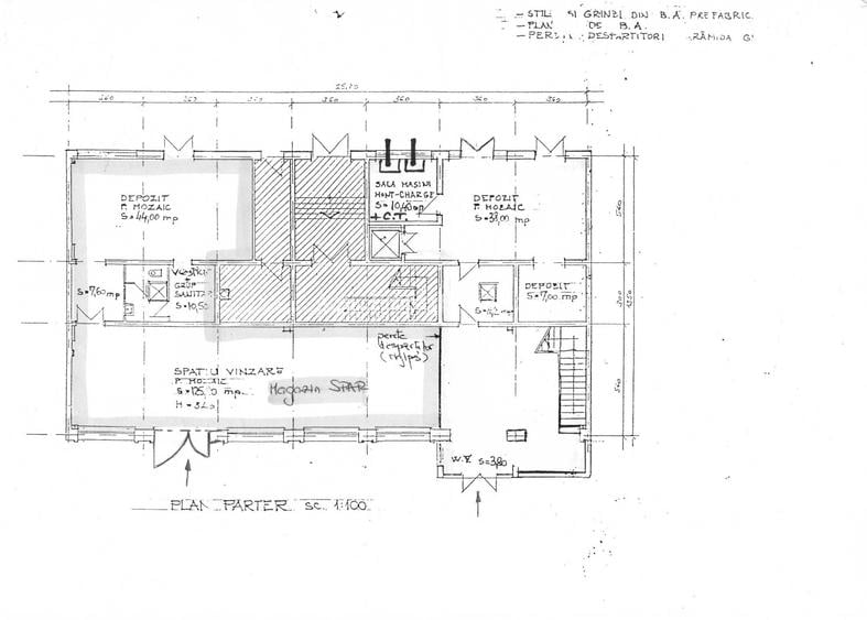
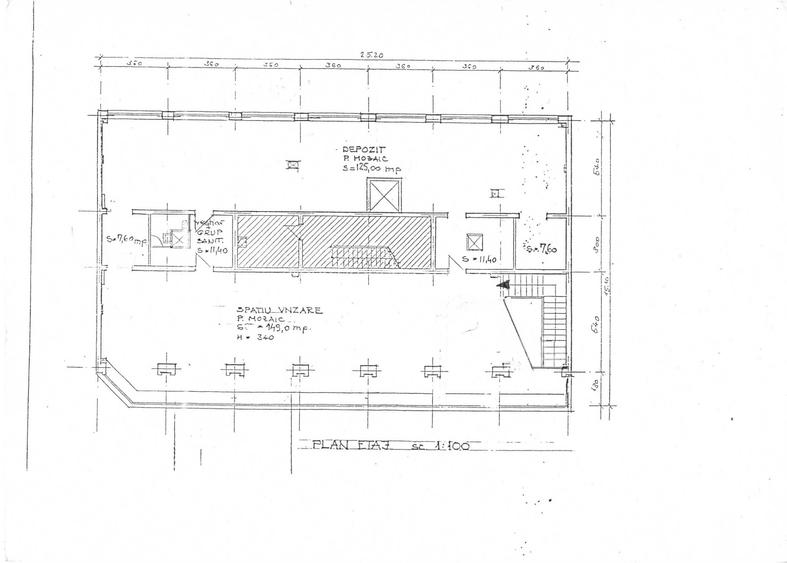
Spațiul comercial propus spre închiriere este situat în Sfântu Gheorghe, pe Strada 1 Decembrie 1918, Nr. 48, pe artera principală de ieșire a orașului către Brașov, într-o zonă comercială nouă, cu trafic auto și pietonal intens. Datorită poziționării excelente și a suprafeței generoase, spațiul este ideal pentru activități de retail, servicii sau birouri. Printre vecinătățile imobilului se numără Raiffeisen Bank și supermarketul Profi, contribuind la un flux constant de clienți și o vizibilitate crescută. Parcarea pentru acest spațiu comercial se realizează în fața imobilului, dar și în zonele special amenajate din apropiere. Imobilul are o suprafață totală de 572 m2, desfășurată pe parter și etaj (P + 1E), și se închiriază la prețul de 4.500 euro/lună.
Citește mai mult Citește mai puțin

Detalii spațiu comercial

ID anunț: X5F8041IS Copiat! 269030231 Copiat!
Actualizat în: 20 August 2025
Nume proprietate: Spatiu comecial de inchiriat pe Strada 1 Decembrie 1918 nr.48
Regim înălțime: P
Stadiu construcție: Există

Vecinătăți:

Raiffeisen Bank
Profi

Subspații disponibile

Spatiu comecial de inchiriat pe Strada 1 Decembrie 1918 nr.48

Mai multe detalii despre aceasta oferta pe platforma SPATII-COMERCIALE-ROMANIA.RO, alaturi de alte peste 50 de spatii comerciale reprezentative prezentate intr-un mod transparent, cu localizare exacta.

Chirie / u.m. / lună:
7 EUR/mp (total: 4004 EUR/lună)
Suprafață disponibilă:
572
Disponibilitate spațiu:
imediat
Etaj:
Parter

Puncte de interes

Mijloace transport
bus-station
Gara CF
Stații autobuz aprox. 189 m
bus-station
Gara
Stații autobuz aprox. 201 m
bus-station
Sfantu Gheorghe
Stații autobuz aprox. 221 m
bus-station
Calea Brasovului
Stații autobuz aprox. 626 m
Școală
school
Scoala Ady Endre
Școli aprox. 412 m
school
Liceul Economic
Școli aprox. 1350 m
school
Scoala Generala Godri Ferenc
Școli aprox. 1506 m
kindergarten
Csipike
Gradinițe aprox. 1614 m
Recreere
park
Parc
Parcuri aprox. 47 m
restaurant
Korona
Restaurant aprox. 175 m
sports-ground
Teren sportiv
Terenuri sport aprox. 406 m
supermarket
Lidl
Supermarket aprox. 426 m

Proprietăți recomandate

Detalii de contact

Activ Property Services

Valentin Manu Agent Imobiliar

Activ Property Services
PRO

Abonează-te la newsletter să fii primul care primește cele mai noi recomandări de proprietăți și sfaturi de la experți.

CONTACT

Creează alertă

Salvează căutarea ca să primești pe email ultimele anunțuri publicate

Spații comerciale de închiriat în zona Exterior Est, Sfântu Gheorghe