Spatiu Coemrcial/Cabinet Stomatologic de Inchiriat, Zona 7 Noiembrie

1.596 € / lună
12 € / mp / lună

7 Noiembrie, Târgu Mureș

Sup. utilă / mp. utili:
133 mp
Tip prop.:
Bloc de apartamente
An constr.:
2014 (Există)
  • • Locație aproximativă

Descriere spațiu comercial

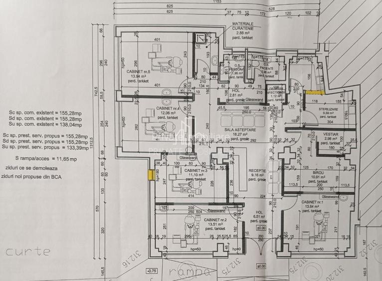
Va oferim spre inchiriere un cabinet stomatologic complet utilat, mobilat si functional, amenajat in anul 2021 , toate dotarile si toata aparatura fiind de ultima generatie. Acesta are o suprafata utila de 133 Mp si desfasurata de 155 Mp, este situat la parterul unui bloc nou construit. Cabinetul este amenajat si dotat cu 3 scaune de stomatologie, 1 scaun (made in Germany) maca Sirona estetica faciala, birou, receptie, vestiar, sala de asteptare, toalete, etc. Se poate si inchiria cabinetul stomatologic la pretul de 12 euro/mp. Cei interesati pot achizitiona doar spatiul gol la pretul de 420 000 euro. Cei interesati pot achizitiona spatiul si cu toate dotarile cabinetului stomatologic la pretul de 550 000 Euro. Comisionul perceput de câtre Agenția noastră în cazul închirieri este de 50% din valoarea primei chirii și se achită o singură dată la semnarea contractului de închiriere. Dându-ne tot interesul în a fi de ajutor maxim clienților noștri... ne ajută să obținem rezultate mai bune și, ulterior, să ne bucurăm de recomandările clienților. Cel mai frumos compliment pentru noi este recomandarea ta! Crezi că această proprietate nu corespunde în totalitate nevoilor tale? Dacă dorești să găsești PROPRIETATEA PERFECTĂ pentru tine și nu ai prea mult timp la dispoziție, CERE AJUTORUL AGENTULUI. Acesta iți va oferi alte SOLUȚII AVANTAJOASE. CONTACTEAZĂ-NE ACUM, nu am dat greș cu nici un client!
Citește mai mult Citește mai puțin

Detalii spațiu comercial

ID anunț: X6R0140B2 Copiat! 274266230 Copiat!
Actualizat în: 19 Ianuarie 2026
Suprafață utilă: 133 mp
Regim înălțime: P
Stadiu construcție: Există
Vitrină: Da

Utilități

Utilități
Curent Apă Canalizare Gaze

Disponibilitate proprietate:

Imediat

Puncte de interes

Mijloace transport
bus-station
Darina
Stații autobuz aprox. 264 m
bus-station
Aleea Carpati
Stații autobuz aprox. 306 m
bus-station
Gara Targu Mures Nord
Stații autobuz aprox. 311 m
bus-station
Gara Mica
Stații autobuz aprox. 434 m
Școală
school
Liceul cu Program Sportiv Szasz Adalbert
Școli aprox. 165 m
kindergarten
Gradinita nr. 6
Gradinițe aprox. 256 m
university
Universitatea Babes Bolyai
Universități aprox. 468 m
school
Gimnaziul Friedrich Schiller
Școli aprox. 483 m
Recreere
restaurant
Pizza Sole
Restaurant aprox. 128 m
park
Piata Marasesti
Parcuri aprox. 232 m
supermarket
Lidl
Supermarket aprox. 256 m
sports-ground
Teren sportiv
Terenuri sport aprox. 336 m

Proprietăți similare

Spațiu comercial, de 299 mp, în Unirii
1.599 € / lună
Târgu Mureș, Unirii
299 mp utili
1E
1980
Proprietate specială, de 200 mp, în Mureșeni
1.600 € / lună
Târgu Mureș, Mureșeni
200 mp utili
Spațiu industrial, 430 mp în Mureșeni
1.720 € / lună
Târgu Mureș, Mureșeni
430 mp utili
Producție/Servicii
1E

Detalii de contact

Private Imobiliare

Ovidiu Husar Consultant Imobiliar

Private Imobiliare

Abonează-te la newsletter să fii primul care primește cele mai noi recomandări de proprietăți și sfaturi de la experți.

CONTACT

Creează alertă

Salvează căutarea ca să primești pe email ultimele anunțuri publicate

Spații comerciale cu 4+ camere de închiriat în zona 7 Noiembrie, Târgu Mureș